最上階・角部屋!スカイツリーが眺望できます!
【特徴・設備】
■スイッチひとつでお湯が張れるオートバス付
■コンロやシンクがセットされたシステムキッチン設置済
■バス・トイレ別、追い炊き機能付、浴室乾燥ユニット
■オートロック・モニター付インターホン
■宅配ボックス
| 価格 | 4,580万円 |
毎月の返済額 (目安) |
|
|---|---|---|---|
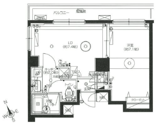
| 築年月 | 2006年8月 | 間取り | 1LDK |
| 専有面積 | 35.47m2 | 所在階 | 9階 |
| 方角 | 北西 | ||
| 所在地 | 東京都墨田区横網2-6-7 | ||
| 交通 | 都営浅草線「蔵前駅」徒歩8分 JR中央・総武線「両国駅」徒歩9分 |
||
【特徴・設備】
■スイッチひとつでお湯が張れるオートバス付
■コンロやシンクがセットされたシステムキッチン設置済
■バス・トイレ別、追い炊き機能付、浴室乾燥ユニット
■オートロック・モニター付インターホン
■宅配ボックス

| 物件名 | ファーストシーン両国レジデンス | ||
|---|---|---|---|
| 所在地 | 東京都墨田区横網2-6-7 | ||
| 交通 |
都営浅草線「蔵前駅」徒歩8分 JR中央・総武線「両国駅」徒歩9分 都営大江戸線「両国駅」徒歩6分 JR中央・総武線「浅草橋駅」徒歩14分 東京メトロ銀座線「浅草駅」徒歩14分 |
||
| 問合せ番号 | 15980-9F | ||
| 物件特徴 | - | ||
| 物件条件 | - | ||
| 価格 | 4,580万円 | 管理費 | 9,900円/月 |
| 修繕積立金 | 3,920円/月 | その他費用 | - |
| 間取り | 1LDK | 方角 | 北西 |
| 専有面積 | 35.47m2 | バルコニー面積 | - |
| 建物構造 | RC | 築年月 | 2006年8月 |
| 総戸数 | 22戸 | 総階数 | 地上9階 |
| 駐車場 | - | バイク置き場 | - |
| 駐輪場 | 有 | 土地権利 | 所有権 |
| 用途地域 | 商業地域 | 管理形態 | 日勤管理 |
| 管理会社 | - | 分譲会社 | 夢ハウジング |
| 施工会社 | 栗本建設工業 | 設計会社 | - |
| 取引態様 | 仲介 | 小学校学区 | - |
| 周辺情報 | ■サミットストア両国石原店(スーパー)まで約4分 ■セブンイレブン KOYO同愛記念病院店(コンビニ)まで約2分 ■アイン薬局 両国店(ドラッグストア)まで約2分 |
||
| 現況 | 空室 | 入居/引渡時期 | 相談 |
| 更新日 | 2026年4月4日 | ||
| 頭金 |
|
|---|---|
| 金利 |
|
| 返済年数 | 年 |
※建物周辺情報はGoogleMapを使用しており、実際とは若干異なる場合がございます。
掲載情報について

室内写真 物件画像1