グランイーグル川崎駅前通 9階

  • 総合トップ
  • 中古マンション
  • 一戸建て・土地
  • 投資・収益物件
  • 売りたい[売却査定]
  • 貸したい[賃料査定]

グランイーグル川崎駅前通 9階
新着

価格
5,198
毎月の返済額
(目安)
loansimulationIcon
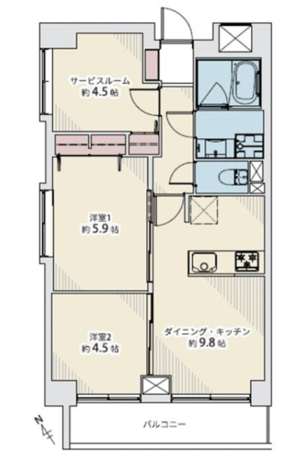
築年月 1997年2月 間取り 2SDK
専有面積 54.67m2 所在階 9階
方角
所在地 神奈川県川崎市川崎区新川通11-7
交通 JR東海道本線(東京~熱海)「川崎駅」徒歩14分
JR京浜東北線「川崎駅」徒歩14分

9階部分・南向き角部屋。南側が開けている為眺望・通風とても良好です。

【特徴・設備】
■川崎駅までほぼ平坦徒歩14分
■10階建9階部分につき眺望良好
■専用使用権付き駐車場有
■ペット飼育相談 (飼育細則有
■トランクルーム1住戸1区画利用可
■リビングが見渡せる対面式キッチン
■省エネ仕様(保温浴槽・節湯水栓・LED照明)
■アフターサービス保証付き

【リノベーション内容】
□システムキッチン・W1950 食洗機
□ユニットバス・1216
□シャワー付洗面化粧台・防水パン
□温水洗浄便座付トイレ
□配管 <排水管(専有部分)・給水、 給湯管(専有部内飛込みより)>
□エアコン先行配管 <洋室・DK・サービスルーム>
□その他

2冠達成 恵比寿不動産は物件数No.1 中古マンション数No.1

グランイーグル川崎駅前通 9階の
購入に関するお問い合わせはこちらから

contact us

恵比寿不動産までお気軽にお問い合わせください

お電話でのお問い合わせはこちら:03-6421-0543 10:00 - 19:00 (水曜定休)
恵比寿不動産店舗情報渋谷区東3-25-11 TOKYU REIT恵比寿ビル4階
オフィス内観写真
オフィス外観写真
リフォーム無料お見積りサービス

物件概要

物件名 グランイーグル川崎駅前通
所在地
交通
問合せ番号 16024-901
物件特徴 -
物件条件 ペット可
価格 5,198 管理費 15,610円/月
修繕積立金 16,410円/月 その他費用 -
間取り 2SDK 方角
専有面積 54.67m2 バルコニー面積 6.56m2
建物構造 SRC 築年月 1997年2月
総戸数 42戸 総階数 地上10階 地下1階
駐車場 バイク置き場 -
駐輪場 - 土地権利 所有権
用途地域 近隣商業地域、商業地域  管理形態 巡回管理
管理会社 (株)ニコレ 分譲会社 京浜リアルエステート(株)
施工会社 佐藤工業(株)・小野里工業 設計会社 -
取引態様 仲介 小学校学区 -
周辺情報 ■まいばすけっと 徒歩2分 (約100m)
■川崎病院 徒歩3分 (約180m)
■宮前小学校 徒歩5分 (約360m)
■富士見中学校 徒歩5分 (約350m)
現況 空室 入居/引渡時期 相談
更新日 2026年4月11日

備考

アルコーブ面積:1.19㎡

部屋設備

  • バス・トイレ別
  • 独立洗面台
  • 追い焚き
  • 温水洗浄便座
  • 浴室乾燥機
  • システムキッチン
  • 食器洗浄機
  • ガスコンロ
  • 角部屋
  • 南向き
  • リノベーション

建物設備

  • エレベーター
  • オートロック
  • TVドアホン
  • トランクルーム
  • 駐車場
  • 防犯カメラ
  • ペット可

グランイーグル川崎駅前通 9階のローンシミュレーション

借入金額
5,198
頭金
0万円
毎月の返済額
頭金
  • 支払い額万円※半角数字
金利
  • %※半角数字
返済年数
  • ※元利均等返済方式、最大優遇の場合で計算しています。
  • ※融資には個別審査があり、審査結果により、貸出条件(金利・貸出期間・借入額)が異なる場合がございます。
  • ※不動産のご購入に際しましては物件価格以外にその他諸費用が必要となります。
    諸費用に関する詳細につきましてはお問い合わせ下さいませ。

周辺地図

※建物周辺情報はGoogleMapを使用しており、実際とは若干異なる場合がございます。

掲載情報について

  • ※本掲載情報と現況に差異がある場合、現況を優先いたします。
  • ※掲載物件は売却済あるいは売出中止となる場合もあります。
  • ※掲載写真やパース(絵)、または間取図に描かれている家具や車などは、価格に含まれておりません。また、過去に撮影したものをそのまま利用している場合があり、名称・外観・背景等、実際のものとは異なる場合がございます。予めご了承ください。
  • ※仲介物件には所定の仲介手数料(消費税等相当額を含みます)が必要です。
2冠達成 恵比寿不動産は物件数No.1 中古マンション数No.1

グランイーグル川崎駅前通 9階の
購入に関するお問い合わせはこちらから

contact us

恵比寿不動産までお気軽にお問い合わせください

お電話でのお問い合わせはこちら:03-6421-0543 10:00 - 19:00 (水曜定休)
恵比寿不動産店舗情報渋谷区東3-25-11 TOKYU REIT恵比寿ビル4階
オフィス内観写真
オフィス外観写真

部屋一覧

売出し待ちお知らせ希望 未公開情報の確認 お問い合わせ
所在階 間取り 専有面積 価格 お気に入り お問い合わせ 詳細
新着
9F
リノベ
2SDK
54.67m2 5,198
お問い合わせ
詳細を見る

最近見た物件

レクセルマンション吉祥寺南おすすめ画像

レクセルマンション吉祥寺南 3階

5,180

  • 東京都三鷹市新川6-3-10
  • JR中央・総武線「吉祥寺駅」徒歩分
  • 2LDK  54.44m2
外観

グランヴェール高円寺EAST 3階

9,280

  • 東京都杉並区高円寺北4-26-10
  • JR中央・総武線「高円寺駅」徒歩10分
    JR中央線(快速)「阿佐ケ谷駅」徒歩10分
  • 2LDK  68.92m2