グランシティ平間 2階

  • 総合トップ
  • 中古マンション
  • 一戸建て・土地
  • 投資・収益物件
  • 売りたい[売却査定]
  • 貸したい[賃料査定]

グランシティ平間 2階
新着

価格
5,790
毎月の返済額
(目安)
loansimulationIcon
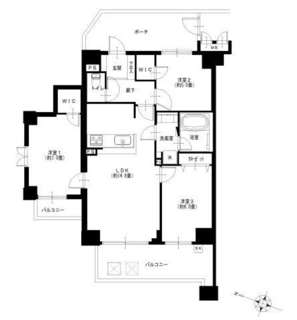
築年月 2004年7月 間取り 3LDK+WIC
専有面積 71.12m2 所在階 2階
方角 南西
所在地 神奈川県川崎市中原区中丸子1170-1
交通 -

リノベーション物件!2階部分・南西向き・角住戸!

【特徴・設備】
■JR南武線『平間駅』まで徒歩8分
■重厚感のあるオートロック付きマンション
■犬・猫飼育可(細則あり)
■南西向き・角住戸、下階には住戸がないので足音などを気にせずお過ごしいただけます
■食洗機や1418サイズのゆったりした浴室など、充実した設備♪
■ウォークインクローゼットが2つあり、整理しやすい室内です
■バルコニーには、お掃除や水やりに便利なスロップシンクもございます
■玉川小学校・玉川中学校まで徒歩4分圏内、お子様が通いやすい距離
■フラット35適合物件
■住宅ローン減税適合物件

【リノベーション内容】※2026年2月完了
□システムキッチン交換
□ユニットバス交換
□洗面台交換
□トイレ交換
□全室クロス張替
□全フローリング張替
□全建具交換
□CF張替
□下足入れ交換
□洗濯水栓器具交換
□防水パン交換
□スイッチパネル設置
□ダウンライト設置
□照明器具設置
□玄関人感センサー設置

2冠達成 恵比寿不動産は物件数No.1 中古マンション数No.1

グランシティ平間 2階の
購入に関するお問い合わせはこちらから

contact us

恵比寿不動産までお気軽にお問い合わせください

お電話でのお問い合わせはこちら:03-6421-0543 10:00 - 19:00 (水曜定休)
恵比寿不動産店舗情報渋谷区東3-25-11 TOKYU REIT恵比寿ビル4階
オフィス内観写真
オフィス外観写真
リフォーム無料お見積りサービス

物件概要

物件名 グランシティ平間
所在地
交通
問合せ番号 16033-201
物件特徴 -
物件条件 ペット可
価格 5,790 管理費 11,480円/月
修繕積立金 15,930円/月 その他費用 インターネットサービス料(月額990円)
間取り 3LDK 方角 南西
専有面積 71.12m2 バルコニー面積 12.74m2
建物構造 RC 築年月 2004年7月
総戸数 55戸 総階数 地上7階 
駐車場 有 月額 9,000~17,000円 バイク置き場 有 月額 1,500円
駐輪場 有 月額 0~500円 土地権利 所有権
用途地域 準住居地域 管理形態 日勤管理
管理会社 大和地所コミュニティライフ株式会社 分譲会社 日本綜合地所(株)
施工会社 (株)長谷工コーポレーション 設計会社 (株)長谷工コーポレーション
取引態様 仲介 小学校学区 -
周辺情報 ■まいばすけっと中丸子(スーパー)まで徒歩2分
■スーパー文化堂中丸子店(スーパー)まで徒歩2分
■ファミリーマート川崎中丸子店(コンビニ)まで徒歩1分
■白十字薬局(ドラッグストア)まで徒歩2分
現況 空室 入居/引渡時期 相談
更新日 2026年4月13日

備考

ポーチ面積:10.59㎡

部屋設備

  • バス・トイレ別
  • 独立洗面台
  • 追い焚き
  • 温水洗浄便座
  • 浴室乾燥機
  • システムキッチン
  • カウンターキッチン
  • 食器洗浄機
  • 浄水器
  • ガスコンロ
  • ウォークインクローゼット
  • フローリング
  • 角部屋
  • 南向き
  • リノベーション

建物設備

  • エレベーター
  • オートロック
  • TVドアホン
  • 駐車場
  • バイク置き場
  • 駐輪場
  • 防犯カメラ
  • CATV
  • インターネット
  • ペット可
  • フラット35

グランシティ平間 2階のローンシミュレーション

借入金額
5,790
頭金
0万円
毎月の返済額
頭金
  • 支払い額万円※半角数字
金利
  • %※半角数字
返済年数
  • ※元利均等返済方式、最大優遇の場合で計算しています。
  • ※融資には個別審査があり、審査結果により、貸出条件(金利・貸出期間・借入額)が異なる場合がございます。
  • ※不動産のご購入に際しましては物件価格以外にその他諸費用が必要となります。
    諸費用に関する詳細につきましてはお問い合わせ下さいませ。

周辺地図

※建物周辺情報はGoogleMapを使用しており、実際とは若干異なる場合がございます。

掲載情報について

  • ※本掲載情報と現況に差異がある場合、現況を優先いたします。
  • ※掲載物件は売却済あるいは売出中止となる場合もあります。
  • ※掲載写真やパース(絵)、または間取図に描かれている家具や車などは、価格に含まれておりません。また、過去に撮影したものをそのまま利用している場合があり、名称・外観・背景等、実際のものとは異なる場合がございます。予めご了承ください。
  • ※仲介物件には所定の仲介手数料(消費税等相当額を含みます)が必要です。
2冠達成 恵比寿不動産は物件数No.1 中古マンション数No.1

グランシティ平間 2階の
購入に関するお問い合わせはこちらから

contact us

恵比寿不動産までお気軽にお問い合わせください

お電話でのお問い合わせはこちら:03-6421-0543 10:00 - 19:00 (水曜定休)
恵比寿不動産店舗情報渋谷区東3-25-11 TOKYU REIT恵比寿ビル4階
オフィス内観写真
オフィス外観写真

部屋一覧

売出し待ちお知らせ希望 未公開情報の確認 お問い合わせ
所在階 間取り 専有面積 価格 お気に入り お問い合わせ 詳細
新着
2F
リノベ
3LDK
71.12m2 5,790
お問い合わせ
詳細を見る

最近見た物件

レクセルマンション吉祥寺南おすすめ画像

レクセルマンション吉祥寺南 3階

5,180

  • 東京都三鷹市新川6-3-10
  • JR中央・総武線「吉祥寺駅」徒歩分
  • 2LDK  54.44m2
ライオンズマンション吉祥寺第3おすすめ画像

ライオンズマンション吉祥寺第3 2階

5,498

  • 東京都武蔵野市吉祥寺北町3丁目5番3号
  • JR中央・総武線「吉祥寺駅」徒歩16分
    京王井の頭線「吉祥寺駅」徒歩16分
  • 2LDK  60.48m2
グランイーグル川崎駅前通おすすめ画像

グランイーグル川崎駅前通 9階

5,198

  • 神奈川県川崎市川崎区新川通11-7
  • JR東海道本線(東京~熱海)「川崎駅」徒歩14分
    JR京浜東北線「川崎駅」徒歩14分
  • 2SDK  54.67m2
外観

グランヴェール高円寺EAST 3階

9,280

  • 東京都杉並区高円寺北4-26-10
  • JR中央・総武線「高円寺駅」徒歩10分
    JR中央線(快速)「阿佐ケ谷駅」徒歩10分
  • 2LDK  68.92m2