生活利便施設が揃う吉祥寺北町エリア!4階部分・日当たり・眺望良好な南向き!
【特徴・設備】
■新耐震基準適合
■オートロックあり
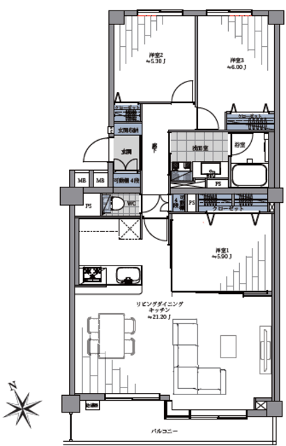
■ファミリーに最適な3LDK
■各居室にクローゼットあり
■修繕金積立金総額56,054,071円 (2024年8月末時点)
■外観タイル張り
【リノベーション内容】※2026年2月内装完成済
□フローリング新規貼替
□ユニットバス新規交換
□洗面化粧台新規交換
□トイレ新規交換
□建具・玄関収納新規交換
□壁・天井クロス新規交換
□システムキッチン新規
□給湯器新規交換
□洗濯水栓・防水パン新規交換
□給排水管新規交換(一部既存)





