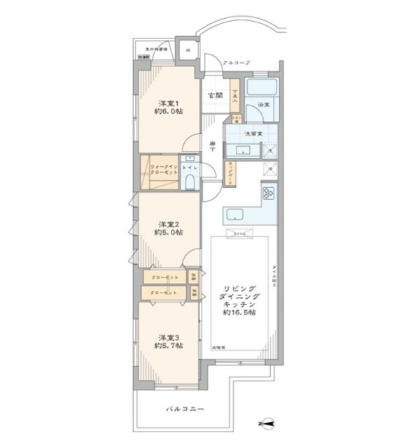
2階部分、西向き角部屋!新規内装リノベーション物件!
【特徴・設備】
■ペット飼育可
■全室窓あり
■二面採光
■家具の配置がしやすい間取り
■L字型カウンターキッチン
■3口ガスコンロ
■WICがあり収納豊富
■独立洗面台
■室内洗濯置き場あり
■アフターサービス保証付
【新規リノベーション内容】※2025年8月末完了
□フローリング新規貼替
□給水管・給湯管新規交換(専有部)
□建具・玄関収納等新規交換
□オリジナル洗面化粧台新規交換
□LIXIL製洗浄便座付トイレ新規交換
□LIXIL製ユニットバス新規交換(浴室換気乾燥機付)
□オリジナルシステムキッチン新規交換(食器洗い機付)
□壁・天井クロス新規貼替
□照明器具新規設置
□エアコン1基新規設置
□床暖房マット新規設置(LD) 等
