グランシティ三田・三ノ橋 4階

  • 総合トップ
  • 中古マンション
  • 一戸建て・土地
  • 投資・収益物件
  • 売りたい[売却査定]
  • 貸したい[賃料査定]

グランシティ三田・三ノ橋 4階

価格
24,800
毎月の返済額
(目安)
loansimulationIcon
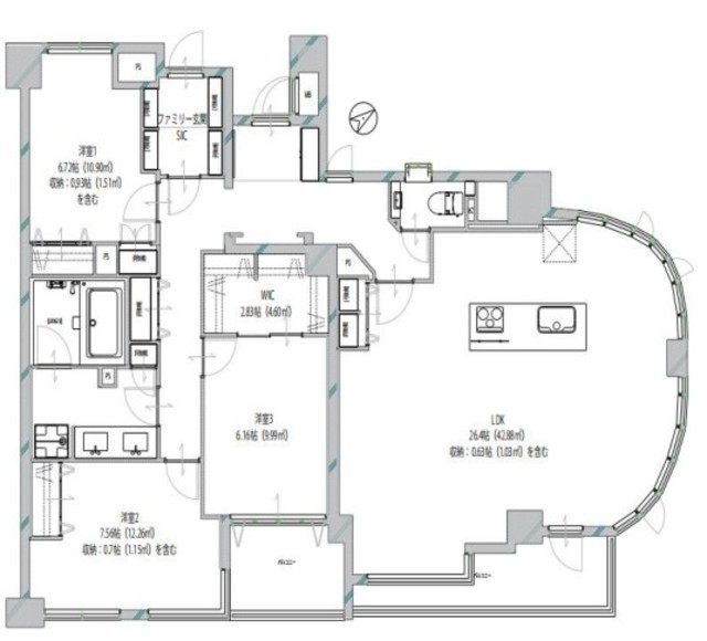
築年月 2001年5月 間取り 3LDK+SIC+WIC
専有面積 115.43m2 所在階 4階
方角 南東
所在地 東京都港区三田5-1-12
交通 東京メトロ南北線「白金高輪駅」徒歩5分
都営三田線「白金高輪駅」徒歩5分

4階部分、南東向き角部屋!家具付!ペット飼育可!

【特徴・設備】
■全室窓あり
■二面採光
■家具の配置がしやすい間取り
■アイランドキッチン
■3口ガスコンロ
■WIC・SICがあり収納豊富
■独立洗面台
■室内洗濯置き場あり

2冠達成 恵比寿不動産は物件数No.1 中古マンション数No.1

グランシティ三田・三ノ橋 4階の
購入に関するお問い合わせはこちらから

contact us

恵比寿不動産までお気軽にお問い合わせください

お電話でのお問い合わせはこちら:03-6421-0543 10:00 - 19:00 (水曜定休)
恵比寿不動産店舗情報渋谷区東3-25-11 TOKYU REIT恵比寿ビル4階
オフィス内観写真
オフィス外観写真
リフォーム無料お見積りサービス

物件概要

物件名 グランシティ三田・三ノ橋
所在地
交通
問合せ番号 2161-4F
物件特徴 デザイナーズ
物件条件 -
価格 24,800 管理費 16,900円/月
修繕積立金 33,480円/月 その他費用 -
間取り 3LDK 方角 南東
専有面積 115.43m2 バルコニー面積 -
建物構造 RC 築年月 2001年5月
総戸数 42戸 総階数 地上7階 地下1階
駐車場 34,000円~43,000円/月額 バイク置き場 -
駐輪場 - 土地権利 所有権
用途地域 準工業地域 管理形態 巡回管理
管理会社 東急コミュニティー株式会社 分譲会社 日本総合地所(株)
施工会社 松井建設(株) 設計会社 (株)パルシップ
取引態様 仲介 小学校学区 御田小学校
周辺情報 ■まいばすけっと 南麻布古川橋店(スーパー)まで約2分
■ローソン 古川橋店(コンビニ)まで約2分
■三田ハウス調剤薬局(ドラッグストア)まで約1分
現況 空室 入居/引渡時期 即時
更新日 2026年1月22日

備考

部屋設備

  • バス・トイレ別
  • 独立洗面台
  • 追い焚き
  • 温水洗浄便座
  • 浴室乾燥機
  • システムキッチン
  • アイランドキッチン
  • 食器洗浄機
  • 浄水器
  • ガスコンロ
  • 床暖房
  • エアコン
  • シューズインクローゼット
  • ウォークインクローゼット
  • フローリング
  • 角部屋
  • 南向き
  • 家具付き

建物設備

  • エレベーター
  • オートロック
  • 宅配ボックス
  • TVドアホン
  • 駐車場
  • 24時間ゴミ出し可
  • CATV
  • インターネット
  • 閑静な住宅街

グランシティ三田・三ノ橋 4階のローンシミュレーション

借入金額
24,800
頭金
0万円
毎月の返済額
頭金
  • 支払い額万円※半角数字
金利
  • %※半角数字
返済年数
  • ※元利均等返済方式、最大優遇の場合で計算しています。
  • ※融資には個別審査があり、審査結果により、貸出条件(金利・貸出期間・借入額)が異なる場合がございます。
  • ※不動産のご購入に際しましては物件価格以外にその他諸費用が必要となります。
    諸費用に関する詳細につきましてはお問い合わせ下さいませ。

周辺地図

※建物周辺情報はGoogleMapを使用しており、実際とは若干異なる場合がございます。

掲載情報について

  • ※本掲載情報と現況に差異がある場合、現況を優先いたします。
  • ※掲載物件は売却済あるいは売出中止となる場合もあります。
  • ※掲載写真やパース(絵)、または間取図に描かれている家具や車などは、価格に含まれておりません。また、過去に撮影したものをそのまま利用している場合があり、名称・外観・背景等、実際のものとは異なる場合がございます。予めご了承ください。
  • ※仲介物件には所定の仲介手数料(消費税等相当額を含みます)が必要です。
2冠達成 恵比寿不動産は物件数No.1 中古マンション数No.1

グランシティ三田・三ノ橋 4階の
購入に関するお問い合わせはこちらから

contact us

恵比寿不動産までお気軽にお問い合わせください

お電話でのお問い合わせはこちら:03-6421-0543 10:00 - 19:00 (水曜定休)
恵比寿不動産店舗情報渋谷区東3-25-11 TOKYU REIT恵比寿ビル4階
オフィス内観写真
オフィス外観写真

部屋一覧

売出し待ちお知らせ希望 未公開情報の確認 お問い合わせ
所在階 間取り 専有面積 価格 お気に入り お問い合わせ 詳細
4F 3LDK 115.43m2 24,800
お問い合わせ
詳細を見る

最近見た物件

赤坂アーバンライフおすすめ画像

赤坂アーバンライフ 3階

13,999

  • 東京都港区赤坂8-6-31
  • 東京メトロ銀座線「青山一丁目駅」徒歩5分
    東京メトロ千代田線「乃木坂駅」徒歩8分
  • 3LDK  71.40m2