秀和第2田町レジデンス 3階

  • 総合トップ
  • 中古マンション
  • 一戸建て・土地
  • 投資・収益物件
  • 売りたい[売却査定]
  • 貸したい[賃料査定]

秀和第2田町レジデンス 3階
新着

価格
8,199
毎月の返済額
(目安)
loansimulationIcon
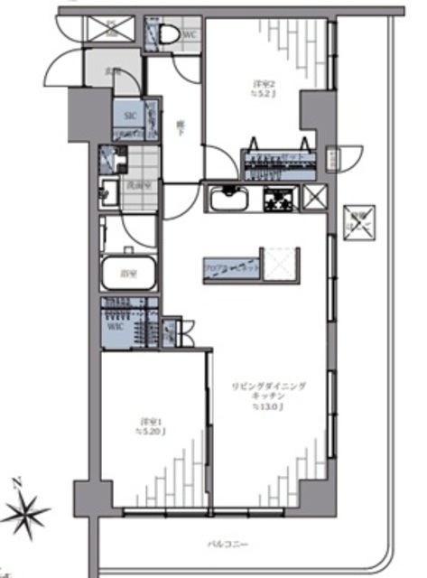
築年月 1982年6月 間取り 2LDK+WIC
専有面積 54.57m2 所在階 3階
方角 南西
所在地 東京都港区芝浦2-4-11
交通 JR山手線「田町駅」徒歩9分
JR京浜東北線「田町駅」徒歩9分

3階部分、南西向き角部屋!リノベーション物件!

【特徴・設備】
■L字型バルコニー
■全室窓あり
■二面採光
■家具の配置がしやすい間取り
■システムキッチン
■3口ガスコンロ
■WICがあり収納豊富
■独立洗面台
■室内洗濯置き場あり
■アフターサービス保証付

【リノベーション内容】
□フローリング新規貼替
□ユニットバス新規交換
□洗面化粧台新規交換
□トイレ新規交換
□建具・玄関収納新規交換
□壁・天井クロス新規交換
□システムキッチン新規交換
□給排水管新規交換(一部既存)
□洗濯水栓・防水パン新規交換
□給湯器新規交換 等

2冠達成 恵比寿不動産は物件数No.1 中古マンション数No.1

秀和第2田町レジデンス 3階の
購入に関するお問い合わせはこちらから

contact us

恵比寿不動産までお気軽にお問い合わせください

お電話でのお問い合わせはこちら:03-6421-0543 10:00 - 19:00 (水曜定休)
恵比寿不動産店舗情報渋谷区東3-25-11 TOKYU REIT恵比寿ビル4階
オフィス内観写真
オフィス外観写真
リフォーム無料お見積りサービス

物件概要

物件名 秀和第2田町レジデンス
所在地
交通
問合せ番号 2244-305
物件特徴 大規模マンション
物件条件 -
価格 8,199 管理費 14,600円/月
修繕積立金 16,500円/月 その他費用 -
間取り 2LDK 方角 南西
専有面積 54.57m2 バルコニー面積 19.26m2
建物構造 SRC 築年月 1982年6月
総戸数 128戸 総階数 地上11階 
駐車場 30,000円/月額 バイク置き場 1,000円~1,500円/月額
駐輪場 200円~300円/月額 土地権利 所有権
用途地域 準工業地域 管理形態 日勤管理
管理会社 レジデンス・ビルディングマネジメント株式会社 分譲会社 秀和(株)
施工会社 池田建設(株) 設計会社 池田建設(株)
取引態様 仲介 小学校学区 芝浦小学校
周辺情報 ■まいばすけっと 海岸3丁目店(スーパー)まで約3分
■ローソン 芝浦二丁目店(コンビニ)まで約1分
■スマイルドラッグ 芝浦3丁目調剤(ドラッグストア)まで約6分
現況 空室 入居/引渡時期 相談
更新日 2026年3月27日

備考

部屋設備

  • バス・トイレ別
  • 独立洗面台
  • 追い焚き
  • 温水洗浄便座
  • 浴室乾燥機
  • システムキッチン
  • 食器洗浄機
  • 浄水器
  • ガスコンロ
  • エアコン
  • ウォークインクローゼット
  • フローリング
  • 角部屋
  • 南向き
  • リノベーション

建物設備

  • エレベーター
  • オートロック
  • 宅配ボックス
  • TVドアホン
  • 駐車場
  • バイク置き場
  • 駐輪場
  • 24時間ゴミ出し可
  • 管理人常駐
  • 防犯カメラ
  • BS
  • CS
  • インターネット

秀和第2田町レジデンス 3階のローンシミュレーション

借入金額
8,199
頭金
0万円
毎月の返済額
頭金
  • 支払い額万円※半角数字
金利
  • %※半角数字
返済年数
  • ※元利均等返済方式、最大優遇の場合で計算しています。
  • ※融資には個別審査があり、審査結果により、貸出条件(金利・貸出期間・借入額)が異なる場合がございます。
  • ※不動産のご購入に際しましては物件価格以外にその他諸費用が必要となります。
    諸費用に関する詳細につきましてはお問い合わせ下さいませ。

周辺地図

※建物周辺情報はGoogleMapを使用しており、実際とは若干異なる場合がございます。

掲載情報について

  • ※本掲載情報と現況に差異がある場合、現況を優先いたします。
  • ※掲載物件は売却済あるいは売出中止となる場合もあります。
  • ※掲載写真やパース(絵)、または間取図に描かれている家具や車などは、価格に含まれておりません。また、過去に撮影したものをそのまま利用している場合があり、名称・外観・背景等、実際のものとは異なる場合がございます。予めご了承ください。
  • ※仲介物件には所定の仲介手数料(消費税等相当額を含みます)が必要です。
2冠達成 恵比寿不動産は物件数No.1 中古マンション数No.1

秀和第2田町レジデンス 3階の
購入に関するお問い合わせはこちらから

contact us

恵比寿不動産までお気軽にお問い合わせください

お電話でのお問い合わせはこちら:03-6421-0543 10:00 - 19:00 (水曜定休)
恵比寿不動産店舗情報渋谷区東3-25-11 TOKYU REIT恵比寿ビル4階
オフィス内観写真
オフィス外観写真

部屋一覧

売出し待ちお知らせ希望 未公開情報の確認 お問い合わせ
所在階 間取り 専有面積 価格 お気に入り お問い合わせ 詳細
新着
3F
リノベ
2LDK
54.57m2 8,199
お問い合わせ
詳細を見る