ワールドシティタワーズ アクアタワー 21階

  • 総合トップ
  • 中古マンション
  • 一戸建て・土地
  • 投資・収益物件
  • 売りたい[売却査定]
  • 貸したい[賃料査定]

ワールドシティタワーズ アクアタワー 21階
改定

価格
2800
毎月の返済額
(目安)
loansimulationIcon
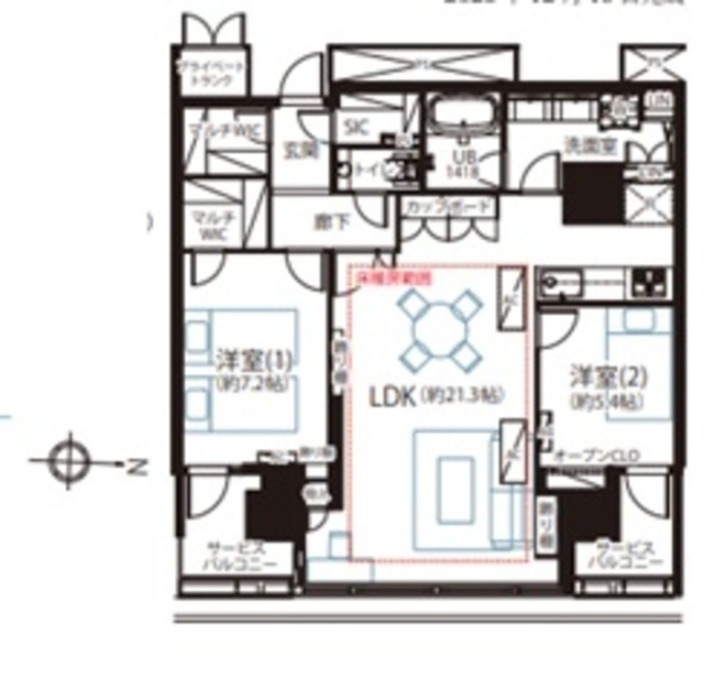
築年月 2005年10月 間取り 2LDK+SIC+WIC
専有面積 80.53m2 所在階 21階
方角
所在地 東京都港区港南4-6-1
交通 東京モノレール「天王洲アイル駅」徒歩7分
JR山手線「品川駅」徒歩14分

21階部分、東向き住戸!リノベーション物件!

【特徴・設備】
■ペット飼育可
■全室窓あり
■家具の配置がしやすい間取り
■システムキッチン
■3口ガスコンロ
■WICがあり収納豊富
■独立洗面台
■室内洗濯置き場あり
■アフターサービス保証付

【リノベーション内容】※2025年12月19日完了
□フローリング・クロス
□洗面
□トイレ 
□キッチン・カップボード
□ユニットバス 
□建具
□TES式床暖房(LDK)
□埋込式温風暖炉
□エアコン(4台) 等

2冠達成 恵比寿不動産は物件数No.1 中古マンション数No.1

ワールドシティタワーズ アクアタワー 21階の
購入に関するお問い合わせはこちらから

contact us

恵比寿不動産までお気軽にお問い合わせください

お電話でのお問い合わせはこちら:03-6421-0543 10:00 - 19:00 (水曜定休)
恵比寿不動産店舗情報渋谷区東3-25-11 TOKYU REIT恵比寿ビル4階
オフィス内観写真
オフィス外観写真
リフォーム無料お見積りサービス

物件概要

物件名 ワールドシティタワーズ アクアタワー
所在地
交通
問合せ番号 2358-2104
物件特徴 タワーマンション、デザイナーズ、大規模マンション
物件条件 ペット可、楽器可
価格 2800 管理費 19,778円/月
修繕積立金 24,360円/月 その他費用 -
間取り 2LDK 方角
専有面積 80.53m2 バルコニー面積 7.55m2
建物構造 RC 築年月 2005年10月
総戸数 2,090戸 総階数 地上40階 地下2階
駐車場 23,000円~48,000円/月額 バイク置き場 1,000円~3,000円/月額
駐輪場 200円~300円/月額 土地権利 所有権
用途地域 近隣商業地域、準工業地域 管理形態 常駐管理
管理会社 住友不動産建物サービス株式会社 分譲会社 住友不動産(株)
施工会社 清水建設(株)、(株)PS三菱、西武建設(株) 設計会社 -
取引態様 仲介 小学校学区 港南小学校
周辺情報 ■マルエツ 港南ワールドシティ店(スーパー)まで約2分
■ファミリーマート 港南四丁目店(コンビニ)まで約4分
■湘南薬局 港南薬局(ドラッグストア)まで約2分

現況 空室 入居/引渡時期 即時
更新日 2026年2月19日

備考

部屋設備

  • バス・トイレ別
  • 独立洗面台
  • 追い焚き
  • 温水洗浄便座
  • 浴室乾燥機
  • システムキッチン
  • 食器洗浄機
  • 浄水器
  • ガスコンロ
  • 床暖房
  • エアコン
  • シューズインクローゼット
  • ウォークインクローゼット
  • フローリング
  • リノベーション

建物設備

  • エレベーター
  • オートロック
  • 宅配ボックス
  • TVドアホン
  • トランクルーム
  • 駐車場
  • バイク置き場
  • 駐輪場
  • ラウンジ
  • キッズルーム
  • フロントサービス
  • フィットネス
  • プール
  • ゲストルーム
  • パーティールーム
  • シアタールーム
  • 24時間ゴミ出し可
  • 各階ゴミ置き場
  • 管理人常駐
  • 防犯カメラ
  • CATV
  • インターネット
  • 免震・制震
  • ペット可
  • 楽器可

ワールドシティタワーズ アクアタワー 21階のローンシミュレーション

借入金額
2800
頭金
0万円
毎月の返済額
頭金
  • 支払い額万円※半角数字
金利
  • %※半角数字
返済年数
  • ※元利均等返済方式、最大優遇の場合で計算しています。
  • ※融資には個別審査があり、審査結果により、貸出条件(金利・貸出期間・借入額)が異なる場合がございます。
  • ※不動産のご購入に際しましては物件価格以外にその他諸費用が必要となります。
    諸費用に関する詳細につきましてはお問い合わせ下さいませ。

周辺地図

※建物周辺情報はGoogleMapを使用しており、実際とは若干異なる場合がございます。

掲載情報について

  • ※本掲載情報と現況に差異がある場合、現況を優先いたします。
  • ※掲載物件は売却済あるいは売出中止となる場合もあります。
  • ※掲載写真やパース(絵)、または間取図に描かれている家具や車などは、価格に含まれておりません。また、過去に撮影したものをそのまま利用している場合があり、名称・外観・背景等、実際のものとは異なる場合がございます。予めご了承ください。
  • ※仲介物件には所定の仲介手数料(消費税等相当額を含みます)が必要です。
2冠達成 恵比寿不動産は物件数No.1 中古マンション数No.1

ワールドシティタワーズ アクアタワー 21階の
購入に関するお問い合わせはこちらから

contact us

恵比寿不動産までお気軽にお問い合わせください

お電話でのお問い合わせはこちら:03-6421-0543 10:00 - 19:00 (水曜定休)
恵比寿不動産店舗情報渋谷区東3-25-11 TOKYU REIT恵比寿ビル4階
オフィス内観写真
オフィス外観写真

部屋一覧

売出し待ちお知らせ希望 未公開情報の確認 お問い合わせ
所在階 間取り 専有面積 価格 お気に入り お問い合わせ 詳細
改定
13F
リノベ
2LDK
56.79m2 11,500
お問い合わせ
詳細を見る
改定
21F
リノベ
2LDK
80.53m2 2800
お問い合わせ
詳細を見る
改定
25F
3LDK 80.92m2 18,980
お問い合わせ
詳細を見る
改定
31F
1LDK 60.10m2 12,500
お問い合わせ
詳細を見る

最近見た物件

ワールドシティタワーズ アクアタワーおすすめ画像

ワールドシティタワーズ アクアタワー 25階

18,980

  • 東京都港区港南4-6-1
  • 東京モノレール「天王洲アイル駅」徒歩7分
    JR山手線「品川駅」徒歩14分
  • 3LDK  80.92m2