6階部分、南東向き角部屋!2022年12月リフォーム済!
【特徴・設備】
■『乃木坂』駅徒歩4分
■5路線4駅利用可能
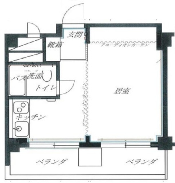
■家具の配置がしやすい間取り
■システムキッチン
■ユニットバス
■収納あり
■バルコニーあり
【リフォーム内容】※2022年3月完了
□クロス貼替
□フローリング貼替
□ユニットバス交換
□間取り変更 等
現在総賃料139,000円で賃貸中。表面利回りは5.24%で稼働中。
| 価格 | ***万円 |
毎月の返済額 (目安) |
|
|---|---|---|---|
| 築年月 | 1977年3月 | 間取り | 1R |
| 専有面積 | 25.60m2 | 所在階 | 6階 |
| 方角 | 南東 | ||
| 所在地 | 東京都港区赤坂8-13-13 | ||
| 交通 | 東京メトロ千代田線「乃木坂駅」徒歩4分 東京メトロ千代田線「赤坂駅」徒歩8分 |
||
【特徴・設備】
■『乃木坂』駅徒歩4分
■5路線4駅利用可能
■家具の配置がしやすい間取り
■システムキッチン
■ユニットバス
■収納あり
■バルコニーあり
【リフォーム内容】※2022年3月完了
□クロス貼替
□フローリング貼替
□ユニットバス交換
□間取り変更 等
現在総賃料139,000円で賃貸中。表面利回りは5.24%で稼働中。

| 物件名 | ボーン赤坂 | ||
|---|---|---|---|
| 所在地 | 東京都港区赤坂8-13-13 | ||
| 交通 |
東京メトロ千代田線「乃木坂駅」徒歩4分 東京メトロ千代田線「赤坂駅」徒歩8分 東京メトロ日比谷線「六本木駅」徒歩10分 東京メトロ銀座線「青山一丁目駅」徒歩11分 |
||
| 問合せ番号 | 2511-6F | ||
| 物件特徴 | ヴィンテージ | ||
| 物件条件 | ペット可、SOHO・事務所可 | ||
| 価格 | ***万円 | 管理費 | ***円/月 |
| 修繕積立金 | ***円/月 | その他費用 | *** |
| 間取り | 1R | 方角 | 南東 |
| 専有面積 | 25.60m2 | バルコニー面積 | 7.46m2 |
| 建物構造 | RC | 築年月 | 1977年3月 |
| 総戸数 | 31戸 | 総階数 | 地上6階 地下1階 |
| 駐車場 | 35,000~40,000円/月 | バイク置き場 | 8,000円/月 |
| 駐輪場 | 200円/月 | 土地権利 | 所有権 |
| 用途地域 | 第一種中高層住居専用地域 | 管理形態 | 日勤管理 |
| 管理会社 | 日本ハウズイング株式会社 | 分譲会社 | 新日本土木 |
| 施工会社 | 新日本土木 | 設計会社 | - |
| 取引態様 | 仲介 | 小学校学区 | 赤坂小学校 |
| 周辺情報 | ■プレミアム プレッセ東京ミッドタウン店(スーパー)まで10約分 ■ファミリーマート赤坂稲荷坂前店(コンビニ)まで約2分 ■SALUS(サルース)(ドラッグストア)まで約3分 |
||
| 現況 | 成約済 | 入居/引渡時期 | *** |
| 更新日 | 2023年11月12日 | ||
※建物周辺情報はGoogleMapを使用しており、実際とは若干異なる場合がございます。
掲載情報について

外観 物件画像1