グランドメゾン麻布十番館 3階

  • 総合トップ
  • 中古マンション
  • 一戸建て・土地
  • 投資・収益物件
  • 売りたい[売却査定]
  • 貸したい[賃料査定]

グランドメゾン麻布十番館 3階
新着

価格
16,999
毎月の返済額
(目安)
loansimulationIcon
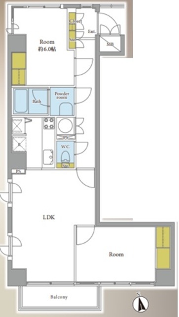
築年月 1983年9月 間取り 2LDK
専有面積 64.57m2 所在階 3階
方角 南西
所在地 東京都港区麻布十番2-1-8
交通 都営大江戸線「麻布十番駅」徒歩1分
都営大江戸線「赤羽橋駅」徒歩9分

3階部分、南向き角部屋!新規内装リノベーション物件!

【特徴・設備】
■ペット飼育可
■全室窓あり
■二面採光
■家具の配置がしやすい間取り
■システムキッチン
■3口ガスコンロ
■収納豊富
■独立洗面台
■室内洗濯置き場あり
■アフターサービス保証付

2冠達成 恵比寿不動産は物件数No.1 中古マンション数No.1

グランドメゾン麻布十番館 3階の
購入に関するお問い合わせはこちらから

contact us

恵比寿不動産までお気軽にお問い合わせください

お電話でのお問い合わせはこちら:03-6421-0543 10:00 - 19:00 (水曜定休)
恵比寿不動産店舗情報渋谷区東3-25-11 TOKYU REIT恵比寿ビル4階
オフィス内観写真
オフィス外観写真
リフォーム無料お見積りサービス

物件概要

物件名 グランドメゾン麻布十番館
所在地
交通
問合せ番号 2586-301
物件特徴 -
物件条件 ペット可
価格 16,999 管理費 14,150円/月
修繕積立金 14,150円/月 その他費用 -
間取り 2LDK 方角 南西
専有面積 64.57m2 バルコニー面積 3.78m2
建物構造 SRC 築年月 1983年9月
総戸数 50戸 総階数 地上10階 
駐車場 - バイク置き場 -
駐輪場 - 土地権利 所有権
用途地域 商業地域  管理形態 日勤管理
管理会社 大和ライフネクスト株式会社 分譲会社 積水ハウス(株)
施工会社 (株)大林組 設計会社 (株)日建ハウジングシステム
取引態様 仲介 小学校学区 南山小学校
周辺情報 ■成城石井 麻布十番店(スーパー)まで約1分
■ファミリーマート 麻布十番商店街通り店(コンビニ)まで約1分
■スマイルドラッグ 麻布店(ドラッグストア)まで約1分
現況 空室 入居/引渡時期 相談
更新日 2026年2月10日

備考

部屋設備

  • バス・トイレ別
  • 独立洗面台
  • 追い焚き
  • 温水洗浄便座
  • 浴室乾燥機
  • システムキッチン
  • 食器洗浄機
  • 浄水器
  • ガスコンロ
  • 床暖房
  • エアコン
  • フローリング
  • 角部屋
  • 南向き
  • リノベーション

建物設備

  • エレベーター
  • オートロック
  • TVドアホン
  • 24時間ゴミ出し可
  • 防犯カメラ
  • CATV
  • インターネット
  • ペット可
  • フラット35S

グランドメゾン麻布十番館 3階のローンシミュレーション

借入金額
16,999
頭金
0万円
毎月の返済額
頭金
  • 支払い額万円※半角数字
金利
  • %※半角数字
返済年数
  • ※元利均等返済方式、最大優遇の場合で計算しています。
  • ※融資には個別審査があり、審査結果により、貸出条件(金利・貸出期間・借入額)が異なる場合がございます。
  • ※不動産のご購入に際しましては物件価格以外にその他諸費用が必要となります。
    諸費用に関する詳細につきましてはお問い合わせ下さいませ。

周辺地図

※建物周辺情報はGoogleMapを使用しており、実際とは若干異なる場合がございます。

掲載情報について

  • ※本掲載情報と現況に差異がある場合、現況を優先いたします。
  • ※掲載物件は売却済あるいは売出中止となる場合もあります。
  • ※掲載写真やパース(絵)、または間取図に描かれている家具や車などは、価格に含まれておりません。また、過去に撮影したものをそのまま利用している場合があり、名称・外観・背景等、実際のものとは異なる場合がございます。予めご了承ください。
  • ※仲介物件には所定の仲介手数料(消費税等相当額を含みます)が必要です。
2冠達成 恵比寿不動産は物件数No.1 中古マンション数No.1

グランドメゾン麻布十番館 3階の
購入に関するお問い合わせはこちらから

contact us

恵比寿不動産までお気軽にお問い合わせください

お電話でのお問い合わせはこちら:03-6421-0543 10:00 - 19:00 (水曜定休)
恵比寿不動産店舗情報渋谷区東3-25-11 TOKYU REIT恵比寿ビル4階
オフィス内観写真
オフィス外観写真

部屋一覧

売出し待ちお知らせ希望 未公開情報の確認 お問い合わせ
所在階 間取り 専有面積 価格 お気に入り お問い合わせ 詳細
新着
3F
リノベ
2LDK
64.57m2 16,999
お問い合わせ
詳細を見る

最近見た物件

パークタワー晴海おすすめ画像

パークタワー晴海 18階

***

  • 東京都中央区晴海2-2-42
  • 東京メトロ有楽町線「月島駅」徒歩11分
    都営大江戸線「月島駅」徒歩11分
  • 2LDK  78.67m2
秀和第二南平台レジデンスおすすめ画像

秀和第二南平台レジデンス 1階

***

  • 東京都渋谷区南平台町12-13
  • 京王井の頭線「神泉駅」徒歩8分
    東急東横線「渋谷駅」徒歩10分
  • 1LDK  45.65m2
下馬スカイマンションおすすめ画像

下馬スカイマンション 2階

6,480

  • 東京都世田谷区下馬2-2-12
  • 東急田園都市線「三軒茶屋駅」徒歩13分
    東急世田谷線「三軒茶屋駅」徒歩13分
  • 2LDK  66.96m2
秀和目黒駅前レジデンスおすすめ画像

秀和目黒駅前レジデンス 2階

***

  • 東京都品川区上大崎3-3-9
  • JR山手線「目黒駅」徒歩4分
    東京メトロ南北線「目黒駅」徒歩4分
  • 3DK  58.30m2
プラウド渋谷東おすすめ画像

プラウド渋谷東 7階

34,500

  • 東京都渋谷区東2-26-17
  • 東京メトロ日比谷線「恵比寿駅」徒歩9分
    東急田園都市線「渋谷駅」徒歩9分
  • 2LDK  71.62m2
パークタワー晴海おすすめ画像

パークタワー晴海 16階

***

  • 東京都中央区晴海2-2-42
  • 東京メトロ有楽町線「月島駅」徒歩11分
    都営大江戸線「月島駅」徒歩11分
  • 2LDK  72.86m2