ラクシア品川ポルトチッタ 13階 成約済みの部屋 2720-13F

  • 総合トップ
  • 中古マンション
  • 一戸建て・土地
  • 投資・収益物件
  • 売りたい[売却査定]
  • 貸したい[賃料査定]

ラクシア品川ポルトチッタ 成約済み物件 (2720-13F)

こちらのお部屋は既に成約済みです。

お手数ですが、建物詳細ページより同マンションで売り出し中の別のお部屋をご覧いただくか、
物件検索より最新の物件をお探しください。

価格
***
毎月の返済額
(目安)
loansimulationIcon
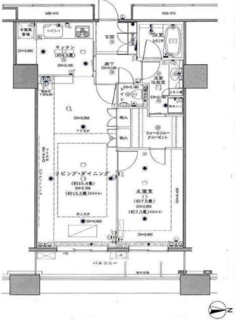
築年月 2005年1月 間取り 1LDK+WIC
専有面積 63.10m2 所在階 13階
方角
所在地 東京都港区港南3-7-10
交通 JR山手線「品川駅」徒歩13分
JR京浜東北線「品川駅」徒歩13分

13階部分東向き・ペット飼育可能物件!

【特徴・設備】
■システムキッチン
■ディスポーザー
■3口コンロ
■食洗機
■LDに温水式床暖房
■ウォークインクローゼット
■浴室乾燥機
■追い焚き機能
■温水洗浄便座
■最高天井高2.7m
■閑静な住宅街に佇むタワーマンション

現在総賃料190,000円で賃貸中。表面利回りは4.75%で稼働中です。

2冠達成 恵比寿不動産は物件数No.1 中古マンション数No.1

物件概要

物件名 ラクシア品川ポルトチッタ
所在地
交通
問合せ番号 2720-13F
物件特徴 タワーマンション、大規模マンション
物件条件 ペット可
価格 *** 管理費 ***円/月
修繕積立金 ***円/月 その他費用 ***
間取り 1LDK 方角
専有面積 63.10m2 バルコニー面積 8.06m2
建物構造 RC 築年月 2005年1月
総戸数 162戸 総階数 地上22階 
駐車場 28,000円~35,000円/月 バイク置き場 18,000/年
駐輪場 200円~300円/月 土地権利 所有権
用途地域 準工業地域 管理形態 日勤管理
管理会社 伊藤忠アーバンコミュニティ株式会社 分譲会社 ジェイアール貨物・不動産開発
施工会社 竹中工務店・黒沢建設共同企業体 設計会社 -
取引態様 仲介 小学校学区 港南小学校
周辺情報 ■マルエツ港南シティタワー店(スーパー)まで約3分
■ローソン港南三丁目店(コンビニ)まで約1分
■ファルマルシャ薬局品川港南店(ドラッグストア)まで約3分
現況 成約済 入居/引渡時期 ***
更新日 2024年2月13日

備考

部屋設備

  • バス・トイレ別
  • 独立洗面台
  • 追い焚き
  • 温水洗浄便座
  • 浴室乾燥機
  • システムキッチン
  • ディスポーザー
  • 食器洗浄機
  • 床暖房
  • エアコン
  • ウォークインクローゼット

建物設備

  • エレベーター
  • オートロック
  • 宅配ボックス
  • TVドアホン
  • 駐車場
  • バイク置き場
  • 駐輪場
  • フロントサービス
  • 24時間ゴミ出し可
  • 各階ゴミ置き場
  • 内廊下
  • BS
  • CS
  • CATV
  • インターネット
  • 閑静な住宅街
  • 免震・制震
  • ペット可

周辺地図

※建物周辺情報はGoogleMapを使用しており、実際とは若干異なる場合がございます。

掲載情報について

  • ※本掲載情報と現況に差異がある場合、現況を優先いたします。
  • ※掲載物件は売却済あるいは売出中止となる場合もあります。
  • ※掲載写真やパース(絵)、または間取図に描かれている家具や車などは、価格に含まれておりません。また、過去に撮影したものをそのまま利用している場合があり、名称・外観・背景等、実際のものとは異なる場合がございます。予めご了承ください。
  • ※仲介物件には所定の仲介手数料(消費税等相当額を含みます)が必要です。
2冠達成 恵比寿不動産は物件数No.1 中古マンション数No.1

部屋一覧

売出し待ちお知らせ希望 未公開情報の確認 お問い合わせ
所在階 間取り 専有面積 価格 お気に入り お問い合わせ 詳細

最近見た物件

パークスクエア文京音羽おすすめ画像

パークスクエア文京音羽 11階

***

  • 東京都文京区音羽1-8-3
  • 東京メトロ有楽町線「江戸川橋駅」徒歩6分
    東京メトロ有楽町線「護国寺駅」徒歩6分
  • 1SLDK  67.82m2