5階部分、東向き住戸!リフォーム物件!
【特徴・設備】
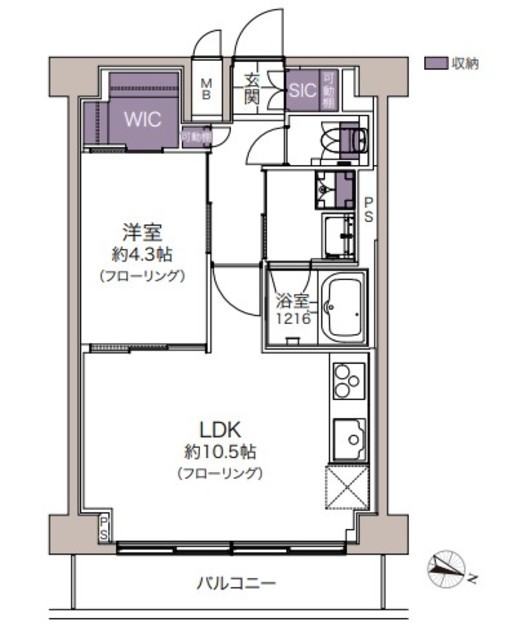
■LDKは窓あり
■家具の配置がしやすい間取り
■システムキッチン
■3口ガスコンロ
■WICがあり収納豊富
■独立洗面台
■室内洗濯置き場あり
■アフターサービス保証付
【リフォーム内容】※2025年12月1日完了
□フローリング新規貼替
□壁・天井クロス新規貼替
□給湯器新規交換(追いだき機能付)
□洗面化粧台新規交換
□システムキッチン新規交換
□建具・玄関収納等新規交換
□照明器具新規設置
□ユニットバス新規交換(浴室換気乾燥機付)
□洗浄便座付きトイレ新規交換
□食器洗い乾燥機新規設置 等





