38階部分、南向き住戸!
【特徴・設備】
■全室窓あり
■家具の配置がしやすい間取り
■システムキッチン
■3口ガスコンロ
■WICがあり収納豊富
■独立洗面台
■室内洗濯置き場あり
| 価格 | ***万円 |
毎月の返済額 (目安) |
|
|---|---|---|---|
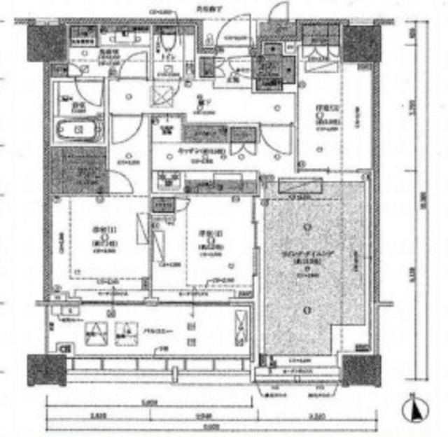
| 築年月 | 2023年2月 | 間取り | 3LDK+WIC |
| 専有面積 | 80.82m2 | 所在階 | 38階 |
| 方角 | 南西 | ||
| 所在地 | 東京都港区白金1-2-1 | ||
| 交通 | 東京メトロ南北線「白金高輪駅」徒歩3分 都営大江戸線「麻布十番駅」徒歩12分 |
||
【特徴・設備】
■全室窓あり
■家具の配置がしやすい間取り
■システムキッチン
■3口ガスコンロ
■WICがあり収納豊富
■独立洗面台
■室内洗濯置き場あり

| 物件名 | 白金ザ・スカイ | ||
|---|---|---|---|
| 所在地 | 東京都港区白金1-2-1 | ||
| 交通 |
東京メトロ南北線「白金高輪駅」徒歩3分 都営大江戸線「麻布十番駅」徒歩12分 都営三田線「白金高輪駅」徒歩3分 東京メトロ南北線「麻布十番駅」徒歩12分 |
||
| 問合せ番号 | 4841-38F | ||
| 物件特徴 | タワーマンション、大規模マンション | ||
| 物件条件 | ペット可 | ||
| 価格 | ***万円 | 管理費 | ***円/月 |
| 修繕積立金 | ***円/月 | その他費用 | *** |
| 間取り | 3LDK | 方角 | 南西 |
| 専有面積 | 80.82m2 | バルコニー面積 | 11.2m2 |
| 建物構造 | RC | 築年月 | 2023年2月 |
| 総戸数 | 1,247戸 | 総階数 | 地上45階 地下1階 |
| 駐車場 | 37,000~60,000円/月額 | バイク置き場 | 7,000~15,000円/月額 |
| 駐輪場 | 300~800円/月額 | 土地権利 | 所有権 |
| 用途地域 | 商業地域 、準工業地域 | 管理形態 | 日勤管理 |
| 管理会社 | ㈱長谷工コミュニティ | 分譲会社 | 東京建物・住友不動産・野村不動産・三井不動産レジデンシャル |
| 施工会社 | 大林組・長谷工建設共同企業体 | 設計会社 | - |
| 取引態様 | 仲介 | 小学校学区 | 白金の丘学園・白金の丘小学校 |
| 周辺情報 | ■リンコス白金ザ・スカイ店 歩1分 ■まいばすけっと南麻布古川橋店 歩2分 ■スターチャイルド白金高輪ナーサリー 歩1分 ■アイグラン保育園南麻布 歩2分 ■港区立赤羽小学校 歩14分 ■私立慶應義塾中等部 歩9分 ■私立慶應義塾大学 歩12分 ■白金志田町児童遊園 歩1分 ■港区スポーツセンター 歩18分 ■都立芝公園 歩13分 |
||
| 現況 | 成約済 | 入居/引渡時期 | *** |
| 更新日 | 2025年12月4日 | ||
※建物周辺情報はGoogleMapを使用しており、実際とは若干異なる場合がございます。
掲載情報について

1億3,880万円
外観 物件画像1