コンシェリア西新宿タワーズウエスト 33階 成約済みの部屋 5088-33F

  • 総合トップ
  • 中古マンション
  • 一戸建て・土地
  • 投資・収益物件
  • 売りたい[売却査定]
  • 貸したい[賃料査定]

コンシェリア西新宿タワーズウエスト 成約済み物件 (5088-33F)

こちらのお部屋は既に成約済みです。

お手数ですが、建物詳細ページより同マンションで売り出し中の別のお部屋をご覧いただくか、
物件検索より最新の物件をお探しください。

価格
***
毎月の返済額
(目安)
loansimulationIcon
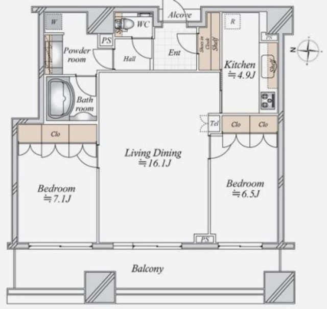
築年月 2008年2月 間取り 2LDK
専有面積 77.51m2 所在階 33階
方角 西
所在地 東京都新宿区西新宿6-20-7
交通 都営大江戸線「西新宿五丁目駅」徒歩5分
都営大江戸線「都庁前駅」徒歩7分

33階部分、西向きにつき眺望良好!

【特徴・設備】
■富士山を望む望む開放的な眺望
■抜け感◎
■室内に柱や梁の出っ張りのないアウトフレーム
■全室窓あり
■家具の配置がしやすい間取り
■システムキッチン
■家具の配置がしやすい間取り
■独立洗面台
■室内洗濯置き場あり

2冠達成 恵比寿不動産は物件数No.1 中古マンション数No.1

物件概要

物件名 コンシェリア西新宿タワーズウエスト
所在地
交通
問合せ番号 5088-33F
物件特徴 タワーマンション、大規模マンション
物件条件 ペット可
価格 *** 管理費 ***円/月
修繕積立金 ***円/月 その他費用 ***
間取り 2LDK 方角 西
専有面積 77.51m2 バルコニー面積 14.3m2
建物構造 RC 築年月 2008年2月
総戸数 612戸 総階数 地上44階 
駐車場 43,000円~50,000円/月 バイク置き場 8000円/月
駐輪場 500円/月 土地権利 所有権
用途地域 商業地域  管理形態 日勤管理
管理会社 日本マンション管理(株) 分譲会社 株式会社クレアスライフ
施工会社 株式会社大林組 設計会社 -
取引態様 仲介 小学校学区 西新宿小学校
周辺情報 ■マルエツプチ西新宿六丁目店(スーパー)まで約2分
■ファミリーマート新宿アイタウン店(コンビニ)まで約2分
■ドラッグセイムス西新宿6丁目店(ドラッグストア)まで約2分
現況 成約済 入居/引渡時期 ***
更新日 2024年6月14日

備考

部屋設備

  • バス・トイレ別
  • 独立洗面台
  • 追い焚き
  • 温水洗浄便座
  • 浴室乾燥機
  • システムキッチン
  • ガスコンロ
  • エアコン
  • フローリング

建物設備

  • エレベーター
  • オートロック
  • 宅配ボックス
  • TVドアホン
  • 駐車場
  • バイク置き場
  • 駐輪場
  • ラウンジ
  • フロントサービス
  • フィットネス
  • プール
  • ゲストルーム
  • 24時間ゴミ出し可
  • 各階ゴミ置き場
  • 内廊下
  • 管理人常駐
  • 防犯カメラ
  • BS
  • CS
  • インターネット
  • 閑静な住宅街
  • ペット可

周辺地図

※建物周辺情報はGoogleMapを使用しており、実際とは若干異なる場合がございます。

掲載情報について

  • ※本掲載情報と現況に差異がある場合、現況を優先いたします。
  • ※掲載物件は売却済あるいは売出中止となる場合もあります。
  • ※掲載写真やパース(絵)、または間取図に描かれている家具や車などは、価格に含まれておりません。また、過去に撮影したものをそのまま利用している場合があり、名称・外観・背景等、実際のものとは異なる場合がございます。予めご了承ください。
  • ※仲介物件には所定の仲介手数料(消費税等相当額を含みます)が必要です。
2冠達成 恵比寿不動産は物件数No.1 中古マンション数No.1

部屋一覧

売出し待ちお知らせ希望 未公開情報の確認 お問い合わせ
所在階 間取り 専有面積 価格 お気に入り お問い合わせ 詳細
21F 1LDK 55.01m2 1500
お問い合わせ
詳細を見る
22F 1LDK 55.16m2 9,980
お問い合わせ
詳細を見る

最近見た物件

ルネサンスフォルム溝の口おすすめ画像

ルネサンスフォルム溝の口 11階

***

  • 神奈川県川崎市高津区久本3丁目12-20
  • 東急田園都市線「溝の口駅」徒歩10分
  • 3LDK  65.76m2
グランシャトレ駒込曙町おすすめ画像

グランシャトレ駒込曙町 6階

16,200

  • 東京都文京区本駒込1-11-9
  • 東京メトロ南北線「本駒込駅」徒歩6分
    都営三田線「白山駅」徒歩7分
  • 3LDK  72.44m2