富久クロスコンフォートタワー 6階

  • 総合トップ
  • 中古マンション
  • 一戸建て・土地
  • 投資・収益物件
  • 売りたい[売却査定]
  • 貸したい[賃料査定]

富久クロスコンフォートタワー 6階
新着

価格
13,900
毎月の返済額
(目安)
loansimulationIcon
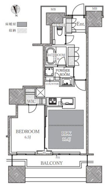
築年月 2015年9月 間取り 1LDK+WIC
専有面積 47.06m2 所在階 6階
方角
所在地 東京都新宿区富久町15-1
交通 東京メトロ丸ノ内線「新宿御苑前駅」徒歩5分
東京メトロ副都心線「新宿三丁目駅」徒歩7分

6階部分、北向き住戸!ペット飼育可!

【特徴・設備】
■全室窓あり
■家具の配置がしやすい間取り
■カウンターキッチン
■3口ガスコンロ
■WICがあり収納豊富
■独立洗面台
■室内洗濯置き場あり

2冠達成 恵比寿不動産は物件数No.1 中古マンション数No.1

富久クロスコンフォートタワー 6階の
購入に関するお問い合わせはこちらから

contact us

恵比寿不動産までお気軽にお問い合わせください

お電話でのお問い合わせはこちら:03-6421-0543 10:00 - 19:00 (水曜定休)
恵比寿不動産店舗情報渋谷区東3-25-11 TOKYU REIT恵比寿ビル4階
オフィス内観写真
オフィス外観写真
リフォーム無料お見積りサービス

物件概要

物件名 富久クロスコンフォートタワー
所在地
交通
問合せ番号 5143-618
物件特徴 タワーマンション、大規模マンション
物件条件 ペット可
価格 13,900 管理費 16,560円/月
修繕積立金 15,260円/月 その他費用 -
間取り 1LDK 方角
専有面積 47.06m2 バルコニー面積 -
建物構造 SRC 築年月 2015年9月
総戸数 1,093戸 総階数 地上55階 
駐車場 30,000円~38,000円/月 バイク置き場 2,500円~4,000円/月
駐輪場 200~500円/月 土地権利 所有権
用途地域 商業地域  管理形態 常駐管理
管理会社 野村不動産パートナーズ株式会社 分譲会社 野村不動産|三井不動産レジデンシャル
施工会社 戸田建設|五洋建設 設計会社 -
取引態様 仲介 小学校学区 富久小学校
周辺情報 ■ヨークフーズ新宿富久店(スーパー)まで約5分
■ローソン新宿一丁目店(コンビニ)まで約2分
■ココカラファインヨークフーズ新宿富久店(ドラッグストア)まで約1分
現況 空室 入居/引渡時期 即時
更新日 2026年3月13日

備考

部屋設備

  • バス・トイレ別
  • 独立洗面台
  • 追い焚き
  • 温水洗浄便座
  • 浴室乾燥機
  • システムキッチン
  • カウンターキッチン
  • 食器洗浄機
  • 浄水器
  • ガスコンロ
  • 床暖房
  • エアコン
  • ウォークインクローゼット
  • フローリング
  • リノベーション

建物設備

  • エレベーター
  • オートロック
  • 宅配ボックス
  • TVドアホン
  • トランクルーム
  • ペット足洗い場
  • 駐車場
  • バイク置き場
  • 駐輪場
  • ラウンジ
  • キッズルーム
  • フロントサービス
  • フィットネス
  • ゲストルーム
  • パーティールーム
  • 24時間ゴミ出し可
  • 各階ゴミ置き場
  • 内廊下
  • 管理人常駐
  • BS
  • CS
  • CATV
  • インターネット
  • ペット可
  • フラット35S

富久クロスコンフォートタワー 6階のローンシミュレーション

借入金額
13,900
頭金
0万円
毎月の返済額
頭金
  • 支払い額万円※半角数字
金利
  • %※半角数字
返済年数
  • ※元利均等返済方式、最大優遇の場合で計算しています。
  • ※融資には個別審査があり、審査結果により、貸出条件(金利・貸出期間・借入額)が異なる場合がございます。
  • ※不動産のご購入に際しましては物件価格以外にその他諸費用が必要となります。
    諸費用に関する詳細につきましてはお問い合わせ下さいませ。

周辺地図

※建物周辺情報はGoogleMapを使用しており、実際とは若干異なる場合がございます。

掲載情報について

  • ※本掲載情報と現況に差異がある場合、現況を優先いたします。
  • ※掲載物件は売却済あるいは売出中止となる場合もあります。
  • ※掲載写真やパース(絵)、または間取図に描かれている家具や車などは、価格に含まれておりません。また、過去に撮影したものをそのまま利用している場合があり、名称・外観・背景等、実際のものとは異なる場合がございます。予めご了承ください。
  • ※仲介物件には所定の仲介手数料(消費税等相当額を含みます)が必要です。
2冠達成 恵比寿不動産は物件数No.1 中古マンション数No.1

富久クロスコンフォートタワー 6階の
購入に関するお問い合わせはこちらから

contact us

恵比寿不動産までお気軽にお問い合わせください

お電話でのお問い合わせはこちら:03-6421-0543 10:00 - 19:00 (水曜定休)
恵比寿不動産店舗情報渋谷区東3-25-11 TOKYU REIT恵比寿ビル4階
オフィス内観写真
オフィス外観写真

部屋一覧

売出し待ちお知らせ希望 未公開情報の確認 お問い合わせ
所在階 間取り 専有面積 価格 お気に入り お問い合わせ 詳細
新着
6F
リノベ
1LDK
47.06m2 13,900
お問い合わせ
詳細を見る
53F 3LDK 60.00m2 25,200
お問い合わせ
詳細を見る