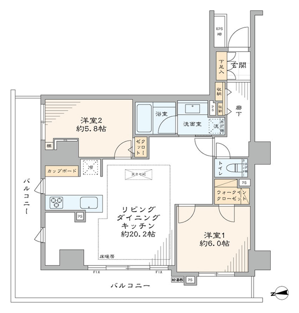
5階部分、西向き角部屋!新規リノベーション物件!
【特徴・設備】
■ペット飼育可
■L字型バルコニー
■全室窓あり
■二面採光
■家具の配置がしやすい間取り
■カウンターキッチン
■3口ガスコンロ
■WICがあり収納豊富
■独立洗面台
■室内洗濯置き場
■アフターサービス保証付
【新規リノベーション内容】
□フローリング新規貼替
□壁・天井クロス新規貼替
□建具・玄関収納等新規交換
□オリジナル洗面化粧台新規交換
□TOTO製洗浄便座付トイレ新規交換
□LIXIL製ユニットバス新規交換(浴室換気乾燥機付)
□オリジナルシステムキッチン新規交換(食器洗い機付)
□照明器具新規設置
□エアコン2基新規設置
□床暖房マット新規設置(LD)
□給湯器新規交換(追焚式) 等





