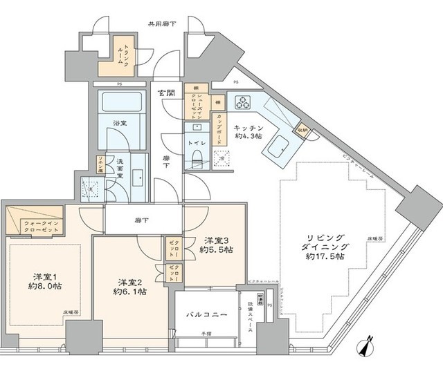
7階部分、南東向き角部屋!新規内装リノベーション物件!
【特徴・設備】
■ペット飼育可
■全室窓あり
■二面採光
■家具の配置がしやすい間取り
■カウンターキッチン
■3口ガスコンロ
■WICがあり収納豊富
■独立洗面台
■室内洗濯置き場あり
■アフターサービス保証付
【新規内装リノベーション内容】※2025年9月完了
□壁・天井クロス新規貼替
□食器洗い機新規交換
□ディスポーザー新規交換
□洗浄便座付トイレ新規交換(手洗いカウンターは既存)
□照明器具一部新規設置
□浴室換気乾燥機新規交換
□洗濯パン新規交換 等





