イニシア築地 2階

  • 総合トップ
  • 中古マンション
  • 一戸建て・土地
  • 投資・収益物件
  • 売りたい[売却査定]
  • 貸したい[賃料査定]

イニシア築地 2階
新着

価格
22,900
毎月の返済額
(目安)
loansimulationIcon
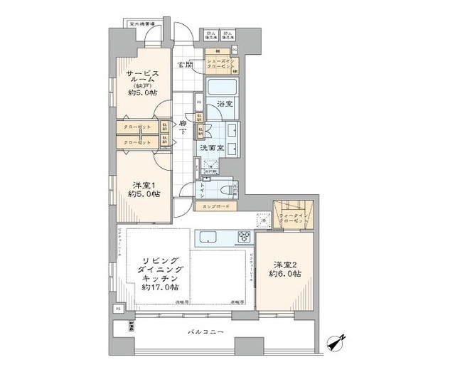
築年月 2014年2月 間取り 2SLDK+SIC+WIC
専有面積 83.29m2 所在階 2階
方角 南東
所在地 東京都中央区築地2-11-5
交通 東京メトロ日比谷線「築地駅」徒歩2分
東京メトロ有楽町線「新富町駅」徒歩4分

2階部分、南東向き角部屋!新規リノベーション物件!

【特徴・設備】
■ペット飼育可
■全室窓あり
■二面採光
■家具の配置がしやすい間取り
■カウンターキッチン
■3口ガスコンロ
■WICがあり収納豊富
■独立洗面台
■室内洗濯置き場あり
■アフターサービス保証付

【リノベーション内容】
□フローリング新規貼替
□壁・天井クロス新規貼替
□給湯管新規交換(専有部)
□建具・玄関収納等新規交換
□LIXIL製洗面化粧台新規交換
□TOTO製洗浄便座付トイレ新規交換
□TOTO製ユニットバス新規交換
□Panasonic製システムキッチン新規交換(食器洗い機付)
□照明器具新規設置
□エアコン2基新規設置
□床暖房マット新規交換(LD)
□給湯器新規交換(追焚式)) 等

2冠達成 恵比寿不動産は物件数No.1 中古マンション数No.1

イニシア築地 2階の
購入に関するお問い合わせはこちらから

contact us

恵比寿不動産までお気軽にお問い合わせください

お電話でのお問い合わせはこちら:03-6421-0543 10:00 - 19:00 (水曜定休)
恵比寿不動産店舗情報渋谷区東3-25-11 TOKYU REIT恵比寿ビル4階
オフィス内観写真
オフィス外観写真
リフォーム無料お見積りサービス

物件概要

物件名 イニシア築地
所在地
交通
問合せ番号 5689-202
物件特徴 -
物件条件 ペット可
価格 22,900 管理費 18,600円/月
修繕積立金 13,400円/月 その他費用 100円/月
間取り 2SLDK 方角 南東
専有面積 83.29m2 バルコニー面積 16.11m2
建物構造 RC 築年月 2014年2月
総戸数 63戸 総階数 地上14階 
駐車場 - バイク置き場 2,000円/月
駐輪場 100円/月 土地権利 所有権
用途地域 商業地域  管理形態 日勤管理
管理会社 大和ライフネクスト株式会社 分譲会社 伊藤忠商事・コスモイニシア
施工会社 淺沼組 設計会社 -
取引態様 仲介 小学校学区 京橋築地小学校
周辺情報 ■まいばすけっと築地2丁目店(スーパー)まで約1分
■ミニストップ築地2丁目店(コンビニ)まで約1分
■トラヤ薬局(ドラッグストア)まで約1分
現況 空室 入居/引渡時期 即時
更新日 2026年2月28日

備考

部屋設備

  • バス・トイレ別
  • 独立洗面台
  • 追い焚き
  • 温水洗浄便座
  • 浴室乾燥機
  • システムキッチン
  • カウンターキッチン
  • 食器洗浄機
  • 浄水器
  • ガスコンロ
  • 床暖房
  • エアコン
  • フローリング
  • 角部屋
  • 南向き
  • リノベーション

建物設備

  • エレベーター
  • オートロック
  • 宅配ボックス
  • TVドアホン
  • 駐車場
  • バイク置き場
  • 駐輪場
  • 24時間ゴミ出し可
  • 内廊下
  • BS
  • CS
  • CATV
  • インターネット
  • ペット可

イニシア築地 2階のローンシミュレーション

借入金額
22,900
頭金
0万円
毎月の返済額
頭金
  • 支払い額万円※半角数字
金利
  • %※半角数字
返済年数
  • ※元利均等返済方式、最大優遇の場合で計算しています。
  • ※融資には個別審査があり、審査結果により、貸出条件(金利・貸出期間・借入額)が異なる場合がございます。
  • ※不動産のご購入に際しましては物件価格以外にその他諸費用が必要となります。
    諸費用に関する詳細につきましてはお問い合わせ下さいませ。

周辺地図

※建物周辺情報はGoogleMapを使用しており、実際とは若干異なる場合がございます。

掲載情報について

  • ※本掲載情報と現況に差異がある場合、現況を優先いたします。
  • ※掲載物件は売却済あるいは売出中止となる場合もあります。
  • ※掲載写真やパース(絵)、または間取図に描かれている家具や車などは、価格に含まれておりません。また、過去に撮影したものをそのまま利用している場合があり、名称・外観・背景等、実際のものとは異なる場合がございます。予めご了承ください。
  • ※仲介物件には所定の仲介手数料(消費税等相当額を含みます)が必要です。
2冠達成 恵比寿不動産は物件数No.1 中古マンション数No.1

イニシア築地 2階の
購入に関するお問い合わせはこちらから

contact us

恵比寿不動産までお気軽にお問い合わせください

お電話でのお問い合わせはこちら:03-6421-0543 10:00 - 19:00 (水曜定休)
恵比寿不動産店舗情報渋谷区東3-25-11 TOKYU REIT恵比寿ビル4階
オフィス内観写真
オフィス外観写真

部屋一覧

売出し待ちお知らせ希望 未公開情報の確認 お問い合わせ
所在階 間取り 専有面積 価格 お気に入り お問い合わせ 詳細
新着
2F
リノベ
2SLDK
83.29m2 22,900
お問い合わせ
詳細を見る

最近見た物件

クイーンシティ本所・親水公園おすすめ画像

クイーンシティ本所・親水公園 3階

7,280

  • 東京都墨田区本所4-30-5
  • 都営浅草線「本所吾妻橋駅」徒歩9分
    東武伊勢崎線「とうきょうスカイツリー駅」徒歩10分
  • 2LDK  60.25m2
パーク・ハイム上池台おすすめ画像

パーク・ハイム上池台 4階

4,780

  • 東京都大田区上池台5-25-2
  • 都営浅草線「西馬込駅」徒歩11分
    東急池上線「洗足池駅」徒歩16分
  • 2SLDK  70.39m2
イニシア墨田押上おすすめ画像

イニシア墨田押上 5階

8,499

  • 東京都墨田区向島1-22-6
  • 東武伊勢崎線「とうきょうスカイツリー駅」徒歩4分
    都営浅草線「本所吾妻橋駅」徒歩6分
  • 1SLDK  54.21m2
スタジオデン押上おすすめ画像

スタジオデン押上 5階

7,490

  • 東京都墨田区業平3-7-7
  • 東京メトロ半蔵門線「押上(スカイツリー前)駅」徒歩2分
    都営浅草線「押上(スカイツリー前)駅」徒歩2分
  • 1SLDK  54.07m2