ライオンズシティ西新宿 3階 成約済みの部屋 5852-302

  • 総合トップ
  • 中古マンション
  • 一戸建て・土地
  • 投資・収益物件
  • 売りたい[売却査定]
  • 貸したい[賃料査定]

ライオンズシティ西新宿 成約済み物件 (5852-302)

こちらのお部屋は既に成約済みです。

お手数ですが、建物詳細ページより同マンションで売り出し中の別のお部屋をご覧いただくか、
物件検索より最新の物件をお探しください。

価格
***
毎月の返済額
(目安)
loansimulationIcon
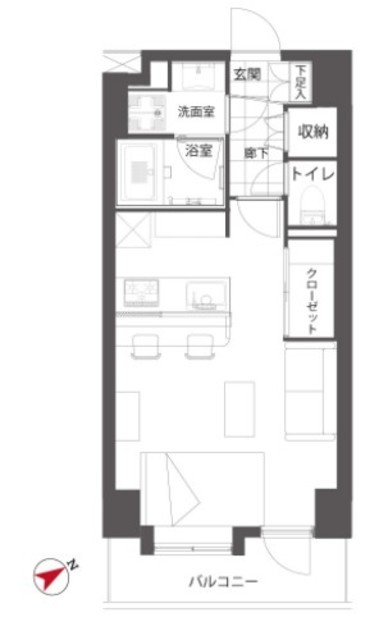
築年月 1999年2月 間取り 1DK
専有面積 34.90m2 所在階 3階
方角 南東
所在地 東京都新宿区西新宿8-8-18
交通 東京メトロ丸ノ内線「西新宿駅」徒歩5分
JR中央・総武線「大久保駅」徒歩8分

【2022年4月29日価格改定】4,680万円→4,480万円 3階部分、南東向き住戸!新規リフォーム物件!

【特徴・設備】
■カウンターキッチン
■3口ガスコンロ
■収納豊富
■全室フローリング
■独立洗面台
■室内洗濯置き場

【リフォーム内容】
□システムキッチン新規交換(食洗機・浄水器一体型水栓付)
□ユニットバス新規交換(浴室乾燥機付)
□建具新規交換
□エアコン新規設置(リビング)
□クロス貼り替え
□フローリング貼り替え
□洗面化粧台新規交換
□温水洗浄機能付トイレ新規交換
□ダウンライト新規設置
□玄関廊下大理石貼り
□給湯器新規交換(追い焚き付)
□洗濯パン・水栓新規交換
□ルームクリーニング 等

2冠達成 恵比寿不動産は物件数No.1 中古マンション数No.1

物件概要

物件名 ライオンズシティ西新宿
所在地
交通
問合せ番号 5852-302
物件特徴 -
物件条件 -
価格 *** 管理費 ***円/月
修繕積立金 ***円/月 その他費用 ***
間取り 1DK 方角 南東
専有面積 34.90m2 バルコニー面積 5.6m2
建物構造 SRC 築年月 1999年2月
総戸数 90戸 総階数 地上15階 
駐車場 38,000~40,000円/月 バイク置き場 2,000~5,000円/月
駐輪場 1,200~3,600円/年 土地権利 所有権
用途地域 商業地域  管理形態 日勤管理
管理会社 株式会社大京アステージ 分譲会社 (株)大京、 (株)スルガコーポレーション
施工会社 駿河建設株式会社 設計会社 駿河建設株式会社
取引態様 仲介 小学校学区 柏木小学校
周辺情報 ■スーパー名 まいばすけっと 北新宿税務署通り店(スーパー)まで約2分
■コンビニ名 ファミリーマート 新宿税務署通り店(コンビニ)まで約3分
■スギ薬局 西新宿医大前店(ドラッグストア)まで約4分
現況 成約済 入居/引渡時期 ***
更新日 2023年11月5日

備考

部屋設備

  • バス・トイレ別
  • 独立洗面台
  • 追い焚き
  • 温水洗浄便座
  • 浴室乾燥機
  • システムキッチン
  • カウンターキッチン
  • ガスコンロ
  • エアコン
  • フローリング
  • 南向き
  • リノベーション

建物設備

  • エレベーター
  • オートロック
  • 宅配ボックス
  • TVドアホン
  • 駐車場
  • バイク置き場
  • 駐輪場
  • 24時間ゴミ出し可
  • 防犯カメラ
  • BS
  • CS
  • CATV
  • インターネット

周辺地図

※建物周辺情報はGoogleMapを使用しており、実際とは若干異なる場合がございます。

掲載情報について

  • ※本掲載情報と現況に差異がある場合、現況を優先いたします。
  • ※掲載物件は売却済あるいは売出中止となる場合もあります。
  • ※掲載写真やパース(絵)、または間取図に描かれている家具や車などは、価格に含まれておりません。また、過去に撮影したものをそのまま利用している場合があり、名称・外観・背景等、実際のものとは異なる場合がございます。予めご了承ください。
  • ※仲介物件には所定の仲介手数料(消費税等相当額を含みます)が必要です。
2冠達成 恵比寿不動産は物件数No.1 中古マンション数No.1

部屋一覧

売出し待ちお知らせ希望 未公開情報の確認 お問い合わせ
所在階 間取り 専有面積 価格 お気に入り お問い合わせ 詳細

最近見た物件

ハイツ千駄ヶ谷おすすめ画像

ハイツ千駄ヶ谷 3階

***

  • 東京都渋谷区千駄ヶ谷3-21-10
  • 東京メトロ副都心線「北参道駅」徒歩3分
    JR中央・総武線「千駄ケ谷駅」徒歩6分
  • 1LDK  37.53m2