It's東京フォーサイトスクエア 4階

  • 総合トップ
  • 中古マンション
  • 一戸建て・土地
  • 投資・収益物件
  • 売りたい[売却査定]
  • 貸したい[賃料査定]

It's東京フォーサイトスクエア 4階

価格
14,180
毎月の返済額
(目安)
loansimulationIcon
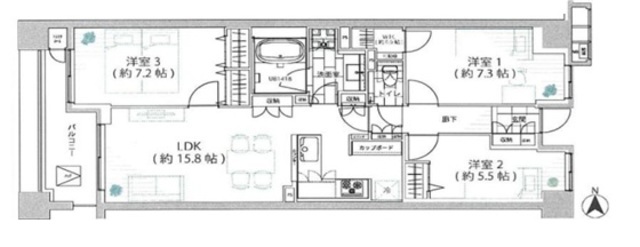
築年月 2001年2月 間取り 3LDK
専有面積 78.42m2 所在階 4階
方角 西
所在地 東京都新宿区北新宿2-6-29
交通 JR中央・総武線「大久保駅」徒歩8分
JR山手線「新大久保駅」徒歩12分

4階部分、西向き住戸!新規フルリノベーション!

【特徴・設備】
■全室窓あり
■家具の配置がしやすい間取り
■L字型カウンターキッチン
■3口ガスコンロ
■収納豊富
■独立洗面台
■室内洗濯置き場あり
■アフターサービス保証付

2冠達成 恵比寿不動産は物件数No.1 中古マンション数No.1

It's東京フォーサイトスクエア 4階の
購入に関するお問い合わせはこちらから

contact us

恵比寿不動産までお気軽にお問い合わせください

お電話でのお問い合わせはこちら:03-6421-0543 10:00 - 19:00 (水曜定休)
恵比寿不動産店舗情報渋谷区東3-25-11 TOKYU REIT恵比寿ビル4階
オフィス内観写真
オフィス外観写真
リフォーム無料お見積りサービス

物件概要

物件名 It's東京フォーサイトスクエア
所在地
交通
問合せ番号 5921-4F
物件特徴 大規模マンション
物件条件 ペット可
価格 14,180 管理費 12,430円/月
修繕積立金 14,600円/月 その他費用 インターネット使用料770円/月
オーナーズクラブ会費500円/月
町内会費100円/月
間取り 3LDK 方角 西
専有面積 78.42m2 バルコニー面積 -
建物構造 SRC 築年月 2001年2月
総戸数 304戸 総階数 地上14階 
駐車場 25,000~27,000円/月 バイク置き場 1,100円/月
駐輪場 100円/月 土地権利 所有権
用途地域 第一種中高層住居専用地域 管理形態 日勤管理
管理会社 株式会社長谷工コミュニティ 分譲会社 日商岩井・日商岩井不動産
施工会社 長谷工コーポレーション・清水建設 設計会社 -
取引態様 仲介 小学校学区 柏木小学校
周辺情報 ■オリンピック北新宿店(スーパー)まで約3分
■ローソン北新宿1丁目店(コンビニ)まで約1分
■スギ薬局北新宿3丁目店(ドラッグストア)まで約4分
現況 空室 入居/引渡時期 即時
更新日 2025年12月2日

備考

部屋設備

  • バス・トイレ別
  • 独立洗面台
  • 追い焚き
  • 温水洗浄便座
  • 浴室乾燥機
  • システムキッチン
  • カウンターキッチン
  • 食器洗浄機
  • 浄水器
  • ガスコンロ
  • エアコン
  • フローリング
  • リノベーション

建物設備

  • エレベーター
  • オートロック
  • 宅配ボックス
  • TVドアホン
  • 駐車場
  • バイク置き場
  • 駐輪場
  • ラウンジ
  • フロントサービス
  • パーティールーム
  • 24時間ゴミ出し可
  • インターネット
  • ペット可

It's東京フォーサイトスクエア 4階のローンシミュレーション

借入金額
14,180
頭金
0万円
毎月の返済額
頭金
  • 支払い額万円※半角数字
金利
  • %※半角数字
返済年数
  • ※元利均等返済方式、最大優遇の場合で計算しています。
  • ※融資には個別審査があり、審査結果により、貸出条件(金利・貸出期間・借入額)が異なる場合がございます。
  • ※不動産のご購入に際しましては物件価格以外にその他諸費用が必要となります。
    諸費用に関する詳細につきましてはお問い合わせ下さいませ。

周辺地図

※建物周辺情報はGoogleMapを使用しており、実際とは若干異なる場合がございます。

掲載情報について

  • ※本掲載情報と現況に差異がある場合、現況を優先いたします。
  • ※掲載物件は売却済あるいは売出中止となる場合もあります。
  • ※掲載写真やパース(絵)、または間取図に描かれている家具や車などは、価格に含まれておりません。また、過去に撮影したものをそのまま利用している場合があり、名称・外観・背景等、実際のものとは異なる場合がございます。予めご了承ください。
  • ※仲介物件には所定の仲介手数料(消費税等相当額を含みます)が必要です。
2冠達成 恵比寿不動産は物件数No.1 中古マンション数No.1

It's東京フォーサイトスクエア 4階の
購入に関するお問い合わせはこちらから

contact us

恵比寿不動産までお気軽にお問い合わせください

お電話でのお問い合わせはこちら:03-6421-0543 10:00 - 19:00 (水曜定休)
恵比寿不動産店舗情報渋谷区東3-25-11 TOKYU REIT恵比寿ビル4階
オフィス内観写真
オフィス外観写真

部屋一覧

売出し待ちお知らせ希望 未公開情報の確認 お問い合わせ
所在階 間取り 専有面積 価格 お気に入り お問い合わせ 詳細
新着
2F
リノベ
3LDK
70.00m2 11,990
お問い合わせ
詳細を見る
4F
リノベ
3LDK
78.42m2 14,180
お問い合わせ
詳細を見る
新着
8F
リノベ
3LDK
78.36m2 13,880
お問い合わせ
詳細を見る

最近見た物件

ガリシア中野弥生町おすすめ画像

ガリシア中野弥生町 3階

3,580

  • 東京都中野区弥生町5-12-11
  • 東京メトロ丸ノ内線「中野富士見町駅」徒歩6分
    東京メトロ丸ノ内線「中野新橋駅」徒歩9分
  • 1K  26.23m2
画像準備中

キャッスル花井 3階

5,880

  • 東京都新宿区荒木町11-46
  • 東京メトロ丸ノ内線「四谷三丁目駅」徒歩5分
    都営新宿線「曙橋駅」徒歩4分
  • 2LDK  54.89m2
エステムプラザ飯田橋タワーレジデンスおすすめ画像

エステムプラザ飯田橋タワーレジデンス 10階

9,280

  • 東京都新宿区新小川町5-29
  • JR中央・総武線「飯田橋駅」徒歩6分
    東京メトロ東西線「飯田橋駅」徒歩6分
  • 1LDK  44.00m2
ザ・レジデンス・オブ・トーキョーJY10おすすめ画像

ザ・レジデンス・オブ・トーキョーJY10 3階

3,330

  • 東京都豊島区駒込1-21-3
  • JR山手線「駒込駅」徒歩6分
    東京メトロ南北線「駒込駅」徒歩6分
  • 1K  25.98m2
タワーテラス目黒青葉台おすすめ画像

タワーテラス目黒青葉台 5階

14,500

  • 東京都目黒区青葉台3-4-1
  • 京王井の頭線「神泉駅」徒歩8分
    東急田園都市線「池尻大橋駅」徒歩10分
  • 2LDK  62.27m2
高輪ザ・レジデンスおすすめ画像

高輪ザ・レジデンス 10階

23,500

  • 東京都港区高輪1丁目27-37
  • 都営浅草線「高輪台駅」徒歩8分
    東京メトロ南北線「白金台駅」徒歩10分
  • 2LDK  78.53m2