勝どきザ・タワー 12階

  • 総合トップ
  • 中古マンション
  • 一戸建て・土地
  • 投資・収益物件
  • 売りたい[売却査定]
  • 貸したい[賃料査定]

勝どきザ・タワー 12階
新着

価格
15,500
毎月の返済額
(目安)
loansimulationIcon
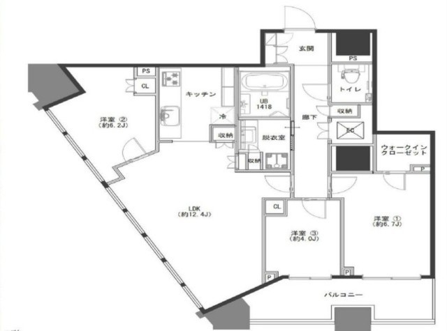
築年月 2016年11月 間取り 3LDK+WIC
専有面積 79.24m2 所在階 12階
方角 南西
所在地 東京都中央区勝どき5-3-1
交通 都営大江戸線「勝どき駅」徒歩6分

12階部分、南向き角部屋!ペット飼育可!

【特徴・設備】
■全室窓あり
■家具の配置がしやすい間取り
■システムキッチン
■WICがあり収納豊富
■独立洗面台
■室内洗濯置き場あり

現在総賃料270,750円で賃貸中。表面利回りは2.09%で稼働中。

2冠達成 恵比寿不動産は物件数No.1 中古マンション数No.1

勝どきザ・タワー 12階の
購入に関するお問い合わせはこちらから

contact us

恵比寿不動産までお気軽にお問い合わせください

お電話でのお問い合わせはこちら:03-6421-0543 10:00 - 19:00 (水曜定休)
恵比寿不動産店舗情報渋谷区東3-25-11 TOKYU REIT恵比寿ビル4階
オフィス内観写真
オフィス外観写真
リフォーム無料お見積りサービス

物件概要

物件名 勝どきザ・タワー
所在地
交通
問合せ番号 6189- 12F
物件特徴 タワーマンション、大規模マンション
物件条件 ペット可
価格 15,500 管理費 18,930円/月
修繕積立金 9,510円/月 その他費用 -
間取り 3LDK 方角 南西
専有面積 79.24m2 バルコニー面積 9.72m2
建物構造 RC 築年月 2016年11月
総戸数 1,420戸 総階数 地上53階 地下2階
駐車場 27,000~50,000円/月 バイク置き場 2,000~3,000円/月
駐輪場 100~300円/月 土地権利 所有権
用途地域 第一種住居地域 管理形態 常駐管理
管理会社 三井不動産レジデンシャルサービス(株) 分譲会社 鹿島建設・三井不動産レジデンシャル
施工会社 鹿島建設 設計会社 -
取引態様 仲介 小学校学区 豊海小学校
周辺情報 ■マルエツ勝どき六丁目店(スーパー)まで約2分
■セブンイレブン勝どき5丁目店(コンビニ)まで約1分
■どらっぐぱぱす勝どき5丁目店(ドラッグストア)まで約1分
現況 賃貸中 入居/引渡時期 相談
更新日 2026年2月22日

備考

部屋設備

  • バス・トイレ別
  • 独立洗面台
  • 追い焚き
  • 温水洗浄便座
  • 浴室乾燥機
  • システムキッチン
  • 食器洗浄機
  • 浄水器
  • ガスコンロ
  • エアコン
  • ウォークインクローゼット
  • フローリング
  • 角部屋
  • 南向き

建物設備

  • エレベーター
  • オートロック
  • 宅配ボックス
  • TVドアホン
  • ペット足洗い場
  • 駐車場
  • バイク置き場
  • 駐輪場
  • ラウンジ
  • キッズルーム
  • フロントサービス
  • フィットネス
  • ゲストルーム
  • パーティールーム
  • ゴルフレンジ
  • 24時間ゴミ出し可
  • オール電化
  • 防犯カメラ
  • インターネット
  • ペット可

勝どきザ・タワー 12階のローンシミュレーション

借入金額
15,500
頭金
0万円
毎月の返済額
頭金
  • 支払い額万円※半角数字
金利
  • %※半角数字
返済年数
  • ※元利均等返済方式、最大優遇の場合で計算しています。
  • ※融資には個別審査があり、審査結果により、貸出条件(金利・貸出期間・借入額)が異なる場合がございます。
  • ※不動産のご購入に際しましては物件価格以外にその他諸費用が必要となります。
    諸費用に関する詳細につきましてはお問い合わせ下さいませ。

周辺地図

※建物周辺情報はGoogleMapを使用しており、実際とは若干異なる場合がございます。

掲載情報について

  • ※本掲載情報と現況に差異がある場合、現況を優先いたします。
  • ※掲載物件は売却済あるいは売出中止となる場合もあります。
  • ※掲載写真やパース(絵)、または間取図に描かれている家具や車などは、価格に含まれておりません。また、過去に撮影したものをそのまま利用している場合があり、名称・外観・背景等、実際のものとは異なる場合がございます。予めご了承ください。
  • ※仲介物件には所定の仲介手数料(消費税等相当額を含みます)が必要です。
2冠達成 恵比寿不動産は物件数No.1 中古マンション数No.1

勝どきザ・タワー 12階の
購入に関するお問い合わせはこちらから

contact us

恵比寿不動産までお気軽にお問い合わせください

お電話でのお問い合わせはこちら:03-6421-0543 10:00 - 19:00 (水曜定休)
恵比寿不動産店舗情報渋谷区東3-25-11 TOKYU REIT恵比寿ビル4階
オフィス内観写真
オフィス外観写真

部屋一覧

売出し待ちお知らせ希望 未公開情報の確認 お問い合わせ
所在階 間取り 専有面積 価格 お気に入り お問い合わせ 詳細
新着
12F
3LDK 79.24m2 15,500
お問い合わせ
詳細を見る
新着
23F
3LDK 73.31m2 17,800
お問い合わせ
詳細を見る
26F
リノベ
3LDK
77.55m2 22,900
お問い合わせ
詳細を見る
29F
リノベ
2LDK
73.32m2 17,600
お問い合わせ
詳細を見る
改定
36F
リノベ
2LDK
58.94m2 18,000
お問い合わせ
詳細を見る
改定
36F
リノベ
2LDK
73.32m2 2500
お問い合わせ
詳細を見る
新着
36F
1K 49.95m2 13,980
お問い合わせ
詳細を見る
36F 1R 49.95m2 13,980
お問い合わせ
詳細を見る
新着
41F
リノベ
2LDK
84.62m2 48,400
お問い合わせ
詳細を見る

最近見た物件

アクシア新宿御苑おすすめ画像

アクシア新宿御苑 2階

6,599

  • 東京都新宿区新宿1-35-3
  • 東京メトロ丸ノ内線「新宿御苑前駅」徒歩5分
    都営新宿線「新宿駅」徒歩13分
  • 1LDK  35.21m2
パルテール目黒青葉台おすすめ画像

パルテール目黒青葉台 6階

16,800

  • 東京都目黒区青葉台4-1-3
  • 京王井の頭線「神泉駅」徒歩4分
    東急田園都市線「池尻大橋駅」徒歩9分
  • 2SLDK  70.76m2
富士見ステータスおすすめ画像

富士見ステータス 3階

4,880

  • 東京都杉並区和田1-32-19
  • 東京メトロ丸ノ内線「中野富士見町駅」徒歩6分
  • 2LDK  53.75m2
ライオンズマンション上池台おすすめ画像

ライオンズマンション上池台 5階

5,250

  • 東京都大田区上池台1-44-1
  • 東急池上線「長原駅」徒歩3分
    東急大井町線「旗の台駅」徒歩6分
  • 2LDK  49.61m2
画像準備中

クレヴィア日本橋 6階

17,800

  • 東京都中央区日本橋蛎殻町1-6-7
  • 東京メトロ半蔵門線「水天宮前駅」徒歩3分
    東京メトロ日比谷線「茅場町駅」徒歩5分
  • 2LDK  54.47m2
ラグジュアリーアパートメント御徒町おすすめ画像

ラグジュアリーアパートメント御徒町 5階

3,820

  • 東京都台東区台東4-4-2
  • 東京メトロ日比谷線「仲御徒町駅」徒歩4分
    都営大江戸線「新御徒町駅」徒歩5分
  • 1R  30.38m2