プラウド新宿御苑エンパイア 13階

  • 総合トップ
  • 中古マンション
  • 一戸建て・土地
  • 投資・収益物件
  • 売りたい[売却査定]
  • 貸したい[賃料査定]

プラウド新宿御苑エンパイア 13階

価格
57,000
毎月の返済額
(目安)
loansimulationIcon
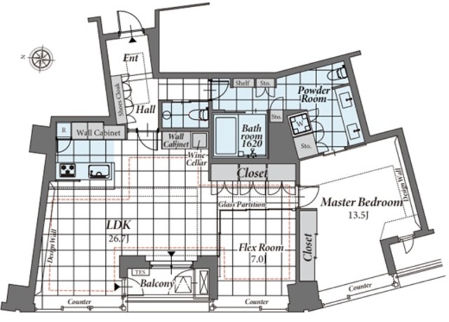
築年月 2010年6月 間取り 2LDK
専有面積 110.19m2 所在階 13階
方角 西
所在地 東京都新宿区大京町28-1
交通 都営大江戸線「国立競技場駅」徒歩5分
JR中央・総武線「千駄ケ谷駅」徒歩6分

新宿副都心の摩天楼 を一望できる最上階住戸 !

【特徴・設備】
■ペット飼育可
■全室窓あり
■家具の配置がしやすい間取り
■カウンターキッチン
■3口ガスコンロ
■収納豊富
■独立洗面台
■室内洗濯置き場あり

2冠達成 恵比寿不動産は物件数No.1 中古マンション数No.1

プラウド新宿御苑エンパイア 13階の
購入に関するお問い合わせはこちらから

contact us

恵比寿不動産までお気軽にお問い合わせください

お電話でのお問い合わせはこちら:03-6421-0543 10:00 - 19:00 (水曜定休)
恵比寿不動産店舗情報渋谷区東3-25-11 TOKYU REIT恵比寿ビル4階
オフィス内観写真
オフィス外観写真
リフォーム無料お見積りサービス

物件概要

物件名 プラウド新宿御苑エンパイア
所在地
交通
問合せ番号 6233-13F
物件特徴 -
物件条件 ペット可
価格 57,000 管理費 42,970円/月
修繕積立金 33,260円/月 その他費用 町会費100円/月
共視聴施設負担金264円/月
トランクルーム使用料500円/月
間取り 2LDK 方角 西
専有面積 110.19m2 バルコニー面積 4.95m2
建物構造 RC 築年月 2010年6月
総戸数 36戸 総階数 地上13階 
駐車場 月額 34,000円~50,000円 バイク置き場 月額 2,000円~3,000円
駐輪場 月額 200円~300円 土地権利 所有権
用途地域 第一種中高層住居専用地域、近隣商業地域 管理形態 日勤管理
管理会社 野村不動産パートナーズ株式会社 分譲会社 野村不動産
施工会社 大成建設 設計会社 -
取引態様 仲介 小学校学区 四谷第六小学校
周辺情報 ■まいばすけっと四谷4丁目(スーパー)まで約7分
■ミニストップ新宿大京町店(コンビニ)まで約3分
■シナノ薬局(ドラッグストア)まで約5分
現況 空室 入居/引渡時期 即時
更新日 2025年11月23日

備考

部屋設備

  • バス・トイレ別
  • 独立洗面台
  • 追い焚き
  • 温水洗浄便座
  • 浴室乾燥機
  • システムキッチン
  • カウンターキッチン
  • 食器洗浄機
  • 浄水器
  • ガスコンロ
  • 主寝室8帖以上
  • エアコン
  • フローリング
  • 最上階
  • リノベーション

建物設備

  • エレベーター
  • オートロック
  • トランクルーム
  • 駐車場
  • バイク置き場
  • 駐輪場
  • フィットネス
  • 各階ゴミ置き場
  • 内廊下
  • ペット可

プラウド新宿御苑エンパイア 13階のローンシミュレーション

借入金額
57,000
頭金
0万円
毎月の返済額
頭金
  • 支払い額万円※半角数字
金利
  • %※半角数字
返済年数
  • ※元利均等返済方式、最大優遇の場合で計算しています。
  • ※融資には個別審査があり、審査結果により、貸出条件(金利・貸出期間・借入額)が異なる場合がございます。
  • ※不動産のご購入に際しましては物件価格以外にその他諸費用が必要となります。
    諸費用に関する詳細につきましてはお問い合わせ下さいませ。

周辺地図

※建物周辺情報はGoogleMapを使用しており、実際とは若干異なる場合がございます。

掲載情報について

  • ※本掲載情報と現況に差異がある場合、現況を優先いたします。
  • ※掲載物件は売却済あるいは売出中止となる場合もあります。
  • ※掲載写真やパース(絵)、または間取図に描かれている家具や車などは、価格に含まれておりません。また、過去に撮影したものをそのまま利用している場合があり、名称・外観・背景等、実際のものとは異なる場合がございます。予めご了承ください。
  • ※仲介物件には所定の仲介手数料(消費税等相当額を含みます)が必要です。
2冠達成 恵比寿不動産は物件数No.1 中古マンション数No.1

プラウド新宿御苑エンパイア 13階の
購入に関するお問い合わせはこちらから

contact us

恵比寿不動産までお気軽にお問い合わせください

お電話でのお問い合わせはこちら:03-6421-0543 10:00 - 19:00 (水曜定休)
恵比寿不動産店舗情報渋谷区東3-25-11 TOKYU REIT恵比寿ビル4階
オフィス内観写真
オフィス外観写真

部屋一覧

売出し待ちお知らせ希望 未公開情報の確認 お問い合わせ
所在階 間取り 専有面積 価格 お気に入り お問い合わせ 詳細
13F
リノベ
2LDK
110.19m2 57,000
お問い合わせ
詳細を見る

最近見た物件

外観

東急ドエルアルス目白台 4階

7,900

  • 東京都文京区目白台2-6-23
  • 東京メトロ有楽町線「護国寺駅」徒歩7分
    東京メトロ副都心線「雑司が谷駅」徒歩13分
  • 2SLDK  66.00m2
外観

パレステュディオ四谷三丁目 5階

3,100

  • 東京都新宿区荒木町19-8
  • 都営新宿線「曙橋駅」徒歩2分
    JR中央・総武線「四ツ谷駅」徒歩13分
  • 1K  21.44m2
プリズムタワーおすすめ画像

プリズムタワー 25階

27,000

  • 東京都目黒区大橋1-10-1
  • 東急田園都市線「池尻大橋駅」徒歩2分
    JR山手線「渋谷駅」徒歩15分
  • 2LDK  86.02m2
両国サンハイツおすすめ画像

両国サンハイツ 4階

3,290

  • 東京都墨田区両国4-38-12
  • 都営大江戸線「両国駅」徒歩2分
    JR中央・総武線「両国駅」徒歩3分
  • 2DK  44.24m2
ニューライフ一番町おすすめ画像

ニューライフ一番町 7階

23,990

  • 東京都千代田区一番町4-5
  • 東京メトロ半蔵門線「半蔵門駅」徒歩3分
    東京メトロ有楽町線「麹町駅」徒歩8分
  • 2LDK  108.90m2
ニックハイム南池袋おすすめ画像

ニックハイム南池袋 2階

4,580

  • 東京都豊島区南池袋3-8-1
  • JR山手線「池袋駅」徒歩6分
    東京メトロ丸ノ内線「池袋駅」徒歩6分
  • 2DK  44.18m2