4階部分、西向き角部屋!新規リノベーション物件!
【特徴・設備】
■ペット飼育可
■全室窓あり
■二面採光
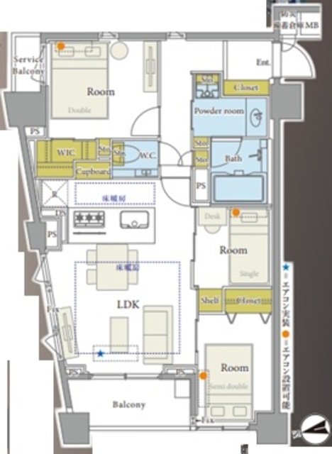
■家具の配置がしやすい間取り
■カウンターキッチン
■3口ガスコンロ
■床暖房完備
■収納豊富
■独立洗面台
■室内洗濯置き場あり
■アフターサービス保証付
| 価格 | 1億5,999万円 |
毎月の返済額 (目安) |
|
|---|---|---|---|
| 築年月 | 2020年7月 | 間取り | 3LDK+WIC |
| 専有面積 | 62.85m2 | 所在階 | 4階 |
| 方角 | 西 | ||
| 所在地 | 東京都中央区湊1-3-4 | ||
| 交通 | JR京葉線「八丁堀駅」徒歩3分 東京メトロ有楽町線「新富町駅」徒歩7分 |
||
【特徴・設備】
■ペット飼育可
■全室窓あり
■二面採光
■家具の配置がしやすい間取り
■カウンターキッチン
■3口ガスコンロ
■床暖房完備
■収納豊富
■独立洗面台
■室内洗濯置き場あり
■アフターサービス保証付

| 物件名 | クレヴィア東京八丁堀 Chuo Minato | ||
|---|---|---|---|
| 所在地 | 東京都中央区湊1-3-4 | ||
| 交通 |
JR京葉線「八丁堀駅」徒歩3分 東京メトロ有楽町線「新富町駅」徒歩7分 東京メトロ日比谷線「築地駅」徒歩10分 |
||
| 問合せ番号 | 6470-401 | ||
| 物件特徴 | - | ||
| 物件条件 | - | ||
| 価格 | 1億5,999万円 | 管理費 | 27,700円/月 |
| 修繕積立金 | 17,600円/月 | その他費用 | 990円/月 |
| 間取り | 3LDK | 方角 | 西 |
| 専有面積 | 62.85m2 | バルコニー面積 | 5.28m2 |
| 建物構造 | RC | 築年月 | 2020年7月 |
| 総戸数 | 33戸 | 総階数 | 地上12階 |
| 駐車場 | - | バイク置き場 | - |
| 駐輪場 | - | 土地権利 | - |
| 用途地域 | - | 管理形態 | 巡回管理 |
| 管理会社 | - | 分譲会社 | - |
| 施工会社 | - | 設計会社 | - |
| 取引態様 | 仲介 | 小学校学区 | 中央小学校 |
| 周辺情報 | ■miniピアゴ入船1丁目店(スーパー)まで約4分 ■ファミリーマート入船1丁目店(コンビニ)まで約2分 ■桜川薬局((ドラッグストア)まで約3分 |
||
| 現況 | 空室 | 入居/引渡時期 | 相談 |
| 更新日 | 2026年4月7日 | ||
| 頭金 |
|
|---|---|
| 金利 |
|
| 返済年数 | 年 |
※建物周辺情報はGoogleMapを使用しており、実際とは若干異なる場合がございます。
掲載情報について

外観 物件画像1