パークタワー勝どきサウス 24階 成約済みの部屋 8258-24F

  • 総合トップ
  • 中古マンション
  • 一戸建て・土地
  • 投資・収益物件
  • 売りたい[売却査定]
  • 貸したい[賃料査定]

パークタワー勝どきサウス 成約済み物件 (8258-24F)

こちらのお部屋は既に成約済みです。

お手数ですが、建物詳細ページより同マンションで売り出し中の別のお部屋をご覧いただくか、
物件検索より最新の物件をお探しください。

価格
***
毎月の返済額
(目安)
loansimulationIcon
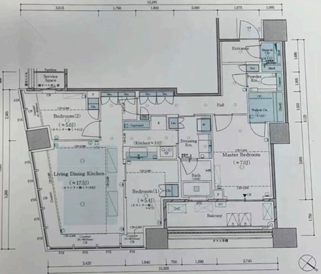
築年月 2023年8月 間取り 3LDK+SIC+WIC
専有面積 83.22m2 所在階 24階
方角 南東
所在地 東京都中央区勝どき4-6-1
交通 都営大江戸線「勝どき駅」徒歩3分
都営大江戸線「月島駅」徒歩13分

新築未入居!南東角部屋!

【特徴・設備】
■全室窓あり
■カウンターキッチン
■WIC・SIC収納豊富
■独立洗面台
■室内洗濯置き場あり
■トランクルームあり

2冠達成 恵比寿不動産は物件数No.1 中古マンション数No.1

物件概要

物件名 パークタワー勝どきサウス
所在地
交通
問合せ番号 8258-24F
物件特徴 タワーマンション、大規模マンション
物件条件 ペット可
価格 *** 管理費 ***円/月
修繕積立金 ***円/月 その他費用 ***
間取り 3LDK 方角 南東
専有面積 83.22m2 バルコニー面積 8.8m2
建物構造 RC 築年月 2023年8月
総戸数 1,665戸 総階数 地上58階 地下3階
駐車場 31,000~40,000円/月 バイク置き場 月額2,000~5,000円
駐輪場 月額200~500円 土地権利 所有権
用途地域 第二種住居地域 管理形態 日勤管理
管理会社 三井不動産レジデンシャルサービス(株) 分譲会社 三井不動産レジデンシャル、鹿島建設
施工会社 鹿島建設 設計会社 -
取引態様 仲介 小学校学区 月島第二小学校
周辺情報 ■東武ストア勝どき店(スーパー)まで約2分
■ローソン勝どき四丁目店(コンビニ)まで約1分
■パンダ薬局勝どき店(ドラッグストア)まで約1分
現況 成約済 入居/引渡時期 ***
更新日 2023年9月23日

備考

部屋設備

  • バス・トイレ別
  • 独立洗面台
  • 追い焚き
  • 温水洗浄便座
  • 浴室乾燥機
  • システムキッチン
  • エアコン
  • フローリング
  • 角部屋
  • 南向き

建物設備

  • エレベーター
  • オートロック
  • 宅配ボックス
  • TVドアホン
  • トランクルーム
  • ペット足洗い場
  • 駐車場
  • バイク置き場
  • 駐輪場
  • ラウンジ
  • フィットネス
  • ゲストルーム
  • ゴルフレンジ
  • 24時間ゴミ出し可
  • 各階ゴミ置き場
  • 防犯カメラ
  • インターネット
  • ペット可

周辺地図

※建物周辺情報はGoogleMapを使用しており、実際とは若干異なる場合がございます。

掲載情報について

  • ※本掲載情報と現況に差異がある場合、現況を優先いたします。
  • ※掲載物件は売却済あるいは売出中止となる場合もあります。
  • ※掲載写真やパース(絵)、または間取図に描かれている家具や車などは、価格に含まれておりません。また、過去に撮影したものをそのまま利用している場合があり、名称・外観・背景等、実際のものとは異なる場合がございます。予めご了承ください。
  • ※仲介物件には所定の仲介手数料(消費税等相当額を含みます)が必要です。
2冠達成 恵比寿不動産は物件数No.1 中古マンション数No.1

部屋一覧

売出し待ちお知らせ希望 未公開情報の確認 お問い合わせ
所在階 間取り 専有面積 価格 お気に入り お問い合わせ 詳細