1階部分、西向き住戸!リノベーション物件!
【特徴・設備】
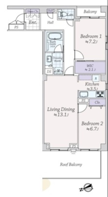
■全室窓あり
■二面採光
■家具の配置がしやすい間取り
■システムキッチン
■3口ガスコンロ
■WICがあり収納豊富
■独立洗面台
■室内洗濯置き場あり
■アフターサービス保証付
【リノベーション内容】
□システムキッチン交換
□ユニットバス交換
□洗面化粧台交換
□トイレ交換
□全クロス張り替え
□全フローリング張り替え 等
| 価格 | 2億7,800万円 |
毎月の返済額 (目安) |
|
|---|---|---|---|
| 築年月 | 1999年3月 | 間取り | 2LDK+WIC |
| 専有面積 | 71.41m2 | 所在階 | 1階 |
| 方角 | 西 | ||
| 所在地 | 東京都港区西麻布3-6-3 | ||
| 交通 | 東京メトロ日比谷線「広尾駅」徒歩9分 東京メトロ日比谷線「六本木駅」徒歩11分 |
||
【特徴・設備】
■全室窓あり
■二面採光
■家具の配置がしやすい間取り
■システムキッチン
■3口ガスコンロ
■WICがあり収納豊富
■独立洗面台
■室内洗濯置き場あり
■アフターサービス保証付
【リノベーション内容】
□システムキッチン交換
□ユニットバス交換
□洗面化粧台交換
□トイレ交換
□全クロス張り替え
□全フローリング張り替え 等

| 物件名 | 西麻布フォレストプラザ | ||
|---|---|---|---|
| 所在地 | 東京都港区西麻布3-6-3 | ||
| 交通 |
東京メトロ日比谷線「広尾駅」徒歩9分 東京メトロ日比谷線「六本木駅」徒歩11分 都営大江戸線「六本木駅」徒歩11分 |
||
| 問合せ番号 | 842-1F | ||
| 物件特徴 | - | ||
| 物件条件 | - | ||
| 価格 | 2億7,800万円 | 管理費 | 24,900円/月 |
| 修繕積立金 | 23,780円/月 | その他費用 | - |
| 間取り | 2LDK | 方角 | 西 |
| 専有面積 | 71.41m2 | バルコニー面積 | 1.94m2 |
| 建物構造 | RC | 築年月 | 1999年3月 |
| 総戸数 | 47戸 | 総階数 | 地上14階 地下1階 |
| 駐車場 | 有 | バイク置き場 | 有 |
| 駐輪場 | 有 | 土地権利 | 所有権 |
| 用途地域 | 第一種住居地域、商業地域 | 管理形態 | 日勤管理 |
| 管理会社 | 三井不動産レジデンシャルサービス(株) | 分譲会社 | 森ビル株式会社 |
| 施工会社 | 株式会社竹中工務店 | 設計会社 | 株式会社竹中工務店 |
| 取引態様 | 仲介 | 小学校学区 | 笄小学校 |
| 周辺情報 | ■まいばすけっと西麻布3丁目店(スーパー)まで約3分 ■サンクス元麻布店(コンビニ)まで約3分 ■マーブル薬局(ドラックストア)まで約4分 |
||
| 現況 | 空室 | 入居/引渡時期 | 即時 |
| 更新日 | 2026年2月27日 | ||
| 頭金 |
|
|---|---|
| 金利 |
|
| 返済年数 | 年 |
※建物周辺情報はGoogleMapを使用しており、実際とは若干異なる場合がございます。
掲載情報について

外観