29階部分・南東向き!東京湾が望めるリバービュー!
【特徴・設備】
■全居室南東向き、陽当たり良好
■室内大変良好
■トリプルセキュリティシステム
■コンシェルジュサービス※一部有償
■24時間ゴミ出し可能※粗大ゴミ除く
■2019年7月築、免震構造採用
■ペット飼育可(細則有)
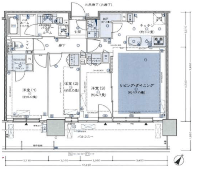
■各居室に収納があり洋室1にはWIC・キッチンに納戸付き
■家族との会話も弾む対面式キッチン
| 価格 | 1億8,500万円 |
毎月の返済額 (目安) |
|
|---|---|---|---|
| 築年月 | 2019年7月 | 間取り | 3LDK+WIC+SIC |
| 専有面積 | 70.35m2 | 所在階 | 29階 |
| 方角 | 南東 | ||
| 所在地 | 東京都江東区有明2-1-2 | ||
| 交通 | ゆりかもめ「有明駅」徒歩4分 りんかい線「国際展示場駅」徒歩6分 |
||
【特徴・設備】
■全居室南東向き、陽当たり良好
■室内大変良好
■トリプルセキュリティシステム
■コンシェルジュサービス※一部有償
■24時間ゴミ出し可能※粗大ゴミ除く
■2019年7月築、免震構造採用
■ペット飼育可(細則有)
■各居室に収納があり洋室1にはWIC・キッチンに納戸付き
■家族との会話も弾む対面式キッチン

| 物件名 | シティタワーズ東京ベイ セントラルタワー | ||
|---|---|---|---|
| 所在地 | 東京都江東区有明2-1-2 | ||
| 交通 |
ゆりかもめ「有明駅」徒歩4分 りんかい線「国際展示場駅」徒歩6分 |
||
| 問合せ番号 | 8472-29F | ||
| 物件特徴 | タワーマンション、大規模マンション | ||
| 物件条件 | ペット可 | ||
| 価格 | 1億8,500万円 | 管理費 | 26,340円/月 |
| 修繕積立金 | 19,200円/月 | その他費用 | - |
| 間取り | 3LDK | 方角 | 南東 |
| 専有面積 | 70.35m2 | バルコニー面積 | 18.92m2 |
| 建物構造 | RC | 築年月 | 2019年7月 |
| 総戸数 | 1,539戸 | 総階数 | 地上33階 |
| 駐車場 | 月額29800円~41800円 | バイク置き場 | 月額5000円~9000円 |
| 駐輪場 | 月額100円~500円 | 土地権利 | 所有権 |
| 用途地域 | 第一種住居地域 | 管理形態 | 日勤管理 |
| 管理会社 | 住友不動産建物サービス | 分譲会社 | 住友不動産 |
| 施工会社 | 前田建設工業 | 設計会社 | - |
| 取引態様 | 仲介 | 小学校学区 | - |
| 周辺情報 | ■有明ガーデン…約70m(1分) ■ローソン有明コロシアム前店…約430m(6分) ■セブンイレブンDR東京有明ダイフロイネットホテル店…約440m(6分) ■有明テニスの森公園…約380m(S分) ■防災公園BBQ広場…約450m(6分) ■有明小学校…約520m(6分) ■有明中学校…約420m(6分) ■ガーデン内クリニックモール…約70m(1分) |
||
| 現況 | 居住中 | 入居/引渡時期 | 相談 |
| 更新日 | 2025年12月4日 | ||
| 頭金 |
|
|---|---|
| 金利 |
|
| 返済年数 | 年 |
※建物周辺情報はGoogleMapを使用しており、実際とは若干異なる場合がございます。
掲載情報について

室内写真 物件画像1