アトラス南麻布 8階 成約済みの部屋 866-801

  • 総合トップ
  • 中古マンション
  • 一戸建て・土地
  • 投資・収益物件
  • 売りたい[売却査定]
  • 貸したい[賃料査定]

アトラス南麻布 成約済み物件 (866-801)

こちらのお部屋は既に成約済みです。

お手数ですが、建物詳細ページより同マンションで売り出し中の別のお部屋をご覧いただくか、
物件検索より最新の物件をお探しください。

価格
***
毎月の返済額
(目安)
loansimulationIcon
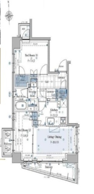
築年月 2016年6月 間取り 2LDK+WIC
専有面積 60.43m2 所在階 8階
方角
所在地 東京都港区南麻布5-2-4
交通 東京メトロ日比谷線「広尾駅」徒歩5分
東京メトロ日比谷線「六本木駅」徒歩11分

8階部分、南向き角部屋!

【特徴・設備】
■全室窓あり
■二面採光
■家具の配置がしやすい間取り
■カウンターキッチン
■3口ガスコンロ
■WICがあり収納豊富
■独立洗面台
■室内洗濯置き場あり

2冠達成 恵比寿不動産は物件数No.1 中古マンション数No.1

物件概要

物件名 アトラス南麻布
所在地
交通
問合せ番号 866-801
物件特徴 -
物件条件 ペット可、楽器可
価格 *** 管理費 ***円/月
修繕積立金 ***円/月 その他費用 ***
間取り 2LDK 方角
専有面積 60.43m2 バルコニー面積 9.29m2
建物構造 RC 築年月 2016年6月
総戸数 24戸 総階数 地上9階 地下1階
駐車場 - バイク置き場 -
駐輪場 - 土地権利 所有権
用途地域 第一種中高層住居専用地域、第一種住居地域 管理形態 日勤管理
管理会社 旭化成不動産コミュニティ株式会社 分譲会社 旭化成不動産レジデンス株式会社
施工会社 株式会社紅梅組 設計会社 株式会社NEXT ARCHITECT&ASSOCIATES
取引態様 仲介 小学校学区 笄小学校
周辺情報 ■ナショナル麻布 広尾ガーデンヒルズ(スーパー)まで約4分
■ファミリーマート南麻布5丁目店(コンビニ)まで約1分
■クオール薬局広尾店(ドラックストア)まで約2分
現況 成約済 入居/引渡時期 ***
更新日 2025年9月5日

備考

部屋設備

  • バス・トイレ別
  • 独立洗面台
  • 追い焚き
  • 温水洗浄便座
  • 浴室乾燥機
  • システムキッチン
  • カウンターキッチン
  • 浄水器
  • ガスコンロ
  • エアコン
  • ウォークインクローゼット
  • フローリング
  • 角部屋
  • 南向き

建物設備

  • エレベーター
  • オートロック
  • 宅配ボックス
  • TVドアホン
  • 駐車場
  • 駐輪場
  • 24時間ゴミ出し可
  • 内廊下
  • 防犯カメラ
  • BS
  • CS
  • CATV
  • インターネット
  • 閑静な住宅街
  • 免震・制震
  • ペット可
  • 楽器可

周辺地図

※建物周辺情報はGoogleMapを使用しており、実際とは若干異なる場合がございます。

掲載情報について

  • ※本掲載情報と現況に差異がある場合、現況を優先いたします。
  • ※掲載物件は売却済あるいは売出中止となる場合もあります。
  • ※掲載写真やパース(絵)、または間取図に描かれている家具や車などは、価格に含まれておりません。また、過去に撮影したものをそのまま利用している場合があり、名称・外観・背景等、実際のものとは異なる場合がございます。予めご了承ください。
  • ※仲介物件には所定の仲介手数料(消費税等相当額を含みます)が必要です。
2冠達成 恵比寿不動産は物件数No.1 中古マンション数No.1

部屋一覧

売出し待ちお知らせ希望 未公開情報の確認 お問い合わせ
所在階 間取り 専有面積 価格 お気に入り お問い合わせ 詳細

最近見た物件

ザ・クレストタワーおすすめ画像

ザ・クレストタワー 29階

***

  • 東京都中央区佃2-11-6
  • 都営大江戸線「月島駅」徒歩4分
    JR京葉線「越中島駅」徒歩8分
  • 1LDK  55.64m2
ザ・パークハウス三田タワーおすすめ画像

ザ・パークハウス三田タワー 11階

***

  • 東京都港区三田2-8-20
  • 都営大江戸線「赤羽橋駅」徒歩7分
    都営三田線「三田駅」徒歩9分
  • 2SLDK  80.20m2
マートルコート中目黒第2おすすめ画像

マートルコート中目黒第2 5階

***

  • 東京都目黒区中目黒1-4-17
  • 東急東横線「中目黒駅」徒歩3分
    東京メトロ日比谷線「中目黒駅」徒歩3分
  • 1LDK  40.30m2
アール・ケープラザ横濱6おすすめ画像

アール・ケープラザ横濱6 4階

8,398

  • 神奈川県横浜市中区花咲町2-66-3
  • JR京浜東北線「桜木町駅」徒歩3分
    京急本線「日ノ出町駅」徒歩9分
  • 2LDK  64.64m2
マイキャッスル用賀ヒルズおすすめ画像

マイキャッスル用賀ヒルズ 4階

***

  • 東京都世田谷区用賀3-17-17
  • 東急田園都市線「用賀駅」徒歩7分
    東急田園都市線「桜新町駅」徒歩12分
  • 2LDK  62.74m2
ザ・パークハウスグラン南青山高樹町おすすめ画像

ザ・パークハウスグラン南青山高樹町 2階

34,000

  • 東京都港区南青山7-12-16
  • 東京メトロ日比谷線「広尾駅」徒歩11分
    東京メトロ千代田線「表参道駅」徒歩14分
  • 3LDK  90.60m2