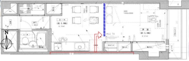
3階部分、東向き住戸!新規内装リノベーション物件!
【特徴・設備】
■洋室は窓あり
■家具の配置がしやすい間取り
■システムキッチン
■収納あり
■独立洗面台
■室内洗濯置き場あり
■アフターサービス保証付
| 価格 | 3,698万円 |
毎月の返済額 (目安) |
|
|---|---|---|---|
| 築年月 | 1982年12月 | 間取り | 1DK |
| 専有面積 | 31.14m2 | 所在階 | 3階 |
| 方角 | 東 | ||
| 所在地 | 東京都文京区小石川2-6-19 | ||
| 交通 | 東京メトロ丸ノ内線「後楽園駅」徒歩6分 | ||
【特徴・設備】
■洋室は窓あり
■家具の配置がしやすい間取り
■システムキッチン
■収納あり
■独立洗面台
■室内洗濯置き場あり
■アフターサービス保証付

| 物件名 | 中銀第二小石川マンシオン | ||
|---|---|---|---|
| 所在地 | 東京都文京区小石川2-6-19 | ||
| 交通 |
東京メトロ丸ノ内線「後楽園駅」徒歩6分 |
||
| 問合せ番号 | 8699-307 | ||
| 物件特徴 | - | ||
| 物件条件 | - | ||
| 価格 | 3,698万円 | 管理費 | 9,200円/月 |
| 修繕積立金 | 16,040円/月 | その他費用 | - |
| 間取り | 1DK | 方角 | 東 |
| 専有面積 | 31.14m2 | バルコニー面積 | 2.7m2 |
| 建物構造 | RC | 築年月 | 1982年12月 |
| 総戸数 | 41戸 | 総階数 | 地上6階 |
| 駐車場 | 月額30000円 | バイク置き場 | - |
| 駐輪場 | 無料(自転車シールを実費負担) | 土地権利 | 所有権 |
| 用途地域 | 第一種中高層住居専用地域 | 管理形態 | 常駐管理 |
| 管理会社 | (株)東京建物アメニティサポート | 分譲会社 | 中銀マンシオン |
| 施工会社 | 清水建設 | 設計会社 | 建築総合計画研究所 |
| 取引態様 | 仲介 | 小学校学区 | - |
| 周辺情報 | ■マルエツ春日駅前店(スーパー)まで約4分 ■ファミリーマート文京小石川二丁目店(コンビニ)まで約2分 ■スギ薬局小石川店(ドラッグストア)まで約2分 |
||
| 現況 | 空室 | 入居/引渡時期 | 相談 |
| 更新日 | 2026年3月6日 | ||
| 頭金 |
|
|---|---|
| 金利 |
|
| 返済年数 | 年 |
※建物周辺情報はGoogleMapを使用しており、実際とは若干異なる場合がございます。
掲載情報について

画像準備中