ライオンズマンション西荻第2 5階

  • 総合トップ
  • 中古マンション
  • 一戸建て・土地
  • 投資・収益物件
  • 売りたい[売却査定]
  • 貸したい[賃料査定]

ライオンズマンション西荻第2 5階
新着

価格
3,980
毎月の返済額
(目安)
loansimulationIcon
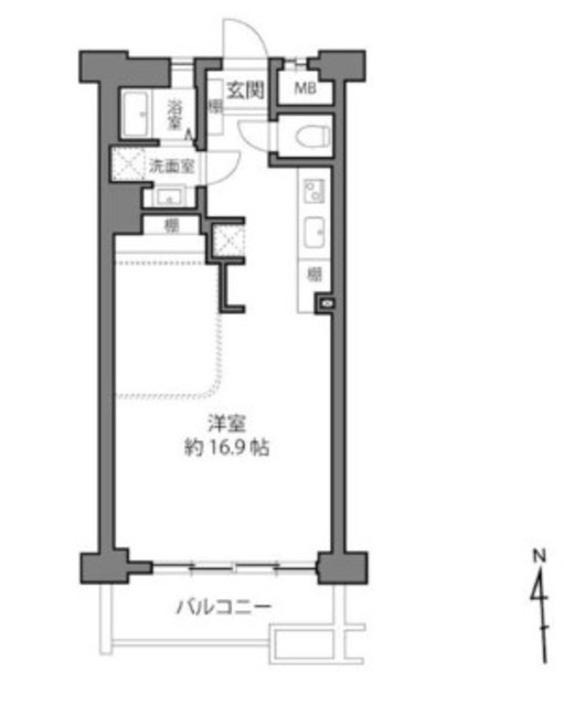
築年月 1970年7月 間取り 1R
専有面積 41.14m2 所在階 5階
方角
所在地 東京都杉並区西荻北2-27-8
交通 JR中央・総武線「西荻窪駅」徒歩5分

5階部分、南向き住戸!リノベーション物件!

【特徴・設備】
■洋室は窓あり
■家具の配置がしやすい間取り
■システムキッチン
■2口ガスコンロ
■収納あり
■独立洗面台
■室内洗濯置き場あり

2冠達成 恵比寿不動産は物件数No.1 中古マンション数No.1

ライオンズマンション西荻第2 5階の
購入に関するお問い合わせはこちらから

contact us

恵比寿不動産までお気軽にお問い合わせください

お電話でのお問い合わせはこちら:03-6421-0543 10:00 - 19:00 (水曜定休)
恵比寿不動産店舗情報渋谷区東3-25-11 TOKYU REIT恵比寿ビル4階
オフィス内観写真
オフィス外観写真
リフォーム無料お見積りサービス

物件概要

物件名 ライオンズマンション西荻第2
所在地
交通
問合せ番号 8773-5F
物件特徴 ヴィンテージ
物件条件 -
価格 3,980 管理費 14,810円/月
修繕積立金 13,820円/月 その他費用 -
間取り 1R 方角
専有面積 41.14m2 バルコニー面積 6.6m2
建物構造 SRC 築年月 1970年7月
総戸数 82戸 総階数 地上12階 
駐車場 月額19000円~23000円 バイク置き場 年額5000円
駐輪場 年額2000円 土地権利 所有権
用途地域 第一種低層住居専用地域、近隣商業地域 管理形態 日勤管理
管理会社 株式会社大京アステージ 分譲会社 大京観光
施工会社 大末建設 設計会社 -
取引態様 仲介 小学校学区 -
周辺情報 ■ライフ西荻窪店(スーパー)まで約2分
■ローソンストア100LS西荻北店(コンビニ)まで約1分
■クスリショップウィング(ドラッグストア)まで約1分
現況 居住中 入居/引渡時期 相談
更新日 2025年12月7日

備考

部屋設備

  • バス・トイレ別
  • 独立洗面台
  • 追い焚き
  • 温水洗浄便座
  • 浴室乾燥機
  • システムキッチン
  • 浄水器
  • ガスコンロ
  • 主寝室8帖以上
  • エアコン
  • フローリング
  • 南向き

建物設備

  • エレベーター
  • TVドアホン
  • 駐車場
  • バイク置き場
  • 駐輪場
  • 24時間ゴミ出し可

ライオンズマンション西荻第2 5階のローンシミュレーション

借入金額
3,980
頭金
0万円
毎月の返済額
頭金
  • 支払い額万円※半角数字
金利
  • %※半角数字
返済年数
  • ※元利均等返済方式、最大優遇の場合で計算しています。
  • ※融資には個別審査があり、審査結果により、貸出条件(金利・貸出期間・借入額)が異なる場合がございます。
  • ※不動産のご購入に際しましては物件価格以外にその他諸費用が必要となります。
    諸費用に関する詳細につきましてはお問い合わせ下さいませ。

周辺地図

※建物周辺情報はGoogleMapを使用しており、実際とは若干異なる場合がございます。

掲載情報について

  • ※本掲載情報と現況に差異がある場合、現況を優先いたします。
  • ※掲載物件は売却済あるいは売出中止となる場合もあります。
  • ※掲載写真やパース(絵)、または間取図に描かれている家具や車などは、価格に含まれておりません。また、過去に撮影したものをそのまま利用している場合があり、名称・外観・背景等、実際のものとは異なる場合がございます。予めご了承ください。
  • ※仲介物件には所定の仲介手数料(消費税等相当額を含みます)が必要です。
2冠達成 恵比寿不動産は物件数No.1 中古マンション数No.1

ライオンズマンション西荻第2 5階の
購入に関するお問い合わせはこちらから

contact us

恵比寿不動産までお気軽にお問い合わせください

お電話でのお問い合わせはこちら:03-6421-0543 10:00 - 19:00 (水曜定休)
恵比寿不動産店舗情報渋谷区東3-25-11 TOKYU REIT恵比寿ビル4階
オフィス内観写真
オフィス外観写真

部屋一覧

売出し待ちお知らせ希望 未公開情報の確認 お問い合わせ
所在階 間取り 専有面積 価格 お気に入り お問い合わせ 詳細
新着
5F
1R 41.14m2 3,980
お問い合わせ
詳細を見る

最近見た物件

ラ・スペース東雪谷おすすめ画像

ラ・スペース東雪谷 2階

4,998

  • 東京都大田区東雪谷5-35-5
  • 東急池上線「石川台駅」徒歩15分
    東急池上線「御嶽山駅」徒歩15分
  • 3LDK  64.26m2
新大橋永谷マンションおすすめ画像

新大橋永谷マンション 8階

4,180

  • 東京都江東区新大橋1-5-4
  • 都営新宿線「森下駅」徒歩5分
    都営大江戸線「森下駅」徒歩5分
  • 1LDK  42.66m2
大森パークハイツおすすめ画像

大森パークハイツ 9階

4,999

  • 東京都品川区南大井2-12-1
  • 京急本線「大森海岸駅」徒歩2分
    JR京浜東北線「大森駅」徒歩10分
  • 2LDK  57.12m2
プラーティノ多摩川鵜の木弐番館おすすめ画像

プラーティノ多摩川鵜の木弐番館 3階

6,680

  • 東京都大田区鵜の木2-15-15
  • 東急多摩川線「鵜の木駅」徒歩2分
    東急多摩川線「下丸子駅」徒歩10分
  • 2LDK  55.16m2