ミサワホームズ三ノ輪 8階

  • 総合トップ
  • 中古マンション
  • 一戸建て・土地
  • 投資・収益物件
  • 売りたい[売却査定]
  • 貸したい[賃料査定]

ミサワホームズ三ノ輪 8階

価格
7,999
毎月の返済額
(目安)
loansimulationIcon
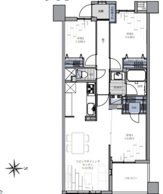
築年月 1997年9月 間取り 3LDK+WIC
専有面積 64.37m2 所在階 8階
方角
所在地 東京都台東区竜泉2-20-2
交通 東京メトロ日比谷線「三ノ輪駅」徒歩2分

8階部分、東向き住戸!リフォーム物件!

【特徴・設備】
■全室窓あり
■家具の配置がしやすい間取り
■カウンターキッチン
■3口ガスコンロ
■WICがあり収納豊富
■独立洗面台
■室内洗濯置き場あり
■アフターサービス保証付

【リフォーム内容】※2026年2月末完了予定
□フローリング新規貼替
□ユニットバス新規交換
□洗面化粧台新規交換
□トイレ新規交換
□建具・玄関収納新規交換
□壁・天井クロス新規交換
□システムキッチン新規交換
□洗濯水栓・防水パン新規交換
□給湯器新規交換 等

2冠達成 恵比寿不動産は物件数No.1 中古マンション数No.1

ミサワホームズ三ノ輪 8階の
購入に関するお問い合わせはこちらから

contact us

恵比寿不動産までお気軽にお問い合わせください

お電話でのお問い合わせはこちら:03-6421-0543 10:00 - 19:00 (水曜定休)
恵比寿不動産店舗情報渋谷区東3-25-11 TOKYU REIT恵比寿ビル4階
オフィス内観写真
オフィス外観写真
リフォーム無料お見積りサービス

物件概要

物件名 ミサワホームズ三ノ輪
所在地
交通
問合せ番号 8893-808
物件特徴 大規模マンション
物件条件 -
価格 7,999 管理費 14,000円/月
修繕積立金 8,300円/月 その他費用 -
間取り 3LDK 方角
専有面積 64.37m2 バルコニー面積 5.02m2
建物構造 SRC 築年月 1997年9月
総戸数 109戸 総階数 地上14階 
駐車場 - バイク置き場 -
駐輪場 - 土地権利 所有権
用途地域 商業地域  管理形態 日勤管理
管理会社 大和ライフネクスト 分譲会社 ミサワバン
施工会社 長谷工コーポレーション 設計会社 -
取引態様 仲介 小学校学区 -
周辺情報 ■ワイズマート三ノ輪店(スーパー)まで約1分
■セブンイレブン台東三ノ輪1丁目店(コンビニ)まで約1分
■アイセイ薬局三ノ輪店(ドラッグストア)まで約1分
現況 空室 入居/引渡時期 相談
更新日 2026年1月9日

備考

部屋設備

  • バス・トイレ別
  • 独立洗面台
  • 追い焚き
  • 温水洗浄便座
  • 浴室乾燥機
  • システムキッチン
  • カウンターキッチン
  • 食器洗浄機
  • 浄水器
  • ガスコンロ
  • エアコン
  • ウォークインクローゼット
  • フローリング
  • リノベーション

建物設備

  • エレベーター
  • オートロック
  • 宅配ボックス
  • TVドアホン
  • 24時間ゴミ出し可
  • インターネット

ミサワホームズ三ノ輪 8階のローンシミュレーション

借入金額
7,999
頭金
0万円
毎月の返済額
頭金
  • 支払い額万円※半角数字
金利
  • %※半角数字
返済年数
  • ※元利均等返済方式、最大優遇の場合で計算しています。
  • ※融資には個別審査があり、審査結果により、貸出条件(金利・貸出期間・借入額)が異なる場合がございます。
  • ※不動産のご購入に際しましては物件価格以外にその他諸費用が必要となります。
    諸費用に関する詳細につきましてはお問い合わせ下さいませ。

周辺地図

※建物周辺情報はGoogleMapを使用しており、実際とは若干異なる場合がございます。

掲載情報について

  • ※本掲載情報と現況に差異がある場合、現況を優先いたします。
  • ※掲載物件は売却済あるいは売出中止となる場合もあります。
  • ※掲載写真やパース(絵)、または間取図に描かれている家具や車などは、価格に含まれておりません。また、過去に撮影したものをそのまま利用している場合があり、名称・外観・背景等、実際のものとは異なる場合がございます。予めご了承ください。
  • ※仲介物件には所定の仲介手数料(消費税等相当額を含みます)が必要です。
2冠達成 恵比寿不動産は物件数No.1 中古マンション数No.1

ミサワホームズ三ノ輪 8階の
購入に関するお問い合わせはこちらから

contact us

恵比寿不動産までお気軽にお問い合わせください

お電話でのお問い合わせはこちら:03-6421-0543 10:00 - 19:00 (水曜定休)
恵比寿不動産店舗情報渋谷区東3-25-11 TOKYU REIT恵比寿ビル4階
オフィス内観写真
オフィス外観写真

部屋一覧

売出し待ちお知らせ希望 未公開情報の確認 お問い合わせ
所在階 間取り 専有面積 価格 お気に入り お問い合わせ 詳細
4F
リノベ
3LDK
82.24m2 1780
お問い合わせ
詳細を見る
8F
リノベ
3LDK
64.37m2 7,999
お問い合わせ
詳細を見る

最近見た物件

外観

プラウド二子玉川 7階

***

  • 東京都世田谷区玉川1-9-5
  • 東急田園都市線「二子玉川駅」徒歩2分
    東急田園都市線「二子新地駅」徒歩10分
  • 2LDK  63.48m2
画像準備中

アインサムゼハス 1階

***

  • 東京都世田谷区上祖師谷1-40-12
  • 京王線「千歳烏山駅」徒歩5分
  • 3LDK  145.87m2
画像準備中

クレッセント東京リプライム 3階

***

  • 東京都大田区羽田1-13-1
  • 京急空港線「大鳥居駅」徒歩3分
    京急空港線「穴守稲荷駅」徒歩8分
  • 4LDK  88.05m2
日生住宅目黒マンションおすすめ画像

日生住宅目黒マンション 6階

***

  • 東京都目黒区目黒3-1-7
  • JR山手線「目黒駅」徒歩14分
    東急東横線「中目黒駅」徒歩15分
  • 1LDK  44.10m2
エンゼルハイム武蔵新田第二おすすめ画像

エンゼルハイム武蔵新田第二 3階

***

  • 東京都大田区矢口2-1-7
  • 東急多摩川線「矢口渡駅」徒歩6分
    東急多摩川線「武蔵新田駅」徒歩7分
  • 3LDK  61.60m2
キャッスルマンション麻布おすすめ画像

キャッスルマンション麻布 4階

***

  • 東京都港区麻布十番3-6-10
  • 都営大江戸線「麻布十番駅」徒歩4分
    東京メトロ日比谷線「六本木駅」徒歩10分
  • 1LDK  45.18m2