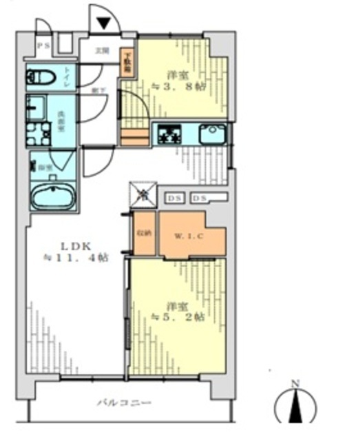
5階部分、南向き住戸!新規リノベーション物件!
【特徴・設備】
■全室窓あり
■家具の配置がしやすい間取り
■システムキッチン
■3口ガスコンロ
■WICがあり収納豊富
■独立洗面台
■室内洗濯置き場あり
■アフターサービス保証付
【新規リノベーション内容】※令和4年11月上旬完了
□フローリング新規貼替
□トイレ新規交換(ウォシュレット取付)
□システムキッチン新規取付
□壁・天井クロス新規貼替
□照明器具新規取付
□各室建具新規取付
□給水・給湯管新規交換(専有部分)
□給湯器新規取付(追焚付)
□ユニットバス新規取付(1216サイズ)
□浴室換気乾燥機新規取付
□防水パン新規取付
□洗面化粧台新規取付
□ハウスクリーニング 等





