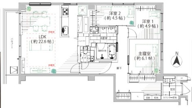
3階部分、西向き角部屋!新規リノベーション物件!
【特徴・設備】
■ペット飼育可
■全室窓あり
■二面採光
■家具の配置がしやすい間取り
■カウンターキッチン
■3口ガスコンロ
■収納豊富
■独立洗面台
■室内洗濯置き場あり
■アフターサービス保証付
【リノベーション内容】
□新規フローリング張り
□建具・洋室収納・玄関収納新規交換
□壁・天井クロス貼
□水廻り・玄関床新規タイル貼
□洗濯機パン・洗濯水栓新規交換
□照明器具新規交換
□エアコン全室新規取付
□トイレ新規交換
□システムキッチン新規交換
□ユニットバス新規好意感
□LED照明付洗面化粧台新規交換
□ハウスクリーニング 等





