CROSS 1階 成約済みの部屋 9071-1F

  • 総合トップ
  • 中古マンション
  • 一戸建て・土地
  • 投資・収益物件
  • 売りたい[売却査定]
  • 貸したい[賃料査定]

CROSS 成約済み物件 (9071-1F)

こちらのお部屋は既に成約済みです。

お手数ですが、建物詳細ページより同マンションで売り出し中の別のお部屋をご覧いただくか、
物件検索より最新の物件をお探しください。

価格
***
毎月の返済額
(目安)
loansimulationIcon
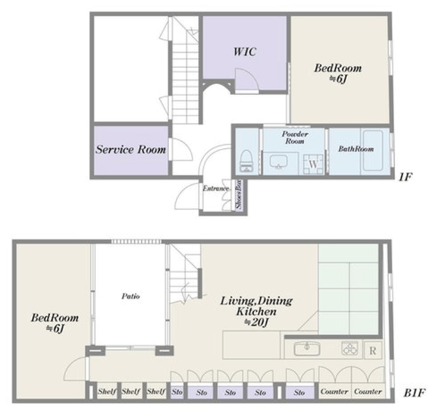
築年月 2011年6月 間取り 2SLDK+WIC
専有面積 100.94m2 所在階 1階
方角 -
所在地 東京都豊島区駒込4-15--8
交通 JR山手線「巣鴨駅」徒歩7分
JR山手線「駒込駅」徒歩9分

2011年6月新築/コーポラティブハウス

【特徴・設備】
■豊島区駒込4丁目、染井エリアの閑静な住宅地内の総戸数12戸のコーポラティブハウス
■設計:株式会社タオアーキテクツ他 施工:内野建設株式会社
■戸建て感覚のメゾネットタイプ(1階・地下1階)
■専有面積100㎡超えのゆとりある空間
■駐車場専用使用権付き(駐車場管理費:月額4141円)
■ペット飼育可(飼育細則あり)
■室内設備保証付き(詳細お問合せください)
■豊島区立行幸小学校まで約170m
■豊島区立駒込小学校まで約430m

2冠達成 恵比寿不動産は物件数No.1 中古マンション数No.1

物件概要

物件名 CROSS
所在地
交通
問合せ番号 9071-1F
物件特徴 低層マンション
物件条件 ペット可
価格 *** 管理費 ***円/月
修繕積立金 ***円/月 その他費用 ***
間取り 2SLDK 方角 -
専有面積 100.94m2 バルコニー面積 -
建物構造 RC 築年月 2011年6月
総戸数 12戸 総階数 地上3階 地下1階
駐車場 あり バイク置き場 -
駐輪場 あり 土地権利 所有権
用途地域 第一種中高層住居専用地域 管理形態 日勤管理
管理会社 三基冨士 分譲会社 -
施工会社 - 設計会社 -
取引態様 仲介 小学校学区 -
周辺情報 ■西友巣鴨店(スーパー)まで約5分
■ファミリーマート巣鴨スポーツセンター前店(コンビニ)まで約4分
■スギ薬局巣鴨駅前店(ドラッグストア)まで約5分
■豊島区立行幸小学校まで約3分
■豊島区立駒込小学校まで約6分
現況 成約済 入居/引渡時期 ***
更新日 2025年11月24日

備考

部屋設備

  • バス・トイレ別
  • 独立洗面台
  • システムキッチン
  • ガスコンロ
  • ウォークインクローゼット
  • メゾネット
  • 角部屋

建物設備

  • 駐車場
  • 駐輪場
  • 閑静な住宅街
  • ペット可

周辺地図

※建物周辺情報はGoogleMapを使用しており、実際とは若干異なる場合がございます。

掲載情報について

  • ※本掲載情報と現況に差異がある場合、現況を優先いたします。
  • ※掲載物件は売却済あるいは売出中止となる場合もあります。
  • ※掲載写真やパース(絵)、または間取図に描かれている家具や車などは、価格に含まれておりません。また、過去に撮影したものをそのまま利用している場合があり、名称・外観・背景等、実際のものとは異なる場合がございます。予めご了承ください。
  • ※仲介物件には所定の仲介手数料(消費税等相当額を含みます)が必要です。
2冠達成 恵比寿不動産は物件数No.1 中古マンション数No.1

部屋一覧

売出し待ちお知らせ希望 未公開情報の確認 お問い合わせ
所在階 間取り 専有面積 価格 お気に入り お問い合わせ 詳細

最近見た物件

高田馬場デュープレックス2おすすめ画像

高田馬場デュープレックス2 7階

11,480

  • 東京都新宿区下落合2-5-4
  • JR山手線「高田馬場駅」徒歩7分
    西武新宿線「高田馬場駅」徒歩7分
  • 2LDK  66.48m2
パークホームズ月島二丁目おすすめ画像

パークホームズ月島二丁目 5階

***

  • 東京都中央区月島2-17-10
  • 東京メトロ有楽町線「月島駅」徒歩3分
    都営大江戸線「月島駅」徒歩3分
  • 2LDK  55.74m2
セーナ大森山王おすすめ画像

セーナ大森山王 6階

***

  • 東京都大田区山王4-17-7
  • JR京浜東北線「大森駅」徒歩13分
    都営浅草線「西馬込駅」徒歩19分
  • 3LDK  62.49m2
コンシェリア西新宿タワーズウエストおすすめ画像

コンシェリア西新宿タワーズウエスト 34階

***

  • 東京都新宿区西新宿6-20-7
  • 都営大江戸線「西新宿五丁目駅」徒歩5分
    都営大江戸線「都庁前駅」徒歩7分
  • 2LDK  77.51m2
デュオ・スカーラ亀戸おすすめ画像

デュオ・スカーラ亀戸 9階

***

  • 東京都江東区亀戸3-61-22
  • JR中央・総武線「亀戸駅」徒歩7分
  • 1LDK  37.87m2
外観

セイザ新宿 10階

***

  • 東京都新宿区百人町1-12-2
  • JR中央線(快速)「新宿駅」徒歩9分
    JR中央・総武線「大久保駅」徒歩4分
  • 2DK  43.19m2