6階部分、北東向き住戸!新規内装リノベーション物件!
【特徴・設備】
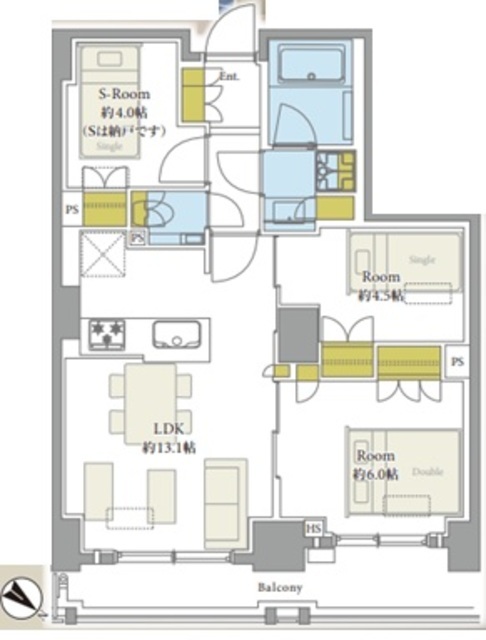
■LDK・洋室1は窓あり
■家具の配置がしやすい間取り
■カウンターキッチン
■3口ガスコンロ
■収納豊富
■独立洗面台
■室内洗濯置き場あり
■アフターサービス保証付
| 価格 | 1億5,499万円 |
毎月の返済額 (目安) |
|
|---|---|---|---|
| 築年月 | 2021年4月 | 間取り | 2SLDK |
| 専有面積 | 60.04m2 | 所在階 | 6階 |
| 方角 | 北東 | ||
| 所在地 | 東京都文京区小石川4-21-7 | ||
| 交通 | 東京メトロ丸ノ内線「茗荷谷駅」徒歩6分 | ||
【特徴・設備】
■LDK・洋室1は窓あり
■家具の配置がしやすい間取り
■カウンターキッチン
■3口ガスコンロ
■収納豊富
■独立洗面台
■室内洗濯置き場あり
■アフターサービス保証付

| 物件名 | オープンレジデンシア小石川播磨坂 | ||
|---|---|---|---|
| 所在地 | 東京都文京区小石川4-21-7 | ||
| 交通 |
東京メトロ丸ノ内線「茗荷谷駅」徒歩6分 |
||
| 問合せ番号 | 9081-603 | ||
| 物件特徴 | - | ||
| 物件条件 | ペット可 | ||
| 価格 | 1億5,499万円 | 管理費 | 16,530円/月 |
| 修繕積立金 | 15,670円/月 | その他費用 | インターネット使用料/月額1,760円 町内会費/月額200円 |
| 間取り | 2SLDK | 方角 | 北東 |
| 専有面積 | 60.04m2 | バルコニー面積 | 8.82m2 |
| 建物構造 | RC | 築年月 | 2021年4月 |
| 総戸数 | 41戸 | 総階数 | 地上10階 地下1階 |
| 駐車場 | なし | バイク置き場 | - |
| 駐輪場 | あり | 土地権利 | 所有権 |
| 用途地域 | 第二種住居地域 | 管理形態 | 巡回管理 |
| 管理会社 | 日本ハウズイング株式会社 | 分譲会社 | オープンハウス・ディベロップメント |
| 施工会社 | 古久根建設 | 設計会社 | - |
| 取引態様 | 仲介 | 小学校学区 | - |
| 周辺情報 | ■まいばすけっと茗荷谷駅東店(スーパー)まで約1分 ■セブンイレブン文京小石川播磨坂店(コンビニ)まで約1分 ■株式会社紫山堂薬局小石川店(ドラッグストア)まで約1分 |
||
| 現況 | 空室 | 入居/引渡時期 | 相談 |
| 更新日 | 2025年12月26日 | ||
| 頭金 |
|
|---|---|
| 金利 |
|
| 返済年数 | 年 |
※建物周辺情報はGoogleMapを使用しており、実際とは若干異なる場合がございます。
掲載情報について

画像準備中