14階部分、西向き角部屋!新規リフォーム物件!
【特徴・設備】
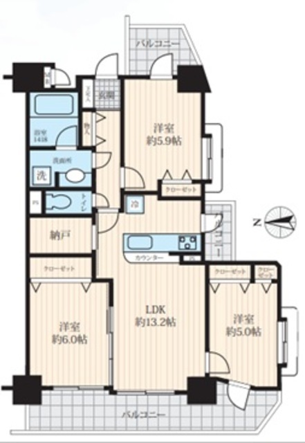
■全室窓あり
■二面採光
■家具の配置がしやすい間取り
■カウンターキッチン
■3口ガスコンロ
■収納豊富
■独立洗面台
■室内洗濯置き場あり
■アフターサービス保証付
| 価格 | 7,980万円 |
毎月の返済額 (目安) |
|
|---|---|---|---|
| 築年月 | 1999年10月 | 間取り | 3SLDK |
| 専有面積 | 69.64m2 | 所在階 | 14階 |
| 方角 | 西 | ||
| 所在地 | 東京都墨田区立花5-2-5 | ||
| 交通 | 東武亀戸線「小村井駅」徒歩4分 京成押上線「京成曳舟駅」徒歩16分 |
||
【特徴・設備】
■全室窓あり
■二面採光
■家具の配置がしやすい間取り
■カウンターキッチン
■3口ガスコンロ
■収納豊富
■独立洗面台
■室内洗濯置き場あり
■アフターサービス保証付

| 物件名 | キャッスルマンション亀戸立花弐番館 | ||
|---|---|---|---|
| 所在地 | 東京都墨田区立花5-2-5 | ||
| 交通 |
東武亀戸線「小村井駅」徒歩4分 京成押上線「京成曳舟駅」徒歩16分 |
||
| 問合せ番号 | 9160-1403 | ||
| 物件特徴 | - | ||
| 物件条件 | - | ||
| 価格 | 7,980万円 | 管理費 | 14,200円/月 |
| 修繕積立金 | 11,420円/月 | その他費用 | - |
| 間取り | 3SLDK | 方角 | 西 |
| 専有面積 | 69.64m2 | バルコニー面積 | 17.31m2 |
| 建物構造 | SRC | 築年月 | 1999年10月 |
| 総戸数 | 49戸 | 総階数 | 地上14階 |
| 駐車場 | 月額20,000円~22,000円 | バイク置き場 | - |
| 駐輪場 | あり | 土地権利 | 所有権 |
| 用途地域 | 商業地域 | 管理形態 | 日勤管理 |
| 管理会社 | ㈱ビルセンター | 分譲会社 | 生研建設 |
| 施工会社 | 生研建設 | 設計会社 | - |
| 取引態様 | 仲介 | 小学校学区 | - |
| 周辺情報 | ■グリーンマート立花店(スーパー)まで約2分 ■ローソン文花三丁目店(コンビニ)まで約1分 ■ひばり薬局(ドラッグストア)まで約1分 |
||
| 現況 | 空室 | 入居/引渡時期 | 即時 |
| 更新日 | 2026年4月10日 | ||
| 頭金 |
|
|---|---|
| 金利 |
|
| 返済年数 | 年 |
※建物周辺情報はGoogleMapを使用しており、実際とは若干異なる場合がございます。
掲載情報について

画像準備中