Wコンフォートタワーズイースト 46階

  • 総合トップ
  • 中古マンション
  • 一戸建て・土地
  • 投資・収益物件
  • 売りたい[売却査定]
  • 貸したい[賃料査定]

Wコンフォートタワーズイースト 46階
新着

価格
18,800
毎月の返済額
(目安)
loansimulationIcon
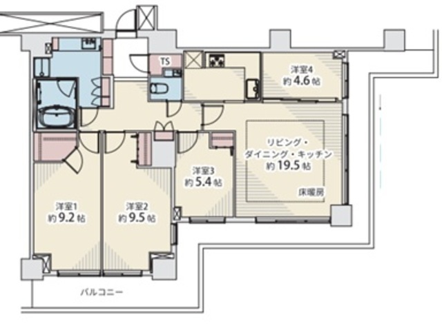
築年月 2004年10月 間取り 4LDK+WIC
専有面積 109.12m2 所在階 46階
方角 西
所在地 東京都江東区東雲1-9-32
交通 東京メトロ有楽町線「辰巳駅」徒歩6分
りんかい線「東雲駅」徒歩8分

46階部分、西向き角部屋!リノベーション物件!

【特徴・設備】
■ペット飼育可
■全室窓あり
■二面採光
■家具の配置がしやすい間取り
■L字型カウンターキッチン
■3口ガスコンロ
■収納豊富
■独立洗面台
■室内洗濯置き場あり
■アフターサービス保証付

2冠達成 恵比寿不動産は物件数No.1 中古マンション数No.1

Wコンフォートタワーズイースト 46階の
購入に関するお問い合わせはこちらから

contact us

恵比寿不動産までお気軽にお問い合わせください

お電話でのお問い合わせはこちら:03-6421-0543 10:00 - 19:00 (水曜定休)
恵比寿不動産店舗情報渋谷区東3-25-11 TOKYU REIT恵比寿ビル4階
オフィス内観写真
オフィス外観写真
リフォーム無料お見積りサービス

物件概要

物件名 Wコンフォートタワーズイースト
所在地
交通
問合せ番号 9436-4605
物件特徴 タワーマンション、大規模マンション
物件条件 ペット可
価格 18,800 管理費 20,800円/月
修繕積立金 19,241円/月 その他費用 935円/月
間取り 4LDK 方角 西
専有面積 109.12m2 バルコニー面積 30.62m2
建物構造 RC 築年月 2004年10月
総戸数 673戸 総階数 地上54階 地下2階
駐車場 月額9,000~21,000円 バイク置き場 月額1,000~4,000円
駐輪場 月額50~300円 土地権利 所有権
用途地域 第二種住居地域 管理形態 日勤管理
管理会社 三菱地所コミュニティ 分譲会社 三菱地所、三菱商事、菱進都市開発
施工会社 戸田建設 設計会社 -
取引態様 仲介 小学校学区 -
周辺情報 ■イオン東雲店(スーパー)まで約4分
■ファミリーマート江東東雲一丁目店(コンビニ)まで約3分
■くすりの福太郎東雲店調剤専門店(ドラッグストア)まで約2分
現況 空室 入居/引渡時期 即時
更新日 2026年4月28日

備考

部屋設備

  • バス・トイレ別
  • 独立洗面台
  • 追い焚き
  • 温水洗浄便座
  • 浴室乾燥機
  • システムキッチン
  • 食器洗浄機
  • 浄水器
  • ガスコンロ
  • 主寝室8帖以上
  • 床暖房
  • エアコン
  • ウォークインクローゼット
  • フローリング
  • 角部屋
  • リノベーション

建物設備

  • エレベーター
  • オートロック
  • 宅配ボックス
  • TVドアホン
  • トランクルーム
  • 駐車場
  • バイク置き場
  • 駐輪場
  • ラウンジ
  • キッズルーム
  • フロントサービス
  • ゲストルーム
  • ゴルフレンジ
  • 24時間ゴミ出し可
  • 防犯カメラ
  • BS
  • CATV
  • インターネット
  • ペット可

Wコンフォートタワーズイースト 46階のローンシミュレーション

借入金額
18,800
頭金
0万円
毎月の返済額
頭金
  • 支払い額万円※半角数字
金利
  • %※半角数字
返済年数
  • ※元利均等返済方式、最大優遇の場合で計算しています。
  • ※融資には個別審査があり、審査結果により、貸出条件(金利・貸出期間・借入額)が異なる場合がございます。
  • ※不動産のご購入に際しましては物件価格以外にその他諸費用が必要となります。
    諸費用に関する詳細につきましてはお問い合わせ下さいませ。

周辺地図

※建物周辺情報はGoogleMapを使用しており、実際とは若干異なる場合がございます。

掲載情報について

  • ※本掲載情報と現況に差異がある場合、現況を優先いたします。
  • ※掲載物件は売却済あるいは売出中止となる場合もあります。
  • ※掲載写真やパース(絵)、または間取図に描かれている家具や車などは、価格に含まれておりません。また、過去に撮影したものをそのまま利用している場合があり、名称・外観・背景等、実際のものとは異なる場合がございます。予めご了承ください。
  • ※仲介物件には所定の仲介手数料(消費税等相当額を含みます)が必要です。
2冠達成 恵比寿不動産は物件数No.1 中古マンション数No.1

Wコンフォートタワーズイースト 46階の
購入に関するお問い合わせはこちらから

contact us

恵比寿不動産までお気軽にお問い合わせください

お電話でのお問い合わせはこちら:03-6421-0543 10:00 - 19:00 (水曜定休)
恵比寿不動産店舗情報渋谷区東3-25-11 TOKYU REIT恵比寿ビル4階
オフィス内観写真
オフィス外観写真

部屋一覧

売出し待ちお知らせ希望 未公開情報の確認 お問い合わせ
所在階 間取り 専有面積 価格 お気に入り お問い合わせ 詳細
5F 2SLDK 89.04m2 13,380
お問い合わせ
詳細を見る
14F
リノベ
2LDK
78.10m2 11,690
お問い合わせ
詳細を見る
新着
15F
リノベ
3SLDK
92.59m2 14,580
お問い合わせ
詳細を見る
新着
46F
リノベ
4LDK
109.12m2 18,800
お問い合わせ
詳細を見る

最近見た物件

仙台堀公園ハイツおすすめ画像

仙台堀公園ハイツ 6階

5,680

  • 東京都江東区東砂1-3-17
  • 都営新宿線「東大島駅」徒歩10分
  • 3SLDK  84.66m2
蔵前アムフラットおすすめ画像

蔵前アムフラット 4階

8,980

  • 東京都台東区三筋2-2-1
  • 都営浅草線「蔵前駅」徒歩5分
    都営大江戸線「蔵前駅」徒歩7分
  • 2LDK  56.87m2