柏木ローズマンション 6階

  • 総合トップ
  • 中古マンション
  • 一戸建て・土地
  • 投資・収益物件
  • 売りたい[売却査定]
  • 貸したい[賃料査定]

柏木ローズマンション 6階

価格
5,080
毎月の返済額
(目安)
loansimulationIcon
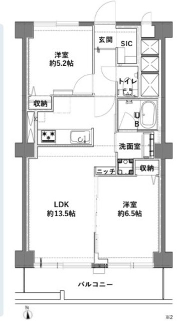
築年月 1973年4月 間取り 2LDK+SIC
専有面積 57.00m2 所在階 6階
方角
所在地 東京都新宿区北新宿3-10-10
交通 JR中央・総武線「新宿駅」徒歩7分
JR中央・総武線「東中野駅」徒歩11分

6階部分、南向き住戸!リノベーション物件!

【特徴・設備】
■全室窓あり
■家具の配置がしやすい間取り
■カウンターキッチン
■3口ガスコンロ
■SICがあり収納豊富
■独立洗面台
■室内洗濯置き場あり
■アフターサービス保証付

2冠達成 恵比寿不動産は物件数No.1 中古マンション数No.1

柏木ローズマンション 6階の
購入に関するお問い合わせはこちらから

contact us

恵比寿不動産までお気軽にお問い合わせください

お電話でのお問い合わせはこちら:03-6421-0543 10:00 - 19:00 (水曜定休)
恵比寿不動産店舗情報渋谷区東3-25-11 TOKYU REIT恵比寿ビル4階
オフィス内観写真
オフィス外観写真
リフォーム無料お見積りサービス

物件概要

物件名 柏木ローズマンション
所在地
交通
問合せ番号 9674-6F
物件特徴 ヴィンテージ、大規模マンション
物件条件 -
価格 5,080 管理費 13,000円/月
修繕積立金 10,260円/月 その他費用 -
間取り 2LDK 方角
専有面積 57.00m2 バルコニー面積 8.1m2
建物構造 SRC 築年月 1973年4月
総戸数 108戸 総階数 地上10階 
駐車場 月額22,000円~ バイク置き場 月額1,500円~
駐輪場 年額6,000円 土地権利 所有権
用途地域 第一種中高層住居専用地域、近隣商業地域 管理形態 日勤管理
管理会社 日本ハウズイング株式会社 分譲会社 日本地所
施工会社 大日本土木 設計会社 -
取引態様 仲介 小学校学区 淀橋第四小学校
周辺情報 ■オリンピック北新宿店(スーパー)まで約2分
■ローソン北新宿一丁目店(コンビニ)まで約1分
■スギ薬局北新宿3丁目店(ドラッグストア)まで約4分
現況 空室 入居/引渡時期 即時
更新日 2026年2月14日

備考

部屋設備

  • バス・トイレ別
  • 独立洗面台
  • 追い焚き
  • 温水洗浄便座
  • 浴室乾燥機
  • システムキッチン
  • カウンターキッチン
  • 食器洗浄機
  • 浄水器
  • ガスコンロ
  • エアコン
  • シューズインクローゼット
  • フローリング
  • 南向き
  • リノベーション

建物設備

  • エレベーター
  • オートロック
  • 宅配ボックス
  • 駐車場
  • バイク置き場
  • 駐輪場

柏木ローズマンション 6階のローンシミュレーション

借入金額
5,080
頭金
0万円
毎月の返済額
頭金
  • 支払い額万円※半角数字
金利
  • %※半角数字
返済年数
  • ※元利均等返済方式、最大優遇の場合で計算しています。
  • ※融資には個別審査があり、審査結果により、貸出条件(金利・貸出期間・借入額)が異なる場合がございます。
  • ※不動産のご購入に際しましては物件価格以外にその他諸費用が必要となります。
    諸費用に関する詳細につきましてはお問い合わせ下さいませ。

周辺地図

※建物周辺情報はGoogleMapを使用しており、実際とは若干異なる場合がございます。

掲載情報について

  • ※本掲載情報と現況に差異がある場合、現況を優先いたします。
  • ※掲載物件は売却済あるいは売出中止となる場合もあります。
  • ※掲載写真やパース(絵)、または間取図に描かれている家具や車などは、価格に含まれておりません。また、過去に撮影したものをそのまま利用している場合があり、名称・外観・背景等、実際のものとは異なる場合がございます。予めご了承ください。
  • ※仲介物件には所定の仲介手数料(消費税等相当額を含みます)が必要です。
2冠達成 恵比寿不動産は物件数No.1 中古マンション数No.1

柏木ローズマンション 6階の
購入に関するお問い合わせはこちらから

contact us

恵比寿不動産までお気軽にお問い合わせください

お電話でのお問い合わせはこちら:03-6421-0543 10:00 - 19:00 (水曜定休)
恵比寿不動産店舗情報渋谷区東3-25-11 TOKYU REIT恵比寿ビル4階
オフィス内観写真
オフィス外観写真

部屋一覧

売出し待ちお知らせ希望 未公開情報の確認 お問い合わせ
所在階 間取り 専有面積 価格 お気に入り お問い合わせ 詳細
6F
リノベ
2LDK
57.00m2 5,080
お問い合わせ
詳細を見る

最近見た物件

勝どきザ・タワーおすすめ画像

勝どきザ・タワー 12階

15,500

  • 東京都中央区勝どき5-3-1
  • 都営大江戸線「勝どき駅」徒歩6分
  • 3LDK  79.24m2
アクシア新宿御苑おすすめ画像

アクシア新宿御苑 2階

6,599

  • 東京都新宿区新宿1-35-3
  • 東京メトロ丸ノ内線「新宿御苑前駅」徒歩5分
    都営新宿線「新宿駅」徒歩13分
  • 1LDK  35.21m2
パルテール目黒青葉台おすすめ画像

パルテール目黒青葉台 6階

16,800

  • 東京都目黒区青葉台4-1-3
  • 京王井の頭線「神泉駅」徒歩4分
    東急田園都市線「池尻大橋駅」徒歩9分
  • 2SLDK  70.76m2
富士見ステータスおすすめ画像

富士見ステータス 3階

4,880

  • 東京都杉並区和田1-32-19
  • 東京メトロ丸ノ内線「中野富士見町駅」徒歩6分
  • 2LDK  53.75m2
ライオンズマンション上池台おすすめ画像

ライオンズマンション上池台 5階

5,250

  • 東京都大田区上池台1-44-1
  • 東急池上線「長原駅」徒歩3分
    東急大井町線「旗の台駅」徒歩6分
  • 2LDK  49.61m2
画像準備中

クレヴィア日本橋 6階

17,800

  • 東京都中央区日本橋蛎殻町1-6-7
  • 東京メトロ半蔵門線「水天宮前駅」徒歩3分
    東京メトロ日比谷線「茅場町駅」徒歩5分
  • 2LDK  54.47m2