シティハイムコスモ 6階

  • 総合トップ
  • 中古マンション
  • 一戸建て・土地
  • 投資・収益物件
  • 売りたい[売却査定]
  • 貸したい[賃料査定]

シティハイムコスモ 6階
新着

価格
5,980
毎月の返済額
(目安)
loansimulationIcon
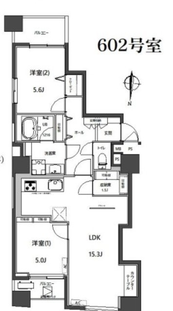
築年月 1974年12月 間取り 2SLDK
専有面積 61.01m2 所在階 6階
方角
所在地 東京都中野区本町1-31-4
交通 東京メトロ丸ノ内線「中野坂上駅」徒歩3分
JR山手線「新宿駅」徒歩20分

6階部分、北向き角部屋!ペット飼育可!

【特徴・設備】
■全室窓あり
■二面バルコニー
■家具の配置がしやすい間取り
■システムキッチン
■3口ガスコンロ
■収納豊富
■独立洗面台
■室内洗濯置き場あり

2冠達成 恵比寿不動産は物件数No.1 中古マンション数No.1

シティハイムコスモ 6階の
購入に関するお問い合わせはこちらから

contact us

恵比寿不動産までお気軽にお問い合わせください

お電話でのお問い合わせはこちら:03-6421-0543 10:00 - 19:00 (水曜定休)
恵比寿不動産店舗情報渋谷区東3-25-11 TOKYU REIT恵比寿ビル4階
オフィス内観写真
オフィス外観写真
リフォーム無料お見積りサービス

物件概要

物件名 シティハイムコスモ
所在地
交通
問合せ番号 9873-602
物件特徴 ヴィンテージ
物件条件 ペット可
価格 5,980 管理費 19,420円/月
修繕積立金 15,378円/月 その他費用 2,063円/月
間取り 2SLDK 方角
専有面積 61.01m2 バルコニー面積 6.89m2
建物構造 SRC 築年月 1974年12月
総戸数 33戸 総階数 地上11階 
駐車場 月額25,000円 バイク置き場 月額1,500円
駐輪場 月額500円 土地権利 所有権
用途地域 商業地域  管理形態 日勤管理
管理会社 株式会社日鉄コミュニティ 分譲会社 タウン開発
施工会社 清水建設 設計会社 -
取引態様 仲介 小学校学区 -
周辺情報 ■中野第一小学校 約800m
■第ニ中学校   約1,400m
■セブンイレプン 約56m
■ライフ     約71m
現況 空室 入居/引渡時期 即時
更新日 2026年4月29日

備考

部屋設備

  • バス・トイレ別
  • 独立洗面台
  • 追い焚き
  • 温水洗浄便座
  • 浴室乾燥機
  • ビューバス
  • システムキッチン
  • 食器洗浄機
  • 浄水器
  • ガスコンロ
  • エアコン
  • フローリング
  • 角部屋
  • リノベーション

建物設備

  • エレベーター
  • TVドアホン
  • 駐車場
  • バイク置き場
  • 駐輪場
  • 24時間ゴミ出し可
  • インターネット
  • ペット可

シティハイムコスモ 6階のローンシミュレーション

借入金額
5,980
頭金
0万円
毎月の返済額
頭金
  • 支払い額万円※半角数字
金利
  • %※半角数字
返済年数
  • ※元利均等返済方式、最大優遇の場合で計算しています。
  • ※融資には個別審査があり、審査結果により、貸出条件(金利・貸出期間・借入額)が異なる場合がございます。
  • ※不動産のご購入に際しましては物件価格以外にその他諸費用が必要となります。
    諸費用に関する詳細につきましてはお問い合わせ下さいませ。

周辺地図

※建物周辺情報はGoogleMapを使用しており、実際とは若干異なる場合がございます。

掲載情報について

  • ※本掲載情報と現況に差異がある場合、現況を優先いたします。
  • ※掲載物件は売却済あるいは売出中止となる場合もあります。
  • ※掲載写真やパース(絵)、または間取図に描かれている家具や車などは、価格に含まれておりません。また、過去に撮影したものをそのまま利用している場合があり、名称・外観・背景等、実際のものとは異なる場合がございます。予めご了承ください。
  • ※仲介物件には所定の仲介手数料(消費税等相当額を含みます)が必要です。
2冠達成 恵比寿不動産は物件数No.1 中古マンション数No.1

シティハイムコスモ 6階の
購入に関するお問い合わせはこちらから

contact us

恵比寿不動産までお気軽にお問い合わせください

お電話でのお問い合わせはこちら:03-6421-0543 10:00 - 19:00 (水曜定休)
恵比寿不動産店舗情報渋谷区東3-25-11 TOKYU REIT恵比寿ビル4階
オフィス内観写真
オフィス外観写真

部屋一覧

売出し待ちお知らせ希望 未公開情報の確認 お問い合わせ
所在階 間取り 専有面積 価格 お気に入り お問い合わせ 詳細
新着
6F
リノベ
2SLDK
61.01m2 5,980
お問い合わせ
詳細を見る

最近見た物件

セザールベイサイド勝どきおすすめ画像

セザールベイサイド勝どき 7階

9,990

  • 東京都中央区勝どき3-3-12
  • 都営大江戸線「勝どき駅」徒歩4分
    東京メトロ有楽町線「月島駅」徒歩14分
  • 2LDK  61.65m2
ワールドシティタワーズブリーズタワーおすすめ画像

ワールドシティタワーズブリーズタワー 16階

22,000

  • 東京都港区港南4-6-6
  • JR山手線「品川駅」徒歩14分
    JR東海道本線(東京~熱海)「品川駅」徒歩14分
  • 2LDK  86.00m2
日神パレステージ西麻布おすすめ画像

日神パレステージ西麻布 6階

4,780

  • 東京都港区西麻布4-11-2
  • 東京メトロ日比谷線「広尾駅」徒歩10分
    東京メトロ日比谷線「六本木駅」徒歩11分
  • 1K  28.67m2
ドルミ恵比寿おすすめ画像

ドルミ恵比寿 3階

8,180

  • 東京都渋谷区恵比寿3-3-5
  • JR山手線「恵比寿駅」徒歩9分
    JR湘南新宿ライン「恵比寿駅」徒歩9分
  • 2LDK  52.38m2
外観

パークタワー西新宿エムズポート 17階

16,500

  • 東京都新宿区西新宿2-14-27
  • 東京メトロ丸ノ内線「西新宿駅」徒歩4分
    都営大江戸線「都庁前駅」徒歩13分
  • 3LDK  74.64m2