ルジェンテ・リベル上野稲荷町 3階

  • 総合トップ
  • 中古マンション
  • 一戸建て・土地
  • 投資・収益物件
  • 売りたい[売却査定]
  • 貸したい[賃料査定]

ルジェンテ・リベル上野稲荷町 3階
新着

価格
7,480
毎月の返済額
(目安)
loansimulationIcon
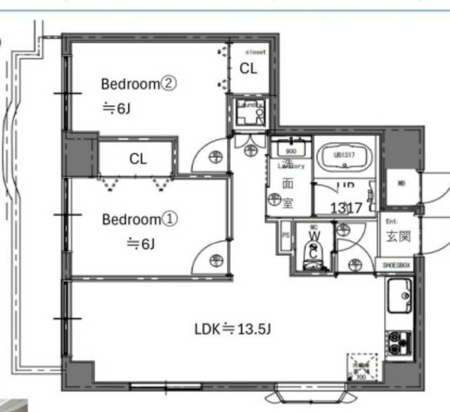
築年月 1989年10月 間取り 2LDK
専有面積 56.96m2 所在階 3階
方角 南東
所在地 東京都台東区東上野6-18-18
交通 東京メトロ銀座線「稲荷町駅」徒歩7分
JR山手線「上野駅」徒歩10分

3階部分、南東向き角部屋!ペット飼育可!

【特徴・設備】
■全室窓あり
■二面採光
■家具の配置がしやすい間取り
■システムキッチン
■3口ガスコンロ
■収納豊富
■独立洗面台
■室内洗濯置き場あり

2冠達成 恵比寿不動産は物件数No.1 中古マンション数No.1

ルジェンテ・リベル上野稲荷町 3階の
購入に関するお問い合わせはこちらから

contact us

恵比寿不動産までお気軽にお問い合わせください

お電話でのお問い合わせはこちら:03-6421-0543 10:00 - 19:00 (水曜定休)
恵比寿不動産店舗情報渋谷区東3-25-11 TOKYU REIT恵比寿ビル4階
オフィス内観写真
オフィス外観写真
リフォーム無料お見積りサービス

物件概要

物件名 ルジェンテ・リベル上野稲荷町
所在地
交通
問合せ番号 9928-301
物件特徴 -
物件条件 ペット可
価格 7,480 管理費 18,100円/月
修繕積立金 13,400円/月 その他費用 300円/月
間取り 2LDK 方角 南東
専有面積 56.96m2 バルコニー面積 8.68m2
建物構造 SRC 築年月 1989年10月
総戸数 46戸 総階数 地上10階 
駐車場 - バイク置き場 -
駐輪場 - 土地権利 所有権
用途地域 商業地域  管理形態 巡回管理
管理会社 株式会社東急コミュニティー 分譲会社 東急リバブル
施工会社 銭高組 設計会社 二天文1級建築士事務所
取引態様 仲介 小学校学区 -
周辺情報 ■マルエツ東上野店 約323m
■ファミリーマート台東松が谷店 約37m
■台東区立上野小学校 約167m
■台東区立清島幼稚園 約172m
■上野保育園 約177m
現況 空室 入居/引渡時期 即時
更新日 2026年4月29日

備考

部屋設備

  • バス・トイレ別
  • 独立洗面台
  • 追い焚き
  • 温水洗浄便座
  • 浴室乾燥機
  • システムキッチン
  • 食器洗浄機
  • 浄水器
  • ガスコンロ
  • エアコン
  • フローリング
  • 角部屋
  • 南向き
  • リノベーション

建物設備

  • エレベーター
  • オートロック
  • 宅配ボックス
  • TVドアホン
  • 駐輪場
  • 24時間ゴミ出し可
  • インターネット
  • ペット可

ルジェンテ・リベル上野稲荷町 3階のローンシミュレーション

借入金額
7,480
頭金
0万円
毎月の返済額
頭金
  • 支払い額万円※半角数字
金利
  • %※半角数字
返済年数
  • ※元利均等返済方式、最大優遇の場合で計算しています。
  • ※融資には個別審査があり、審査結果により、貸出条件(金利・貸出期間・借入額)が異なる場合がございます。
  • ※不動産のご購入に際しましては物件価格以外にその他諸費用が必要となります。
    諸費用に関する詳細につきましてはお問い合わせ下さいませ。

周辺地図

※建物周辺情報はGoogleMapを使用しており、実際とは若干異なる場合がございます。

掲載情報について

  • ※本掲載情報と現況に差異がある場合、現況を優先いたします。
  • ※掲載物件は売却済あるいは売出中止となる場合もあります。
  • ※掲載写真やパース(絵)、または間取図に描かれている家具や車などは、価格に含まれておりません。また、過去に撮影したものをそのまま利用している場合があり、名称・外観・背景等、実際のものとは異なる場合がございます。予めご了承ください。
  • ※仲介物件には所定の仲介手数料(消費税等相当額を含みます)が必要です。
2冠達成 恵比寿不動産は物件数No.1 中古マンション数No.1

ルジェンテ・リベル上野稲荷町 3階の
購入に関するお問い合わせはこちらから

contact us

恵比寿不動産までお気軽にお問い合わせください

お電話でのお問い合わせはこちら:03-6421-0543 10:00 - 19:00 (水曜定休)
恵比寿不動産店舗情報渋谷区東3-25-11 TOKYU REIT恵比寿ビル4階
オフィス内観写真
オフィス外観写真

部屋一覧

売出し待ちお知らせ希望 未公開情報の確認 お問い合わせ
所在階 間取り 専有面積 価格 お気に入り お問い合わせ 詳細
新着
3F
リノベ
2LDK
56.96m2 7,480
お問い合わせ
詳細を見る
改定
4F
リノベ
1LDK
37.94m2 6,098
お問い合わせ
詳細を見る

最近見た物件

五反田ダイヤモンドマンションおすすめ画像

五反田ダイヤモンドマンション 5階

4,699

  • 東京都品川区西五反田6-25-2
  • 都営浅草線「戸越駅」徒歩6分
    東急池上線「戸越銀座駅」徒歩8分
  • 1LDK  35.00m2
オーベルジュ日本橋おすすめ画像

オーベルジュ日本橋 12階

13,999

  • 東京都中央区日本橋中洲3-13
  • 東京メトロ半蔵門線「水天宮前駅」徒歩4分
    東京メトロ日比谷線「人形町駅」徒歩11分
  • 2LDK  58.80m2
外観

麻布ホームズ 4階

25,800

  • 東京都港区西麻布1-2-17
  • 東京メトロ日比谷線「六本木駅」徒歩5分
    都営大江戸線「六本木駅」徒歩5分
  • 2LDK  103.04m2