徳川マンション 3階

  • 総合トップ
  • 中古マンション
  • 一戸建て・土地
  • 投資・収益物件
  • 売りたい[売却査定]
  • 貸したい[賃料査定]

徳川マンション 3階
新着

価格
7,990
毎月の返済額
(目安)
loansimulationIcon
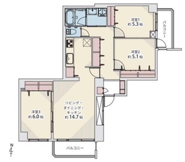
築年月 1971年2月 間取り 3LDK
専有面積 74.64m2 所在階 3階
方角
所在地 東京都文京区千石1-6-24
交通 都営三田線「千石駅」徒歩5分
JR山手線「巣鴨駅」徒歩13分

3階部分、南向き角部屋!リノベーション物件!

【特徴・設備】
■ペット飼育可
■全室窓あり
■二面採光
■家具の配置がしやすい間取り
■システムキッチン
■3口ガスコンロ
■収納豊富
■独立洗面台
■室内洗濯置き場あり
■アフターサービス保証付

2冠達成 恵比寿不動産は物件数No.1 中古マンション数No.1

徳川マンション 3階の
購入に関するお問い合わせはこちらから

contact us

恵比寿不動産までお気軽にお問い合わせください

お電話でのお問い合わせはこちら:03-6421-0543 10:00 - 19:00 (水曜定休)
恵比寿不動産店舗情報渋谷区東3-25-11 TOKYU REIT恵比寿ビル4階
オフィス内観写真
オフィス外観写真
リフォーム無料お見積りサービス

物件概要

物件名 徳川マンション
所在地
交通
問合せ番号 9940-306
物件特徴 ヴィンテージ
物件条件 -
価格 7,990 管理費 19,300円/月
修繕積立金 28,700円/月 その他費用 -
間取り 3LDK 方角
専有面積 74.64m2 バルコニー面積 8.81m2
建物構造 SRC 築年月 1971年2月
総戸数 79戸 総階数 地上11階 地下1階
駐車場 月額32,000円 バイク置き場 なし
駐輪場 月額200円 土地権利 所有権
用途地域 第一種中高層住居専用地域、商業地域  管理形態 日勤管理
管理会社 日本ハウズイング株式会社 分譲会社 新生活舎
施工会社 清水建設 設計会社 -
取引態様 仲介 小学校学区 -
周辺情報 ■マルエツ プチ 千石店 ……… 約250m
■文京グリーンコート ………… 約600m
■文京千石郵便局  …………… 約150m
■千葉医院  …………………… 約130m
■林町小学校  ………………… 約400m
■第十中学校  ………………… 約400m
現況 空室 入居/引渡時期 即時
更新日 2026年4月28日

備考

部屋設備

  • バス・トイレ別
  • 独立洗面台
  • 追い焚き
  • 温水洗浄便座
  • 浴室乾燥機
  • システムキッチン
  • 食器洗浄機
  • 浄水器
  • ガスコンロ
  • エアコン
  • フローリング
  • 角部屋
  • 南向き
  • リノベーション

建物設備

  • エレベーター
  • 駐車場
  • 駐輪場
  • CATV

徳川マンション 3階のローンシミュレーション

借入金額
7,990
頭金
0万円
毎月の返済額
頭金
  • 支払い額万円※半角数字
金利
  • %※半角数字
返済年数
  • ※元利均等返済方式、最大優遇の場合で計算しています。
  • ※融資には個別審査があり、審査結果により、貸出条件(金利・貸出期間・借入額)が異なる場合がございます。
  • ※不動産のご購入に際しましては物件価格以外にその他諸費用が必要となります。
    諸費用に関する詳細につきましてはお問い合わせ下さいませ。

周辺地図

※建物周辺情報はGoogleMapを使用しており、実際とは若干異なる場合がございます。

掲載情報について

  • ※本掲載情報と現況に差異がある場合、現況を優先いたします。
  • ※掲載物件は売却済あるいは売出中止となる場合もあります。
  • ※掲載写真やパース(絵)、または間取図に描かれている家具や車などは、価格に含まれておりません。また、過去に撮影したものをそのまま利用している場合があり、名称・外観・背景等、実際のものとは異なる場合がございます。予めご了承ください。
  • ※仲介物件には所定の仲介手数料(消費税等相当額を含みます)が必要です。
2冠達成 恵比寿不動産は物件数No.1 中古マンション数No.1

徳川マンション 3階の
購入に関するお問い合わせはこちらから

contact us

恵比寿不動産までお気軽にお問い合わせください

お電話でのお問い合わせはこちら:03-6421-0543 10:00 - 19:00 (水曜定休)
恵比寿不動産店舗情報渋谷区東3-25-11 TOKYU REIT恵比寿ビル4階
オフィス内観写真
オフィス外観写真

部屋一覧

売出し待ちお知らせ希望 未公開情報の確認 お問い合わせ
所在階 間取り 専有面積 価格 お気に入り お問い合わせ 詳細
新着
3F
リノベ
3LDK
74.64m2 7,990
お問い合わせ
詳細を見る