新宿区高田馬場3丁目 新築戸建て B号棟 1198 成約済み(1198)

  • 総合トップ
  • 中古マンション
  • 一戸建て・土地
  • 投資・収益物件
  • 売りたい[売却査定]
  • 貸したい[賃料査定]

新宿区高田馬場3丁目 新築戸建て B号棟 成約済み(1198)

恵比寿不動産の強み

こちらの物件は既に成約済みです。

物件検索より最新の物件をお探しください。

  • 新築一戸建て
価格
***
毎月の返済額
(目安)
loansimulationIcon
土地面積 43.52m2(約13.16坪)(実測)
建物面積 73.46m2(約22.22坪)
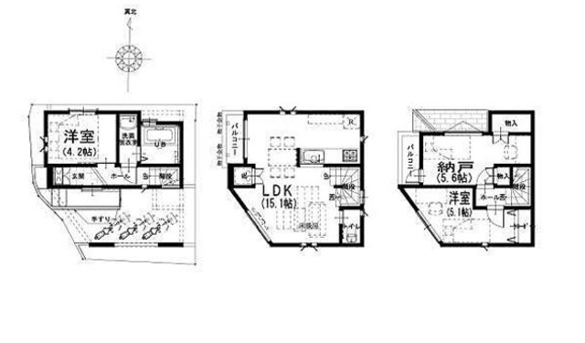
築年月 2023年5月 間取り 2SLDK
建ぺい率 60% 容積率 300%
所在地
交通

「高田馬場」駅徒歩10分!3階建て2SLDK

【特徴・設備】
■JR山手線「高田馬場」駅 徒歩約10分
■新宿区高田馬場アドレス
■4路線3駅利用可
■山手線徒歩圏内の好立地
■24時間換気システム
■浴室暖房、浴室乾燥機
■システムキッチン、食器洗乾燥機
■カードキー、洗濯乾燥機、床暖房
■納戸(5.6帖)、床下収納、バルコニー

2冠達成 恵比寿不動産は物件数No.1 中古マンション数No.1

物件概要

物件名 新宿区高田馬場3丁目 新築戸建て B号棟
種別 一戸建て
所在地
交通
問合せ番号 1198
価格 *** 借地料 ***円
借地期間 - その他費用 ***円
土地面積 43.52m2(約13.16坪)(実測) 建物面積 73.46m2(約22.22坪)
バルコニー面積 - 庭面積 -
構造 木造 総階数 地上3階
築年月 2023年5月 間取り 2SLDK
方角 西 駐車場
土地権利 所有権 用途地域 第一種中高層住居専用地域
地目 宅地 私道負担 -
セットバック - 建ぺい率 60%
容積率 300% 接道状況 西側 4.7m 公道に7.3m 接道
都市計画 市街化区域 国土法届出 -
建築条件 - 取引態様 仲介
小学校学区 戸塚第三小学校 周辺情報 -
現況 成約済 引渡し ***
更新日 2024年3月3日

備考

条件

  • 平坦地
  • 小学校まで徒歩10分以内
  • コンビニまで徒歩3分以内
  • 独立洗面台
  • 温水洗浄便座
  • 浴室乾燥機
  • 乾燥機付き洗濯機
  • システムキッチン
  • 食器洗浄機
  • 浄水器
  • 床暖房
  • フローリング
  • バス・トイレ別

周辺地図

※建物周辺情報はGoogleMapを使用しており、実際とは若干異なる場合がございます。

掲載情報について

  • ※本掲載情報と現況に差異がある場合、現況を優先いたします。
  • ※掲載物件は売却済あるいは売出中止となる場合もあります。
  • ※掲載写真やパース(絵)、または間取図に描かれている家具や車などは、価格に含まれておりません。また、過去に撮影したものをそのまま利用している場合があり、名称・外観・背景等、実際のものとは異なる場合がございます。予めご了承ください。
  • ※仲介物件には所定の仲介手数料(消費税等相当額を含みます)が必要です。
2冠達成 恵比寿不動産は物件数No.1 中古マンション数No.1

最近見た物件

江東区大島2丁目 新築一戸建て 成約済み(1413) 最近見た物件画像

江東区大島2丁目 新築一戸建て 成約済み(1413)

  • ***
  • 東京都江東区大島2
  • 都営新宿線「西大島駅」徒歩4分
    JR中央・総武線「亀戸駅」徒歩11分
  • 土地面積 39.11m2(約11.83坪)(実測)
  • 建物面積 73.46m2(約22.22坪)
  • 2023年11月
大田区池上2丁目 新築一戸建て B号棟 成約済み(2252) 最近見た物件画像

大田区池上2丁目 新築一戸建て B号棟 成約済み(2252)

  • ***
  • 東京都大田区池上2
  • 東急池上線「池上駅」徒歩9分
  • 土地面積 55.85m2(約16.89坪)
  • 建物面積 73.46m2(約22.22坪)
  • 2025年4月