新宿区住吉町 中古戸建て 1219 成約済み(1219)

  • 総合トップ
  • 中古マンション
  • 一戸建て・土地
  • 投資・収益物件
  • 売りたい[売却査定]
  • 貸したい[賃料査定]

新宿区住吉町 中古戸建て 成約済み(1219)

恵比寿不動産の強み

こちらの物件は既に成約済みです。

物件検索より最新の物件をお探しください。

  • 一戸建て
価格
***
毎月の返済額
(目安)
loansimulationIcon
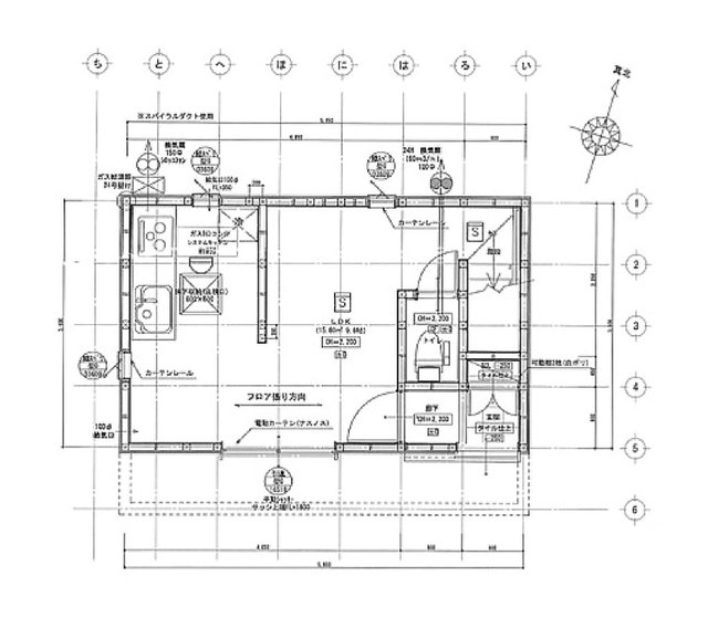
土地面積 48.14m2(約14.56坪)(実測)
建物面積 66.01m2(約19.97坪)(実測)
築年月 2016年4月 間取り 4LDK
建ぺい率 60% 容積率 160%
所在地
交通

「若松河田」駅徒歩8分!3階建て4LDK

【特徴・設備】
■都営大江戸線「若松河田」駅徒歩8分
■新宿区住吉町アドレス
■3路線4駅以上利用可
■システムキッチン、グリル、2口コンロ
■シャワー付洗面化粧台、トイレ2ヶ所
■追焚機能、浴室暖房、エアコン2台以上
■人感センサー付照明、ダブルロックドア

2冠達成 恵比寿不動産は物件数No.1 中古マンション数No.1

物件概要

物件名 新宿区住吉町 中古戸建て
種別 一戸建て
所在地
交通
問合せ番号 1219
価格 *** 借地料 ***円
借地期間 - その他費用 ***円
土地面積 48.14m2(約14.56坪)(実測) 建物面積 66.01m2(約19.97坪)(実測)
バルコニー面積 - 庭面積 -
構造 木造 総階数 地上3階
築年月 2016年4月 間取り 4LDK
方角 駐車場 -
土地権利 所有権 用途地域 第一種中高層住居専用地域
地目 地目 私道負担 -
セットバック 有 4.77㎡ 建ぺい率 60%
容積率 160% 接道状況 南東2.4m 公道 接⾯7.3m
都市計画 市街化区域 国土法届出 -
建築条件 - 取引態様 仲介
小学校学区 牛込仲之小学校 周辺情報 -
現況 成約済 引渡し ***
更新日 2024年1月27日

備考

建築⼠等の建物検査報告書あり

条件

  • 高台
  • 南道路(南東・南西含)
  • 小学校まで徒歩10分以内
  • スーパーまで徒歩5分以内
  • コンビニまで徒歩3分以内
  • 公園まで徒歩5分以内
  • TVドアホン
  • 駐車場付き
  • CS
  • CATV
  • インターネット
  • 独立洗面台
  • 追い焚き
  • 温水洗浄便座
  • 浴室乾燥機
  • システムキッチン
  • ガスコンロ
  • 床暖房
  • エアコン
  • ダブルロックキー
  • フローリング
  • バス・トイレ別
  • 浴室1坪以上

周辺地図

※建物周辺情報はGoogleMapを使用しており、実際とは若干異なる場合がございます。

掲載情報について

  • ※本掲載情報と現況に差異がある場合、現況を優先いたします。
  • ※掲載物件は売却済あるいは売出中止となる場合もあります。
  • ※掲載写真やパース(絵)、または間取図に描かれている家具や車などは、価格に含まれておりません。また、過去に撮影したものをそのまま利用している場合があり、名称・外観・背景等、実際のものとは異なる場合がございます。予めご了承ください。
  • ※仲介物件には所定の仲介手数料(消費税等相当額を含みます)が必要です。
2冠達成 恵比寿不動産は物件数No.1 中古マンション数No.1