「田端」駅 徒歩12分!3LDK+大型ガレージ
【特徴・設備】
■JR山手線「田端」駅 徒歩12分
■文京区本駒込アドレス
■2025年1月 共同住宅・店舗から居宅へ工事完了済み
■屋上・バルコニー防水工事、室内設備一式交換済み
■システムキッチン・食洗機・パントリー・照明器具
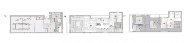
■オートバス・浴室に窓・シャッター付大型ガレージ

物件検索より最新の物件をお探しください。
| 価格 | ***万円 |
毎月の返済額 (目安) |
|
|---|---|---|---|
| 土地面積 | 115.49m2(約34.94坪) | ||
| 建物面積 | 195.88m2(約59.25坪) | ||
| 築年月 | 2008年5月 | 間取り | 3LDK+WIC |
| 建ぺい率 | 60% | 容積率 | 300% |
| 所在地 | 東京都文京区本駒込4 | ||
| 交通 |
JR山手線「田端駅」徒歩12分 JR京浜東北線「田端駅」徒歩12分 | ||
【特徴・設備】
■JR山手線「田端」駅 徒歩12分
■文京区本駒込アドレス
■2025年1月 共同住宅・店舗から居宅へ工事完了済み
■屋上・バルコニー防水工事、室内設備一式交換済み
■システムキッチン・食洗機・パントリー・照明器具
■オートバス・浴室に窓・シャッター付大型ガレージ

| 物件名 | 文京区本駒込4丁目 中古一戸建て | ||
|---|---|---|---|
| 種別 | 一戸建て | ||
| 所在地 | 東京都文京区本駒込4 | ||
| 交通 |
JR山手線「田端駅」徒歩12分(バス停)動坂下 徒歩1分 JR京浜東北線「田端駅」徒歩12分 東京メトロ南北線「本駒込駅」徒歩13分 東京メトロ千代田線「千駄木駅」徒歩14分 |
||
| 問合せ番号 | 2234 | ||
| 価格 | ***万円 | 借地料 | ***円 |
| 借地期間 | - | その他費用 | ***円 |
| 土地面積 | 115.49m2(約34.94坪) | 建物面積 | 195.88m2(約59.25坪) |
| バルコニー面積 | - | 庭面積 | - |
| 構造 | 鉄骨造 | 総階数 | 地上3階 |
| 築年月 | 2008年5月 | 間取り | 3LDK |
| 方角 | 南東 | 駐車場 | 有 |
| 土地権利 | 所有権 | 用途地域 | 第一種住居地域 |
| 地目 | 宅地 | 私道負担 | - |
| セットバック | - | 建ぺい率 | 60% |
| 容積率 | 300% | 接道状況 | 南東側 約4.0m 公道 |
| 都市計画 | 市街化区域 | 国土法届出 | - |
| 建築条件 | - | 取引態様 | 仲介 |
| 小学校学区 | - | 周辺情報 | - |
| 現況 | 成約済 | 引渡し | *** |
| 更新日 | 2025年7月2日 | ||
※建物周辺情報はGoogleMapを使用しており、実際とは若干異なる場合がございます。
掲載情報について

物件写真 物件画像1