西武新宿線 西武新宿駅の一戸建て(新築/中古)・土地売買物件一覧

  • 総合トップ
  • 中古マンション
  • 一戸建て・土地
  • 投資・収益物件
  • 売りたい[売却査定]
  • 貸したい[賃料査定]
恵比寿不動産の強み

西武新宿線 西武新宿駅の一戸建て(新築/中古)・土地売買物件一覧

検索条件:西武新宿線 西武新宿駅

【西武新宿線】 駅名を選択してください(複数選択可)

価格 8,280
所在地 東京都中野区若宮1
交通 西武新宿線西武新宿駅」徒歩5分
西武新宿線都立家政駅」徒歩9分
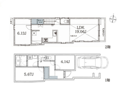
土地面積 71.56m2(約21.65坪) 建物面積 90.64m2(約27.42坪)
築年月 2026年8月 間取り 3LDK
建ぺい率 60% 容積率 200%
一言コメント 「野方」駅 徒歩5分!3LDK+車庫

ご希望の物件が見つからない場合は…

contact us

ご希望の物件が見つからない場合でも
お気軽にお問い合わせください。

売却相談を受けたばかりの公開前の情報や、
売主の意向によってネット広告など
表に公開できない物件もご紹介させて頂きます。