晴海フラッグパークビレッジ 30階

  • 総合トップ
  • 中古マンション
  • 一戸建て・土地
  • 投資・収益物件
  • 売りたい[売却査定]
  • 貸したい[賃料査定]

晴海フラッグパークビレッジ 30階
新着

価格
31,980
毎月の返済額
(目安)
loansimulationIcon
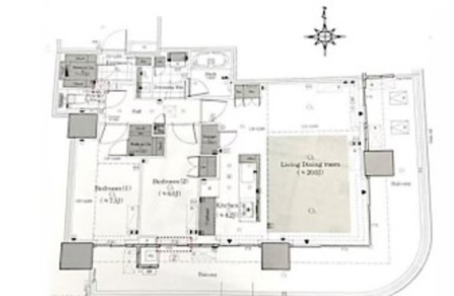
築年月 2023年11月 間取り 2LDK+SIC+WIC
専有面積 85.83m2 所在階 30階
方角
所在地 東京都中央区晴海5-6-1
交通 都営大江戸線「勝どき駅」徒歩21分

30階部分、南向き角部屋!

【特徴・設備】
■L字型バルコニー
■全室窓あり
■二面採光
■家具の配置がしやすい間取り
■カウンターキッチン
■3口ガスコンロ
■WIC・SICがあり収納豊富
■独立洗面台
■室内洗濯置き場あり

2冠達成 恵比寿不動産は物件数No.1 中古マンション数No.1

晴海フラッグパークビレッジ 30階の
購入に関するお問い合わせはこちらから

contact us

恵比寿不動産までお気軽にお問い合わせください

お電話でのお問い合わせはこちら:03-6421-0543 10:00 - 19:00 (水曜定休)
恵比寿不動産店舗情報渋谷区東3-25-11 TOKYU REIT恵比寿ビル4階
オフィス内観写真
オフィス外観写真
リフォーム無料お見積りサービス

物件概要

物件名 晴海フラッグパークビレッジ
所在地
交通
問合せ番号 10739-3008
物件特徴 大規模マンション
物件条件 -
価格 31,980 管理費 33,730円/月
修繕積立金 16,400円/月 その他費用 -
間取り 2LDK 方角
専有面積 85.83m2 バルコニー面積 35.88m2
建物構造 RC 築年月 2023年11月
総戸数 163戸 総階数 地上14階 地下1階
駐車場 バイク置き場
駐輪場 土地権利 所有権
用途地域 商業地域  管理形態 日勤管理
管理会社 - 分譲会社 三井不動産レジデンシャル(株)
施工会社 三井住友建設(株) 設計会社 -
取引態様 仲介 小学校学区 月島第三小学校
周辺情報 ■マルエツ 勝どき六丁目店(スーパー)まで約11分
■ファミリーマート HARUMIFLAG店(コンビニ)まで約3分
■どらっぐぱぱす 勝どき5丁目店(ドラックストア)まで約11分
現況 空室 入居/引渡時期 即時
更新日 2026年1月28日

備考

自治会費:100円
インタ-ネット利用料:2,200円
HARUMLFLAG CLUB会費:500円
テレビ使用料:550円/月

部屋設備

  • バス・トイレ別
  • 独立洗面台
  • 追い焚き
  • 温水洗浄便座
  • 浴室乾燥機
  • システムキッチン
  • カウンターキッチン
  • 食器洗浄機
  • 浄水器
  • ガスコンロ
  • 床暖房
  • エアコン
  • シューズインクローゼット
  • ウォークインクローゼット
  • フローリング
  • 角部屋
  • 南向き
  • リノベーション

建物設備

  • エレベーター
  • オートロック
  • 駐車場
  • バイク置き場
  • 駐輪場
  • インターネット

晴海フラッグパークビレッジ 30階のローンシミュレーション

借入金額
31,980
頭金
0万円
毎月の返済額
頭金
  • 支払い額万円※半角数字
金利
  • %※半角数字
返済年数
  • ※元利均等返済方式、最大優遇の場合で計算しています。
  • ※融資には個別審査があり、審査結果により、貸出条件(金利・貸出期間・借入額)が異なる場合がございます。
  • ※不動産のご購入に際しましては物件価格以外にその他諸費用が必要となります。
    諸費用に関する詳細につきましてはお問い合わせ下さいませ。

周辺地図

※建物周辺情報はGoogleMapを使用しており、実際とは若干異なる場合がございます。

掲載情報について

  • ※本掲載情報と現況に差異がある場合、現況を優先いたします。
  • ※掲載物件は売却済あるいは売出中止となる場合もあります。
  • ※掲載写真やパース(絵)、または間取図に描かれている家具や車などは、価格に含まれておりません。また、過去に撮影したものをそのまま利用している場合があり、名称・外観・背景等、実際のものとは異なる場合がございます。予めご了承ください。
  • ※仲介物件には所定の仲介手数料(消費税等相当額を含みます)が必要です。
2冠達成 恵比寿不動産は物件数No.1 中古マンション数No.1

晴海フラッグパークビレッジ 30階の
購入に関するお問い合わせはこちらから

contact us

恵比寿不動産までお気軽にお問い合わせください

お電話でのお問い合わせはこちら:03-6421-0543 10:00 - 19:00 (水曜定休)
恵比寿不動産店舗情報渋谷区東3-25-11 TOKYU REIT恵比寿ビル4階
オフィス内観写真
オフィス外観写真

部屋一覧

売出し待ちお知らせ希望 未公開情報の確認 お問い合わせ
所在階 間取り 専有面積 価格 お気に入り お問い合わせ 詳細
7F 3LDK 74.33m2 14,980
お問い合わせ
詳細を見る
18F
リノベ
3LDK
78.82m2 21,480
お問い合わせ
詳細を見る
新着
30F
リノベ
2LDK
85.83m2 31,980
お問い合わせ
詳細を見る
新着
35F
リノベ
3LDK
78.82m2 23,800
お問い合わせ
詳細を見る
50F 2LDK 80.32m2 29,800
お問い合わせ
詳細を見る