35階部分、南向き角部屋!
【特徴・設備】
■全室窓あり
■二面採光
■家具の配置がしやすい間取り
■カウンターキッチン
■3口ガスコンロ
■WICがあり収納豊富
■独立洗面台
■室内洗濯置き場あり
| 価格 | 3億9,800万円 |
毎月の返済額 (目安) |
|
|---|---|---|---|
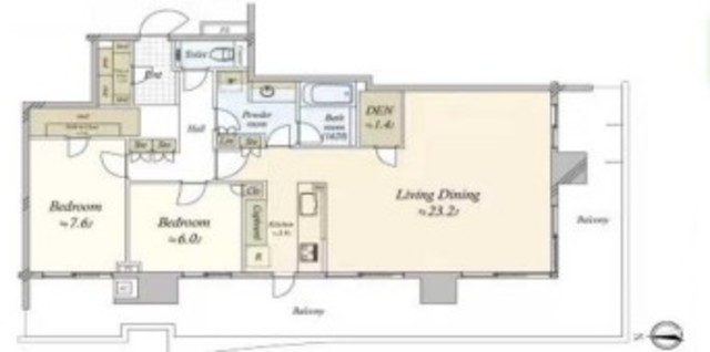
| 築年月 | 2023年11月 | 間取り | 2LDK+SIC+WIC |
| 専有面積 | 95.56m2 | 所在階 | 35階 |
| 方角 | 南 | ||
| 所在地 | 東京都中央区晴海5-6-1 | ||
| 交通 | 都営大江戸線「勝どき駅」徒歩21分 | ||
【特徴・設備】
■全室窓あり
■二面採光
■家具の配置がしやすい間取り
■カウンターキッチン
■3口ガスコンロ
■WICがあり収納豊富
■独立洗面台
■室内洗濯置き場あり

| 物件名 | 晴海フラッグパークビレッジ | ||
|---|---|---|---|
| 所在地 | 東京都中央区晴海5-6-1 | ||
| 交通 |
都営大江戸線「勝どき駅」徒歩21分 |
||
| 問合せ番号 | 10739-3504 | ||
| 物件特徴 | 大規模マンション | ||
| 物件条件 | - | ||
| 価格 | 3億9,800万円 | 管理費 | 37,550円/月 |
| 修繕積立金 | 18,250円/月 | その他費用 | - |
| 間取り | 2LDK | 方角 | 南 |
| 専有面積 | 95.56m2 | バルコニー面積 | 44.54m2 |
| 建物構造 | RC | 築年月 | 2023年11月 |
| 総戸数 | 163戸 | 総階数 | 地上14階 地下1階 |
| 駐車場 | 有 | バイク置き場 | 有 |
| 駐輪場 | 有 | 土地権利 | 所有権 |
| 用途地域 | 商業地域 | 管理形態 | 日勤管理 |
| 管理会社 | - | 分譲会社 | 三井不動産レジデンシャル(株) |
| 施工会社 | 三井住友建設(株) | 設計会社 | - |
| 取引態様 | 仲介 | 小学校学区 | 月島第三小学校 |
| 周辺情報 | ■マルエツ 勝どき六丁目店(スーパー)まで約11分 ■ファミリーマート HARUMIFLAG店(コンビニ)まで約3分 ■どらっぐぱぱす 勝どき5丁目店(ドラックストア)まで約11分 |
||
| 現況 | 空室 | 入居/引渡時期 | 即時 |
| 更新日 | 2026年4月28日 | ||
自治会費:100円
インタ-ネット利用料:2,200円
HARUMLFLAG CLUB会費:500円
テレビ使用料:550円/月
| 頭金 |
|
|---|---|
| 金利 |
|
| 返済年数 | 年 |
※建物周辺情報はGoogleMapを使用しており、実際とは若干異なる場合がございます。
掲載情報について

no image