2階部分、南東向き住戸!新規内装リノベーション物件!
【特徴・設備】
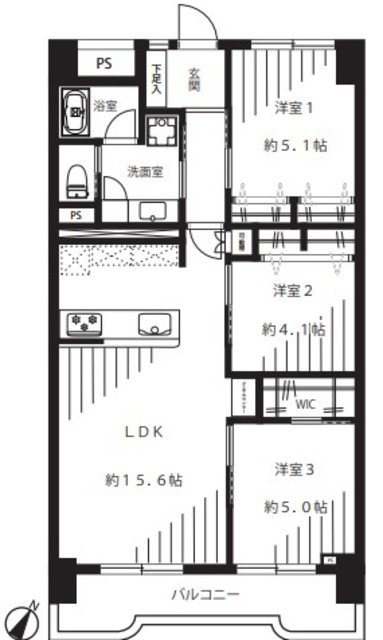
■LDK・洋室1・3は窓あり
■家具の配置がしやすい間取り
■カウンターキッチン
■3口ガスコンロ
■WICがあり収納豊富
■独立洗面台
■室内洗濯置き場あり
■アフターサービス保証付
【新規内装リノベーション内容】※令和7年12月25日完了
□壁・天井クロス
□フローリング
□建具
□洗面・トイレフロアタイル
□システムキッチン
□ユニットバス
□洗面化粧台
□トイレ
□下足入れ
□可動棚
□エアコン
□ダウンライト
□クリーニング 等





