クレストプライムタワー芝 27階

  • 総合トップ
  • 中古マンション
  • 一戸建て・土地
  • 投資・収益物件
  • 売りたい[売却査定]
  • 貸したい[賃料査定]

クレストプライムタワー芝 27階
新着

価格
26,500
毎月の返済額
(目安)
loansimulationIcon
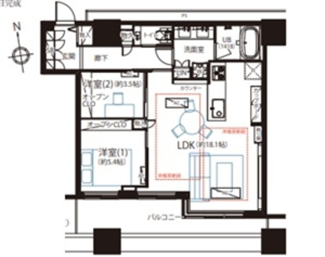
築年月 2007年8月 間取り 2LDK
専有面積 62.24m2 所在階 27階
方角 南西
所在地 東京都港区芝1-2-1
交通 JR山手線「浜松町駅」徒歩6分
都営三田線「芝公園駅」徒歩7分

27階部分、南向き住戸!リノベーション物件!

【特徴・設備】
■ペット飼育可
■LDK・洋室1は窓あり
■家具の配置がしやすい間取り
■カウンターキッチン
■3口ガスコンロ
■収納豊富
■ツーボール洗面台
■室内洗濯置き場あり
■アフターサービス保証付

【リノベーション内容】
□床クロス
□洗面
□トイレ
□キッチン 
□ユニットバス
□建具
□TES式床暖房
□電気式暖房暖炉 
□新規エアコン設置 等

2冠達成 恵比寿不動産は物件数No.1 中古マンション数No.1

クレストプライムタワー芝 27階の
購入に関するお問い合わせはこちらから

contact us

恵比寿不動産までお気軽にお問い合わせください

お電話でのお問い合わせはこちら:03-6421-0543 10:00 - 19:00 (水曜定休)
恵比寿不動産店舗情報渋谷区東3-25-11 TOKYU REIT恵比寿ビル4階
オフィス内観写真
オフィス外観写真
リフォーム無料お見積りサービス

物件概要

物件名 クレストプライムタワー芝
所在地
交通
問合せ番号 1219-2705
物件特徴 タワーマンション、大規模マンション
物件条件 ペット可
価格 26,500 管理費 21,800円/月
修繕積立金 12,400円/月 その他費用 -
間取り 2LDK 方角 南西
専有面積 62.24m2 バルコニー面積 7.3m2
建物構造 RC 築年月 2007年8月
総戸数 458戸 総階数 地上39階 地下2階
駐車場 39,000円~52,000円/月 バイク置き場 5000円/月
駐輪場 200円~700円/月 土地権利 所有権
用途地域 商業地域  管理形態 日勤管理
管理会社 株式会社ゴールドクレストコミュニティ 分譲会社 株式会社ゴールドクレスト
施工会社 清水建設株式会社 設計会社 松田平田設計・清水建設設計共同体
取引態様 仲介 小学校学区 芝小学校
周辺情報 ■まいばすけっと 浜松町駅南店(スーパー)まで約2分
■セブンイレブン 浜松町2丁目店(コンビニ)まで約2分
■ゆりの木薬局東芝ビル店(ドラッグストア)まで約3分
現況 空室 入居/引渡時期 即時
更新日 2026年2月26日

備考

部屋設備

  • バス・トイレ別
  • 独立洗面台
  • 追い焚き
  • 温水洗浄便座
  • 浴室乾燥機
  • システムキッチン
  • カウンターキッチン
  • 食器洗浄機
  • 浄水器
  • ガスコンロ
  • 床暖房
  • エアコン
  • フローリング
  • 南向き
  • リノベーション

建物設備

  • エレベーター
  • オートロック
  • 宅配ボックス
  • TVドアホン
  • ペット足洗い場
  • 駐車場
  • バイク置き場
  • 駐輪場
  • ラウンジ
  • フロントサービス
  • フィットネス
  • ゲストルーム
  • 24時間ゴミ出し可
  • 各階ゴミ置き場
  • 管理人常駐
  • BS
  • CS
  • インターネット
  • 免震・制震
  • ペット可
  • フラット35

クレストプライムタワー芝 27階のローンシミュレーション

借入金額
26,500
頭金
0万円
毎月の返済額
頭金
  • 支払い額万円※半角数字
金利
  • %※半角数字
返済年数
  • ※元利均等返済方式、最大優遇の場合で計算しています。
  • ※融資には個別審査があり、審査結果により、貸出条件(金利・貸出期間・借入額)が異なる場合がございます。
  • ※不動産のご購入に際しましては物件価格以外にその他諸費用が必要となります。
    諸費用に関する詳細につきましてはお問い合わせ下さいませ。

周辺地図

※建物周辺情報はGoogleMapを使用しており、実際とは若干異なる場合がございます。

掲載情報について

  • ※本掲載情報と現況に差異がある場合、現況を優先いたします。
  • ※掲載物件は売却済あるいは売出中止となる場合もあります。
  • ※掲載写真やパース(絵)、または間取図に描かれている家具や車などは、価格に含まれておりません。また、過去に撮影したものをそのまま利用している場合があり、名称・外観・背景等、実際のものとは異なる場合がございます。予めご了承ください。
  • ※仲介物件には所定の仲介手数料(消費税等相当額を含みます)が必要です。
2冠達成 恵比寿不動産は物件数No.1 中古マンション数No.1

クレストプライムタワー芝 27階の
購入に関するお問い合わせはこちらから

contact us

恵比寿不動産までお気軽にお問い合わせください

お電話でのお問い合わせはこちら:03-6421-0543 10:00 - 19:00 (水曜定休)
恵比寿不動産店舗情報渋谷区東3-25-11 TOKYU REIT恵比寿ビル4階
オフィス内観写真
オフィス外観写真

部屋一覧

売出し待ちお知らせ希望 未公開情報の確認 お問い合わせ
所在階 間取り 専有面積 価格 お気に入り お問い合わせ 詳細
新着
27F
リノベ
2LDK
62.24m2 26,500
お問い合わせ
詳細を見る
27F 2LDK 65.96m2 28,500
お問い合わせ
詳細を見る
新着
29F
リノベ
2LDK
66.30m2 29,000
お問い合わせ
詳細を見る
34F 2LDK 56.18m2 21,800
お問い合わせ
詳細を見る