クレストプライムタワー芝 29階

  • 総合トップ
  • 中古マンション
  • 一戸建て・土地
  • 投資・収益物件
  • 売りたい[売却査定]
  • 貸したい[賃料査定]

クレストプライムタワー芝 29階
新着

価格
29,000
毎月の返済額
(目安)
loansimulationIcon
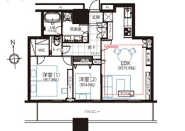
築年月 2007年8月 間取り 2LDK+WIC
専有面積 66.30m2 所在階 29階
方角
所在地 東京都港区芝1-2-1
交通 JR山手線「浜松町駅」徒歩6分
都営三田線「芝公園駅」徒歩7分

29階部分、南向き住戸!リノベーション物件!

【特徴・設備】
■ペット飼育可
■全室窓あり
■家具の配置がしやすい間取り
■システムキッチン
■3口ガスコンロ
■WICがあり収納豊富
■独立洗面台
■室内洗濯置き場あり
■アフターサービス保証付

【リノベーション内容】
□フローリング・クロス
□洗面
□トイレ 
□キッチン
□ユニットバス
□建具
□天井カセット式エアコン交換(1台)
□床暖房 等

2冠達成 恵比寿不動産は物件数No.1 中古マンション数No.1

クレストプライムタワー芝 29階の
購入に関するお問い合わせはこちらから

contact us

恵比寿不動産までお気軽にお問い合わせください

お電話でのお問い合わせはこちら:03-6421-0543 10:00 - 19:00 (水曜定休)
恵比寿不動産店舗情報渋谷区東3-25-11 TOKYU REIT恵比寿ビル4階
オフィス内観写真
オフィス外観写真
リフォーム無料お見積りサービス

物件概要

物件名 クレストプライムタワー芝
所在地
交通
問合せ番号 1219-2904
物件特徴 タワーマンション、大規模マンション
物件条件 ペット可
価格 29,000 管理費 23,200円/月
修繕積立金 13,300円/月 その他費用 -
間取り 2LDK 方角
専有面積 66.30m2 バルコニー面積 15.1m2
建物構造 RC 築年月 2007年8月
総戸数 458戸 総階数 地上39階 地下2階
駐車場 39,000円~52,000円/月 バイク置き場 5000円/月
駐輪場 200円~700円/月 土地権利 所有権
用途地域 商業地域  管理形態 日勤管理
管理会社 株式会社ゴールドクレストコミュニティ 分譲会社 株式会社ゴールドクレスト
施工会社 清水建設株式会社 設計会社 松田平田設計・清水建設設計共同体
取引態様 仲介 小学校学区 芝小学校
周辺情報 ■まいばすけっと 浜松町駅南店(スーパー)まで約2分
■セブンイレブン 浜松町2丁目店(コンビニ)まで約2分
■ゆりの木薬局東芝ビル店(ドラッグストア)まで約3分
現況 空室 入居/引渡時期 即時
更新日 2026年2月18日

備考

部屋設備

  • バス・トイレ別
  • 独立洗面台
  • 追い焚き
  • 温水洗浄便座
  • 浴室乾燥機
  • システムキッチン
  • 食器洗浄機
  • 浄水器
  • ガスコンロ
  • 床暖房
  • エアコン
  • ウォークインクローゼット
  • フローリング
  • 南向き
  • リノベーション

建物設備

  • エレベーター
  • オートロック
  • 宅配ボックス
  • TVドアホン
  • ペット足洗い場
  • 駐車場
  • バイク置き場
  • 駐輪場
  • ラウンジ
  • フロントサービス
  • フィットネス
  • ゲストルーム
  • 24時間ゴミ出し可
  • 各階ゴミ置き場
  • 管理人常駐
  • BS
  • CS
  • インターネット
  • 免震・制震
  • ペット可
  • フラット35

クレストプライムタワー芝 29階のローンシミュレーション

借入金額
29,000
頭金
0万円
毎月の返済額
頭金
  • 支払い額万円※半角数字
金利
  • %※半角数字
返済年数
  • ※元利均等返済方式、最大優遇の場合で計算しています。
  • ※融資には個別審査があり、審査結果により、貸出条件(金利・貸出期間・借入額)が異なる場合がございます。
  • ※不動産のご購入に際しましては物件価格以外にその他諸費用が必要となります。
    諸費用に関する詳細につきましてはお問い合わせ下さいませ。

周辺地図

※建物周辺情報はGoogleMapを使用しており、実際とは若干異なる場合がございます。

掲載情報について

  • ※本掲載情報と現況に差異がある場合、現況を優先いたします。
  • ※掲載物件は売却済あるいは売出中止となる場合もあります。
  • ※掲載写真やパース(絵)、または間取図に描かれている家具や車などは、価格に含まれておりません。また、過去に撮影したものをそのまま利用している場合があり、名称・外観・背景等、実際のものとは異なる場合がございます。予めご了承ください。
  • ※仲介物件には所定の仲介手数料(消費税等相当額を含みます)が必要です。
2冠達成 恵比寿不動産は物件数No.1 中古マンション数No.1

クレストプライムタワー芝 29階の
購入に関するお問い合わせはこちらから

contact us

恵比寿不動産までお気軽にお問い合わせください

お電話でのお問い合わせはこちら:03-6421-0543 10:00 - 19:00 (水曜定休)
恵比寿不動産店舗情報渋谷区東3-25-11 TOKYU REIT恵比寿ビル4階
オフィス内観写真
オフィス外観写真

部屋一覧

売出し待ちお知らせ希望 未公開情報の確認 お問い合わせ
所在階 間取り 専有面積 価格 お気に入り お問い合わせ 詳細
新着
27F
リノベ
2LDK
62.24m2 26,500
お問い合わせ
詳細を見る
27F 2LDK 65.96m2 28,500
お問い合わせ
詳細を見る
新着
29F
リノベ
2LDK
66.30m2 29,000
お問い合わせ
詳細を見る
34F 2LDK 56.18m2 21,800
お問い合わせ
詳細を見る

最近見た物件

南青山マスターズハウスおすすめ画像

南青山マスターズハウス 4階

16,000

  • 東京都港区南青山4-2-12
  • 東京メトロ千代田線「乃木坂駅」徒歩8分
    東京メトロ銀座線「外苑前駅」徒歩10分
  • 1LDK  46.39m2
コスモ東池袋おすすめ画像

コスモ東池袋 12階

9,998

  • 東京都豊島区東池袋2-57-2
  • JR山手線「池袋駅」徒歩9分
    東京メトロ有楽町線「東池袋駅」徒歩10分
  • 3LDK  97.55m2
アスコットパーク錦糸町プレミオおすすめ画像

アスコットパーク錦糸町プレミオ 1階

7,980

  • 東京都墨田区緑4-37-8
  • JR中央・総武線「錦糸町駅」徒歩10分
    都営新宿線「菊川駅」徒歩13分
  • 3LDK  73.27m2
ジェイパーク戸越銀座ブランシェールおすすめ画像

ジェイパーク戸越銀座ブランシェール 4階

7,690

  • 東京都品川区荏原2-2-14
  • 東急池上線「戸越銀座駅」徒歩5分
    都営浅草線「戸越駅」徒歩8分
  • 1LDK  53.98m2
サンクタス南品川おすすめ画像

サンクタス南品川 8階

13,980

  • 東京都品川区南品川4-2-38
  • 京急本線「新馬場駅」徒歩7分
    JR山手線「大崎駅」徒歩13分
  • 3LDK  70.50m2
菊川グリーンハイツおすすめ画像

菊川グリーンハイツ 2階

4,280

  • 東京都墨田区菊川3-21-6
  • 都営新宿線「菊川駅」徒歩3分
    東京メトロ半蔵門線「住吉駅」徒歩9分
  • 2DK  50.00m2