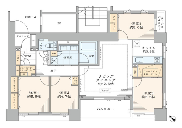
2階部分、南西向き角部屋!新規内装リノベーション物件!
【特徴・設備】
■ペット飼育可
■二面バルコニー
■全室窓あり
■家具の配置がしやすい間取り
■システムキッチン
■3口ガスコンロ
■WIC・SICがあり収納豊富
■ツーボール洗面台
■室内洗濯置き場あり
■アフターサービス保証付
【新規内装リノベーション内容】※2025年4月完了
□フローリング新規貼替
□給水管・給湯管新規交換(専有部)
□建具・玄関収納等新規交換
□LIXIL製洗面化粧台新規交換
□TOTO製洗浄便座付トイレ新規交換
□TOTO製ユニットバス新規交換(浴室換気乾燥機付)
□LIXIL製システムキッチン新規交換(食器洗い機付)
□壁・天井クロス新規貼替
□照明器具新規設置
□エアコン一基新規設置
□給湯器新規交換(追焚式) 等
